Részletes leírás
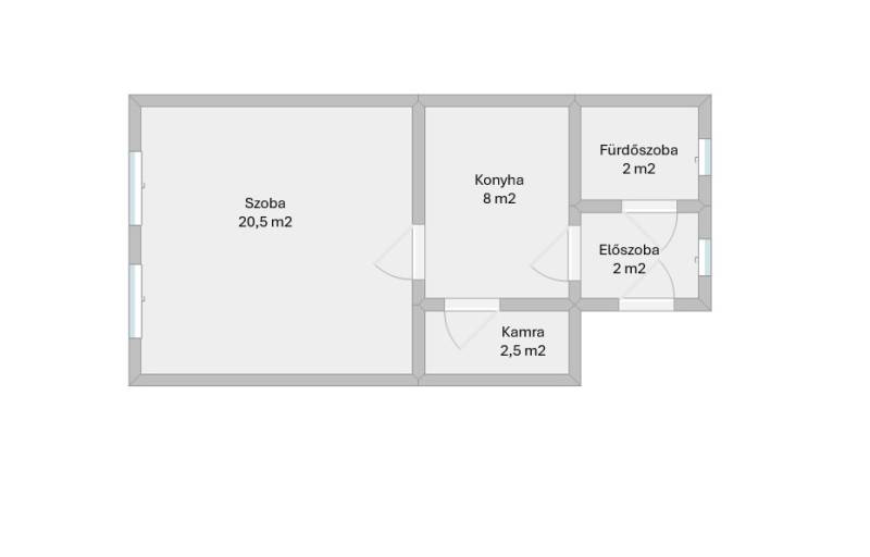
Eladásra kínálunk egy 35 nm-es, 1 szobás lakást egy 4 lakásos, sorházi jellegű hőszigetelt lakóépületben. A lakás osztatlan közös tulajdonban van. Tágas szoba + külön konyha-étkezőZuhanyzós fürdőszoba WC-velPraktikus kamra Műanyag nyílászárókK-i tájolás Elektromos paneles fűtésÁtlagos állapot – költözhető, de igény szerint alakíthatóA lakóház egy 714 nm-es telken helyezkedik el. Ez a kis lakás ideális választás lehet első otthonnak, befektetésnek vagy idősebbek számára, akik nyugalomra vágynak egy jól megközelíthető, rendezett környezetben.Az ingatlan nem hitelezhető!Bővebb információért várom jelentkezését! Jöjjön el, nézzük meg együtt!Ha a vásárláshoz a jelenlegi ingatlana eladására van szükség, akkor abban is szívesen együttműködőm Önnel!Amennyiben hitelre van szüksége, az Otthon Centrum az ország egyik legnagyobb és legmegbízhatóbb hitelközvetítőjeként, teljes körű és díjmentes hitel ügyintézéssel, áll rendelkezésére. Kérje személyre szabott ajánlatunkat!

Budapest, XIX.kerület
 

Ingatlan adatai
Irányár: 29 990 000 Ft
Típus: ház
Kategória: eladó
Alapterület: 35 m2
Fűtés: elektromos
Állapota: -
Szobák száma: 1
Építés éve: 1950
Szintek száma: -
További adatok
Telekterület: 714 m2
Kert mérete: 714 m2
Erkély mérete: -
Felszereltség: -
Parkolás: -
Kilátás: -
Egyéb extrák:  
-
Hirdető adatai
Hirdető neve: Otthon Centrum
Kapcsolattartó: Lovassy László
Hirdető telefonszáma: +36 70 469 3846
Honlap: -

Üzenetet küldhet a hirdetőnek:
Az Ön neve:
Az Ön e-mail címe:
Üzenet: