Részletes leírás
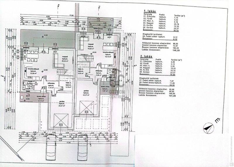
ELADÓ LUXUS OKOS IKERHÁZAK DUNAHARASZTIBAN – TÓPARK LAKÓPARK! Prémium minőség • Modern technológia • Energiatakarékos otthonok • Zárt lakóparkHa olyan otthont keres, ahol a kényelem, a dizájn és a korszerű technológia tökéletes összhangban találkozik a természet közelségével, akkor ez a Tópark lakóparkban épülő luxus okos ikerház az, amit látni kell! PRÉMIUM MŰSZAKI TARTALOM – AHOL A MINŐSÉG NEM KÉRDÉS30-as Porotherm tégla15 cm EPS szigetelés – magas energiahatékonyság5 légkamrás, 3 rétegű műanyag ablakok antracit kerettelElektromos, távirányítós alumínium redőnyökBeépített szúnyoghálókHŐSZIVATTYÚS fűtés-hűtés – modern, takarékos, környezetbarátEz az otthon nem csak szép — okos, hatékony és hosszú távon gazdaságos is. BELSŐ TEREK – FUNKCIONALITÁS ÉS ELEGANCIAFöldszint:Tágas amerikai konyhás nappaliPraktikus mosdóKözvetlen kijárat a kertbeEmelet:3 külön nyíló hálószobaModern fürdőszoba WC-vel+1 külön WCA belső terekben minden adott a családi harmóniához, az elvonuláshoz és a közös időtöltésekhez. PARKOLÁS • BIZTONSÁG • KÉNYELEMFűtött garázs – kényelmes parkolás télen-nyáronUdvari beálló +1 autónakZárt, körbekerített lakóparkPortaszolgálat + beléptetőrendszer – a maximális biztonságértTÓPARTI ÉLETMÓD – SPORT, PIHENÉS, SZABADIDŐ EGY HELYENA lakópark környezete egy külön világ – olyan, amit ritkán lehet megtapasztalni:Privát strandKivilágított futópályaModern kondiparkTeniszpályaFocipályaJátszótérHorgászatWakeboard pályaItt tényleg minden adott a mindennapi feltöltődéshez.???? KIVÁLÓ INFRASTRUKTÚRA — MINDEN PERCEN BELÜLTesco, Lidl, Aldi, DM, KFC, éttermek és modern szolgáltatások pár perces távolságban.Budapest szintén gyorsan elérhető. ELÉRHETŐ LAKÁSOK1. Ikerházfél142 m²Nappali + 3 hálószoba500 m² saját telekÁr: 177.500.000 Ft2. Ikerházfél147 m²Nappali + 3 hálószoba500 m² saját telekÁr: 183.750.000 Ft MINDEN ÁLLAMI TÁMOGATÁS IGÉNYELHETŐ!Hitel, CSOK, támogatások — díjmentes ügyintézéssel segítjük!Ne hagyja ki Dunaharaszti egyik legexkluzívabb ajánlatát! Hívjon most! Ha nem tudom fogadni, visszahívom!Érdemes mielőbb megtekinteni — az ilyen minőségű otthonok hamar gazdára találnak!

Pest megye, Dunaharaszti
 

Ingatlan adatai
Irányár: 177 500 000 Ft
Típus: ház
Kategória: eladó
Alapterület: 142 m2
Fűtés: -
Állapota: új
Szobák száma: 4
Építés éve: 2025
Szintek száma: -
További adatok
Telekterület: 300 m2
Kert mérete: 300 m2
Erkély mérete: -
Felszereltség: -
Parkolás: -
Kilátás: -
Egyéb extrák:  
-
Hirdető adatai
Hirdető neve: Otthon Centrum
Kapcsolattartó: Gál Jánosné
Hirdető telefonszáma: +36 70 465 7056
Honlap: -

Üzenetet küldhet a hirdetőnek:
Az Ön neve:
Az Ön e-mail címe:
Üzenet: