| 
	  
	   Részletes leírás 
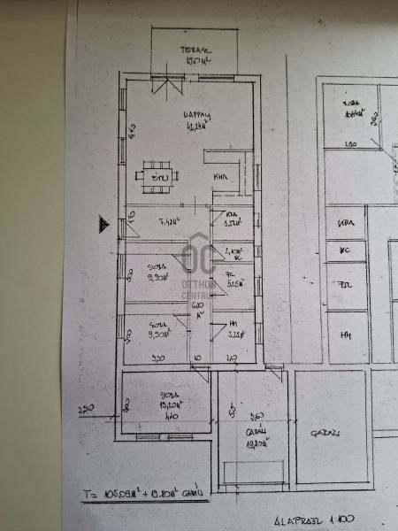
  Pécel egyik legkedveltebb, exkluzív részén, az Apáca-dombon kínálunk eladásra egy modern stílusban épülő, új ikerházat, amely áprilisban birtokba vehető. Az ingatlan a környék legszebb panorámáját kínálja, mindemellett korszerű műszaki megoldásaival kényelmes és energiatakarékos otthont biztosít.Főbb jellemzők:• Lakás alapterülete: ~105,90 m²• Saját garázs: 19,80 m²• Tágas terasz: 15,00 m² – varázslatos kilátással• Telek mérete: 562 m² (saját használatú kertrésszel)• Helyiségek: amerikai konyhás nappali, 3 hálószoba, fürdőszoba, külön WC, előszoba, közlekedő, háztartási helység, kamraMűszaki tartalom:• Korszerű szigetelés és energiatakarékos szerkezetek• Hőszivattyús fűtés és padlófűtés a teljes házban• 3 rétegű, hőszigetelt műanyag nyílászárók• Redőnyök és 1 db klíma az árban• Modern burkolatok és minőségi beltéri ajtók• Saját, tágas garázs közvetlen házkapcsolattalMiért különleges?•  Modern, letisztult építészeti stílus•  Az Apáca-domb legszebb panorámája a nappaliból és a teraszról • Kertvárosias, nyugodt környezet•  Gyorsan elérhető Budapest irányábaAz ingatlan 2026 áprilisában birtokba vehető, így az új tulajdonos már a tavaszi napokat saját új otthonában élvezheti.Ez az ikerház ideális választás azok számára, akik egy új építésű, prémium minőségű, modern és energiatakarékos otthonra vágynak a természet közelében, mégis a város közelében. 	   | 
      
	  
        
    	Ingatlan adatai 
    	
    	
  			
			    | Irányár: | 
			    120 000 000 Ft | 
		     
            
			    | Típus: | 
			    ház | 
		     
		    
    			| Kategória: | 
			    eladó | 
		     		    
			
			    | Alapterület: | 
			    115 m2 | 
			 
			
			    | Fűtés: | 
			    - | 
		     
            
			    | Állapota: | 
			    új | 
		     
            
			    | Szobák száma: | 
			    4 | 
		     
            
			    | Építés éve: | 
			    2025 | 
		     
            
			    | Szintek száma: | 
			    - | 
		         
	    
    	 
     
	
	
   	További adatok 
    	
    	
  			
			    | Telekterület: | 
			    562 m2 | 
		     
		    
    			| Kert mérete: | 
			    562 m2 | 
		     
		    
			    | Erkély mérete: | 
			    15 m2 | 
		     
			
			    | Felszereltség: | 
			    - | 
			 
			
			    | Parkolás: | 
			    - | 
		     
            
			    | Kilátás: | 
			    - | 
		     
            
            
			    | Egyéb extrák: | 
			      | 
		     
            
			    | - | 
	       
	    
   	 
   	   | 
      
	  
	  
	  
	   |