Részletes leírás
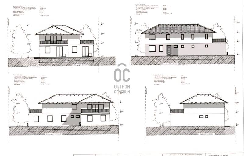
Elegancia, kényelem és modern technológia egyben – ez jellemzi ezt a soroksári új építésű ikerházatA világos, tágas terek és a hatalmas teraszok valódi otthonélményt nyújtanak, ahol a családi élet minden pillanata kényelmesen és meghitten telhet.Az ingatlan Soroksár egyik legkedveltebb, mégis csendes részén épül, a Hősök tere közvetlen közelében. A két szinten elhelyezkedő, 112 m²-es lakás három nagyméretű, összesen 32,44 m²-es saját terasszal rendelkezik, amelyek ideálisak pihenéshez, baráti összejövetelekhez vagy nyári vacsorákhoz.Helyiségek elosztása:Földszint: előszoba, külön WC-kézmosó, konyha, nappali, fürdőszoba, két hálószoba, lépcsőház, közlekedő, gardrób, háztartási helyiség, 10 m²-es teraszEmelet: két hálószoba (köztük egy 28 m²-es), fürdőszoba-WC, 22,44 m²-es teraszMűszaki tartalom:- főfalak: 30 cm POROTHERM X-Therm Rapid Dryfix + 10 cm grafitos EPS hőszigetelés- padlószerkezet: 15 cm grafitos hőszigeteléssel - nyílászárók: hőhídmentes, 3 rétegű üvegezésű fa vagy műanyag ablakok- bejárati ajtó: biztonsági vasalással ellátott, 5 ponton záródó acéltokos ajtó- fűtés: elektromos hőszivattyú + padlófűtés- külön mérőórák minden lakásbanExtra felszereltség:- okosotthon rendszer: távolról vezérelhető fűtés, világítás és redőnyök- elektromos redőnyök minden helyiségben- klímaberendezés az árban- kiépített internet és riasztórendszer előkészítés- gépesített, egyedi tervezésű konyhabútor az árbanVárható átadás: 2026. márciusAz építkezés már megkezdődött!Ez a modern, energiatakarékos és intelligens otthon tökéletes választás mindazoknak, akik szeretnének nyugodt környezetben, mégis kiváló közlekedés mellett élni, egy új, stílusos és technológiailag fejlett házban.

Budapest, XXIII.kerület
 

Ingatlan adatai
Irányár: 158 000 000 Ft
Típus: ház
Kategória: eladó
Alapterület: 112 m2
Fűtés: -
Állapota: új
Szobák száma: 5
Építés éve: 2025
Szintek száma: -
További adatok
Telekterület: 100 m2
Kert mérete: 100 m2
Erkély mérete: 32 m2
Felszereltség: -
Parkolás: -
Kilátás: -
Egyéb extrák:  
-
Hirdető adatai
Hirdető neve: Otthon Centrum
Kapcsolattartó: Doktor Tímea
Hirdető telefonszáma: +36 70 412 5796
Honlap: -

Üzenetet küldhet a hirdetőnek:
Az Ön neve:
Az Ön e-mail címe:
Üzenet: