Részletes leírás
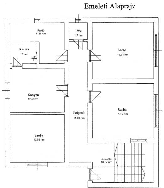
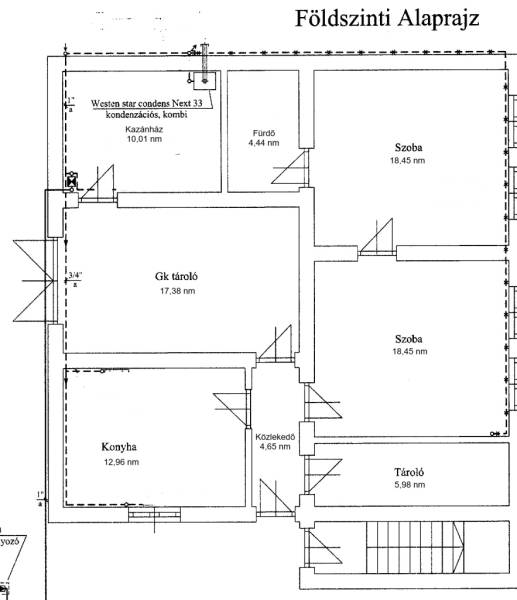
2 GENERÁCIÓS CSALÁDI HÁZ, CSENDES HELYEN!Megvételre kínálok Jászapáti csendes részén, 517 nm-es telken fekvő, 2 szintes, nettó 163,12 nm, bruttó: 200,51nm 1982-ben épült, tégla falazatú, hatalmas, tényleges 2 külön bejárattal ellátott, külön lakórészekkel rendelkező, de belülről átjárható családi házat.Az épületet fűtését gáz, kombi cirkó biztosítja padlófűtés segítségével, valamint 1 db hűtő-fűtő klíma is rendelkezésre áll, a melegvízért szintén a kombi felel.2024-ben belülről teljesen megújult az épület:- fali padlóburkolatok cseréje- víz-villany-gáz-csatornahálózat csere- padlófűtés kialakítása- új kazán- nyílászáró csere- fürdők kialakítása- helyiségek újra gondolása- tényleges 2 lakrész kialakítása- klíma telepítése- elektromos kapu telepítéseEgy jármű garázsban, 4 további pedig az urvaron fér el, valamint egy 20 nm-es kis házikó is része a kinti térnek, mely pakolásra alkalmas.Infrastruktúrája jónak mondható, 550-1300 méteren belül elérhető buszmegálló, bolt, iskola, óvoda, bölcsőde.A szomszédok kedvesek és barátságosak, mellyel egy igazán élhető lakóközösséget alkotnak.AZ INGATLAN PER, TEHER és IGÉNYMENTES!INGYENES hitel tanácsadás!CSOK Plusz ügyintézés!BANKFÜGGETLEN hitelcentrumunk minden elérhető bank és hitelintézet ajánlatát versenyezteti az Ön kedvéért, ráadásul DÍJMENTESEN.Önnek nincs más dolga, mint elbeszélgetni munkatársunkkal, aki a hallott információk alapján versenyre hívja a bankokat, hogy Ön hosszú távon is a legjobb konstrukciót kaphassa. A legjobb ajánlatokból végül Ön választhatja ki a nyertest.Munkatársaink sokéves szakmai tapasztalattal várják Önt, előre egyeztetve akár a normál munkaidő után is.Amennyiben a hirdetés felkeltette érdeklődését, várom hívását, akár hétvégén is! S.S.

Jász-Nagykun-Szolnok megye, Jászapáti
 

Ingatlan adatai
Irányár: 49 900 000 Ft
Típus: ház
Kategória: eladó
Alapterület: 163 m2
Fűtés: gáz (cirko)
Állapota: felújított
Szobák száma: 5
Építés éve: 1982
Szintek száma: -
További adatok
Telekterület: 517 m2
Kert mérete: 517 m2
Erkély mérete: 3 m2
Felszereltség: -
Parkolás: -
Kilátás: udvari
Egyéb extrák:  
-
Hirdető adatai
Hirdető neve: GDN Ingatlanhálózat
Kapcsolattartó: Suba Sándor
Hirdető telefonszáma: +36-30-556-5226
Honlap: -

Üzenetet küldhet a hirdetőnek:
Az Ön neve:
Az Ön e-mail címe:
Üzenet: