Részletes leírás
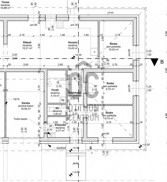
Debrecenben a Júlia-telepen átmenő forgalomtól mentes utcában eladó egy 92 nm-es, nappali+3 hálószobás ikerház!Jellemzői:-2024-ben épült-beton alapon, tégla falazat 15 cm-es szigetelés, cserép héjazat-hőszivattyús fűtés , padló fűtéssel minden helyiségben-klíma - H tarifás villanyóra- rejtett led világítás a szobákban- kívül színezett 3 rétegű hő és hangszigetelt, páramentesített ablakok- elektromos garázskapu-riasztó-410 nm-es körbekerített saját telek

Hajdú-Bihar megye, Debrecen
 

Ingatlan adatai
Irányár: 109 900 000 Ft
Típus: ház
Kategória: eladó
Alapterület: 92 m2
Fűtés: -
Állapota: -
Szobák száma: 4
Építés éve: 2024
Szintek száma: -
További adatok
Telekterület: 410 m2
Kert mérete: 410 m2
Erkély mérete: 16 m2
Felszereltség: -
Parkolás: -
Kilátás: -
Egyéb extrák:  
-
Hirdető adatai
Hirdető neve: Otthon Centrum
Kapcsolattartó: Hajdu Enikő Judit
Hirdető telefonszáma: +36 70 716 8986
Honlap: -

Üzenetet küldhet a hirdetőnek:
Az Ön neve:
Az Ön e-mail címe:
Üzenet: