Részletes leírás
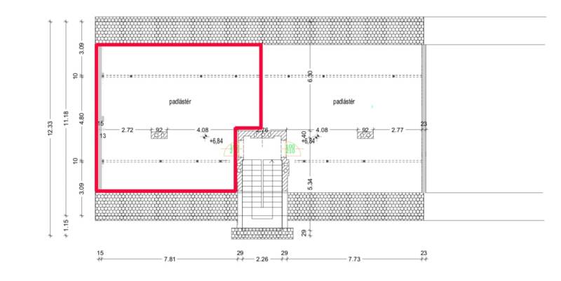
Eladó Vácon, Deákvár frekventált részén lévő, beépítésre váró tetőtér!A víz és szennyvíz kiállást már felvitték, az áramot még nem.Az ingatlan külön helyrajzi számon található, tulajdon lapi besorolása tetőtér, tehermentes, azonnal birtokba vehető.Már készültek tervek a beépítésre, két féle alaprajz (1 vagy 2 hálós) is látható a képek között, persze a belső elrendezésen még lehet alakítani, saját ízlés szerint.Készült statikai terv az e-gerendás födém teherbíróvá kialakítására, valamint a korábbi állószékes tetőszerkezet helyett fogópáras, közbenső megtámasztás nélkülitetőszerkezetre (nincs tetőteher a meglévő födémre, nincs zavaró oszlop).A középen lévő kémény bontható, nincs rá szüksége senkinek.Igény szerint a statikai munkákat meg tudja csinálni a Tulajdonos cég (födém megerősítés, tetőszerkezet, tűzfal újrarakás), így az új Tulajdonosnak már csak a belső munkákra kell koncentrálnia. A vételár a jelenlegi állapotot tartalmazza és a már elkészült terveket.Mindent megtalálunk a közelben, amire szükségünk lehet!(Pl: bolt, hentes, zöldséges, óvoda, iskola, gyógyszertár, orvosi rendelő, stb.)Az ingatlan elhelyezkedése tömegközlekedés szempontjából KIVÁLÓ!A lakás befektetésnek is tökéletes, ha elkészül, könnyen kiadható!További információért forduljon Hozzám bizalommal!Amivel segítjük az Ön ingatlanvásárlását:-ingyenes, bankfüggetlen hitelügyintézés (CSOK és Babaváró ügyintézése is.)-jogi háttér-földhivatali ügyintézés-energetikai tanúsítvány elkészítése-biztosítás

Pest megye, Vác
 

Ingatlan adatai
Irányár: 18 500 000 Ft
Típus: lakás (újépítésű)
Kategória: eladó
Alapterület: 92 m2
Fűtés: egyéb
Állapota: új
Szobák száma: 2+1
Építés éve: 2026
Szintek száma: 2
További adatok
Telekterület: -
Kert mérete: -
Erkély mérete: -
Felszereltség: -
Parkolás: -
Kilátás: udvari
Egyéb extrák:  
-
Hirdető adatai
Hirdető neve: GDN Ingatlanhálózat
Kapcsolattartó: Harmati Attila
Hirdető telefonszáma: +36-70-520-2966
Honlap: -

Üzenetet küldhet a hirdetőnek:
Az Ön neve:
Az Ön e-mail címe:
Üzenet: