Részletes leírás
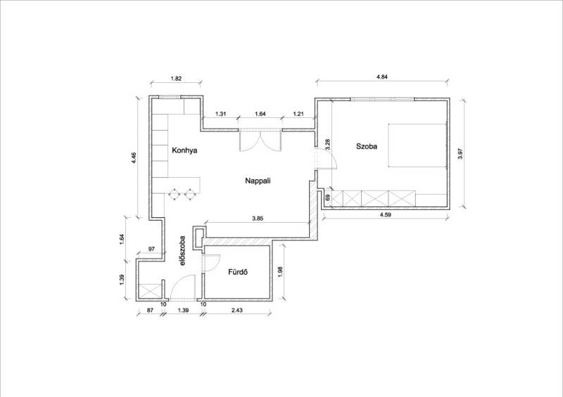
Élvezze Buda kényelmét és a zöldövezet nyugalmát ebben a kiváló állapotú, modern lakásban!A szintráépítéssel kialakított, kiváló állapotú, világos lakás modern elektromos, víz és fűtéshálózattal rendelkezik. Fűtéséről Junkers gázcirkó gondoskodik, de egy hűtő-fűtő Daikin klíma is beszerelésre került. Kiváló minőségű műanyag nyílászárókkal rendelkezik, melyek elektromos redőnnyel és szúnyoghálóval felszereltek.Az ingatlan 2017-ben teljeskörű felújításon esett át, de a festés friss.A lakás rendkívül világos, kiváló elrendezésű. Tágas, amerikai konyhás, étkezős nappalival rendelkezik, melyből egy csodás, panorámás, 5 m2-es erkély nyílik. A hangulatos, nagy méretű hálószobában egy nagy méretű pax gardróbszekrény biztosít rengeteg tárolási lehetőséget. Az előszobából nyílik a letisztult, modern, kádas fürdőszoba.Az ingatlan fenntartási költsége rendkívül kedvező. A közösköltség 14 ezer forint, mely tartalmazza a korlátlan vízhasználatot, a villany és gáz egyedi mérés alapján került elszámolásra.A lakáshoz tartozik egy 3 m2-es önálló tároló a pinceszinten, melynek ára 5 millió forint. Ez kötelezően megvásárolandó.A társasház rendezett, karbantartott, és hatalmas, hangulatos kerttel rendelkezik. Kiváló elhelyezkedés, minden egy karnyújtásnyira. Oktatási inzétmények, egészségügyi szolgáltatók, játszótér, bevásárlási lehetőség a közvetlen közelben. Számos tömegközlekedési opció. Széll Kálmán tér 7 perc, Budai vár 10 perc, Deák tér 16 perc alatt elérhető. A lakás fizetős parkolási övezetben található, de a szomszédos bevásárlóközpontban éjszakai parkolóhely bérelhető. A lakás rendezett jogi hátterű, tehermentes, gyorsan birtokbavehető.Ne késlekedjen! Nézze meg még ma! Mind saját célra, mind befektetésnek kiváló választás!

Budapest, II.kerület
 

Ingatlan adatai
Irányár: 130 000 000 Ft
Típus: lakás (tégla)
Kategória: eladó
Alapterület: 52 m2
Fűtés: gáz (cirko)
Állapota: -
Szobák száma: 2
Építés éve: 1920
Szintek száma: -
További adatok
Telekterület: -
Kert mérete: -
Erkély mérete: 5 m2
Felszereltség: -
Parkolás: -
Kilátás: utcai
Egyéb extrák:  
-
Hirdető adatai
Hirdető neve: Otthon Centrum
Kapcsolattartó: Bringye Viktória
Hirdető telefonszáma: +36 70 716 8186
Honlap: -

Üzenetet küldhet a hirdetőnek:
Az Ön neve:
Az Ön e-mail címe:
Üzenet: