Részletes leírás
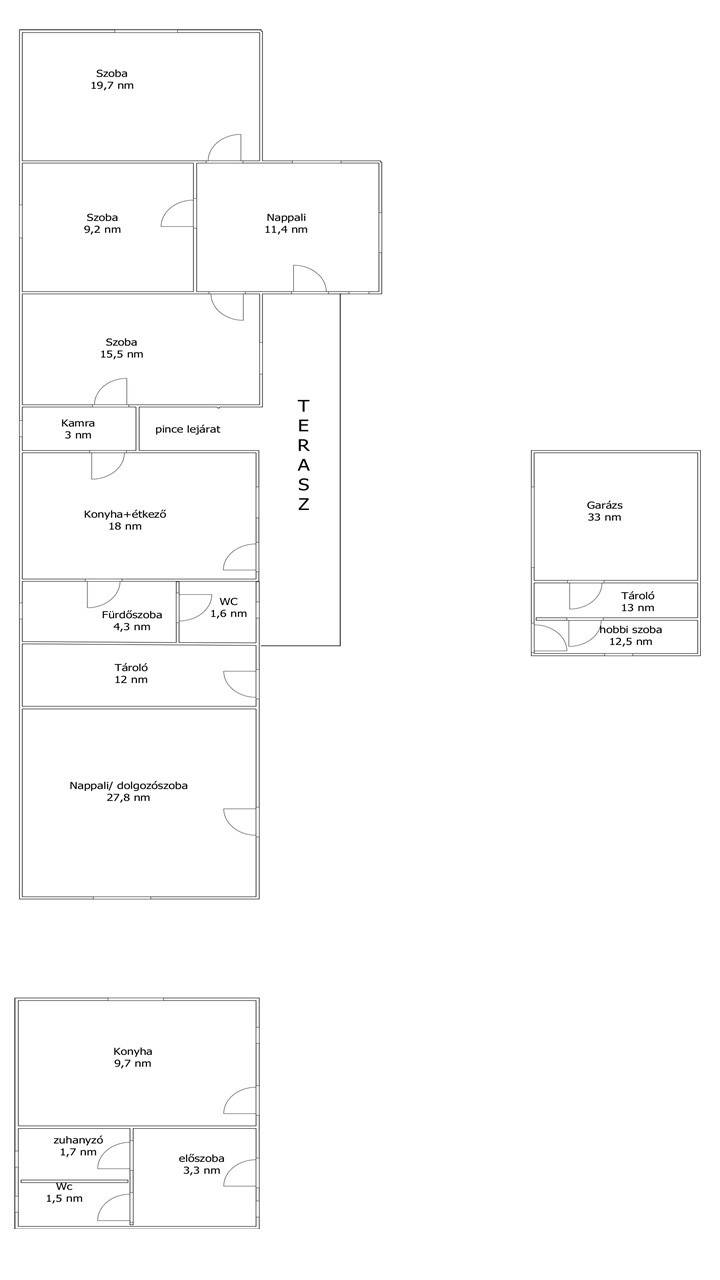
Milota, hol az álmok valóra válhatnak ! Nehéz szavakba foglalni az első benyomást, az ott kapott energiát, azt az összhangot, ahol a nyugalom és az energia együtt érvénysül! Ezt a birtokot látni, érezni kell egyben!Adatokat írok, de a képek magukért beszélnek, s ami igazán számít, az maga az ott eltöltött idő!Egy olyan birtok, ahol nemcsak otthon, hanem megélhetés, család és harmónia is egyszerre lehet leendő lakója birtokában, ahová tényleg csak személyes dolgok kellenek és elkezdődhet az Új élete.Ebben a kínálatban, nemcsak egy ház, hanem minden, ami kapun belül van, pár személyes tárgyon kívül, része az eladási árnak. Gépek, mezőgazdasági eszközök, szerszámok, bútorok, s a mindennapos élet számtalan apró tárgya is. Néhány adat: Több Helyrajzi számon található, mégis egy egységet alkot.Telek területe melyen az épületek találhatóak 4658 nm, melyhez tovább kapcsolódik az 5 parcellából álló terület 6936 nm, ahol jelenleg kukorica ültetvény fejlődik, 200 m-re az öntöző csatornától, melyben a Tisza vize folyik.- A Fő épület a 1962 években épült, falazata vályog és tégla, tetőrendszere Lindab lemezzel fedett, nyílászárói hőszigetelt fa nyílászárók, kivéve a konyha és a fürdőszoba, melyben már Műanyagból készült hőszigetelt nyílászárókra cseréltek.. A teljes épületben új Gáz cirkó fűtésrendszer alakítottak ki, mely a meleg vizet is biztosítja. Új zuhanyzós fürdőszoba is rendelkezésre áll, melyben a teljes vízvezeték rendszer is cserélve lett, mindez 2018-ban. A belső elrendezésében 3 szoba található, melyben gyönyörű Francia kézműves fa alapú bútorokkal lett berendezve, melyeket tulajdonosai korszerűen restauráltattak, így minősége még sok-sok évtizedik is kiváló lesz. Napfényes, világos és minden oldalról egy gyönyörű park veszi körbe, ahová megint egy stílusához illő teraszon keresztül jutunk. Ebben ez épületben egybejárhatóan, egy korszerű új beépített konyhabútorral, teljes gépészettel felszerel konyha - étkező is található, ahonnan megközelíthető a teljesen új és ízléses fürdőszoba, valamint egy kisebb kamra is. A főépület vonalában még egy nappali vagy dolgozószoba is kialakításra került, melyet jelenleg könyvtárként használnak tulajdonosai, de méretéből adódóan más funkciót is elláthat, például vendégszoba gyanánt, mivel két kihúzható rekaméval rendelkezik. Ennek az épületnek egy része alatt található pince is, mely tárolásra, hűtésre kiválóan alkalmas.- A több épületegységből álló birtokon a másodikban, ez a \"nyári részleg \" , kialakult egy külső konyha is, amely igen hasznos a nyári hónapokban, de a téli hűvösben való használhatósága érdekében, elektromos panellel fűthetővé tették, így az év minden szakában egy kis kincs! Ez az épület 2017-ben épült, falazata tégla, tetőrendszere Lindab lemezzel fedett, nyílászárói szintén hőszigetelt műanyagok és ami minden háziasszonynak fontos, ez a konyha is teljesen gépesítve, felszerelve.Mivel nagy a birtok, a konyha mellett kialakult a második fürdőszoba+ wc is, a könnyebb megközelíthetőség és munka utáni felfrissülés szempontjából igen hasznos, s melyet a fedett terasszal tettek védetté. - A harmadik épületben található a garázs, mely 2 autó számára is helyet biztosít, mindez 33 nm-en, valamint van hozzá tartozó tároló is. Itt kialakításra került még egy hobbi szoba, ami + egy kis kedvenc lesz leendő tulajdonosának, ami a baráti összejövetelek talán, legjobban kihasznált helysége a \"pálinkárium\" !! Ez az épület 2012-ben újult meg, falazata tégla, tetőrendszere zsindellyel fedett és ez az épület is előtetővel védett.A három épület ölelésében egy filagória kapott helyet egy hatalmas diófa árnyékában és amelyben egy kemence is szelíden megbújik, mégis ékeként az építménynek! Tökéletesen elhelyezve, minden pont ott van, ahol lennie kell, praktikusan és teljes összhangban egymással, ahhoz hogy a mindennapi életet szolgálja. Mindez egy hatalmas zöld birtokon, melyen a híres \"Nemtudom \" szilvafák sokasága és a diófák adnak árnyékot, de található Barack, Körte, Bodza és Somfa is közöttük. Fontos megemlítenem, hogy a területen 4 db tároló is helyet kapott, valamint fúratott kút is található.A hatalmas területen elhelyezkedő birtokra egy kézműves, szépen kidolgozott és karbantartott \"Székelykapun \" keresztül jutunk be, mely nemcsak a teljes kerítés rendszernél, de a korlátok és a filagória oldalfalánál is megjelenik ! Mindez maga a hagyományok és a jelen kor összefonódásában, a park kialakítással összekapcsolva.A teljes birtok mozgás érzékelős kamera rendszerrel ellátott. Az birtokhoz külön helyrajzi számmal több terület is tartozik:-- Tisza partján diós, 36 db diófával 2630 nm-en.-- Túr partján akácos , ültetvény 6582 nm-en-- Tisza partján erdős terület 1548 nmTeljes területek összesen 17696 nm.Milota Magyarország Szatmár keleti részében a Kárpátok ölelésében található, közel a hármas határhoz, az országba belépő 8 kanyart leíró Tisza partján. Az egész környék NATURA 2000 természetvédelmi terület, amiből kifolyólag a természet érintetlen, nincs ipar, nincs intenzív mezőgazdaság, a klíma változás ellenére nincs szélsőséges időjárás, amolyan mikroklíma figyelhető meg. Innen indul a híres Milotai M10 DIÓ, a Milotai Bio Ásványvíz, amely 2019-ben, Hongkongban aranyérmet nyert. Itt található a Tisza-Túr közi Víztározó, mely nemcsak a víztárolás és vízvédelem miatt számottevő, hanem az élővilág és az ökoszisztémák fejlesztése miatt is. A folyó töltésen több km-en kerékpárpálya épült, mely már most is remek lehetőség kikapcsolódásra és a sport kedvelőinek, valamint strand kialakítás is tervben van. Található a településen Önkormányzat, Iskola, Egyház-vallási közösség, kereskedelmi szolgáltatók és egy kis szórakozáshoz egy halastó is! Rendezett, biztonságos, szépen kialakított település, remek utakkal, parkosítással.A birtok nem csak családi otthonnak, de kétgenerációs birtoknak is kiváló, mely a gépparkkal és területekkel, akár Önfenntartóan is működtethető, akár Bio termelésre is. Telek nagysága és a sok évtized munkájának köszönhetően, remek lehetőség turizmus kialakítására, vendégháznak, rendezvényháznak: esküvők vagy baráti összejövetelek helyszínének.Amennyiben szeretne bővebb információt vagy személyesen is szeretné megnézni, kérem keressen telefonon. Az ára irányár, komoly érdeklődés esetén alkuképes! Megtekintés, kizárólag előre egyeztetett időpontban lehetséges.Vevő ügyfeleink részére minden szolgáltatásunk díjmentes.

Szabolcs-Szatmár-Bereg megye, Milota
 

Ingatlan adatai
Irányár: 90 000 000 Ft
Típus: ház
Kategória: eladó
Alapterület: 126 m2
Fűtés: gáz (cirko)
Állapota: -
Szobák száma: 4
Építés éve: 1962
Szintek száma: -
További adatok
Telekterület: 19 238 m2
Kert mérete: 19 238 m2
Erkély mérete: -
Felszereltség: -
Parkolás: -
Kilátás: -
Egyéb extrák:  
-
Hirdető adatai
Hirdető neve: Otthon Centrum
Kapcsolattartó: Pocsai Katalin
Hirdető telefonszáma: +36 70 469 3481
Honlap: -

Üzenetet küldhet a hirdetőnek:
Az Ön neve:
Az Ön e-mail címe:
Üzenet: