Részletes leírás
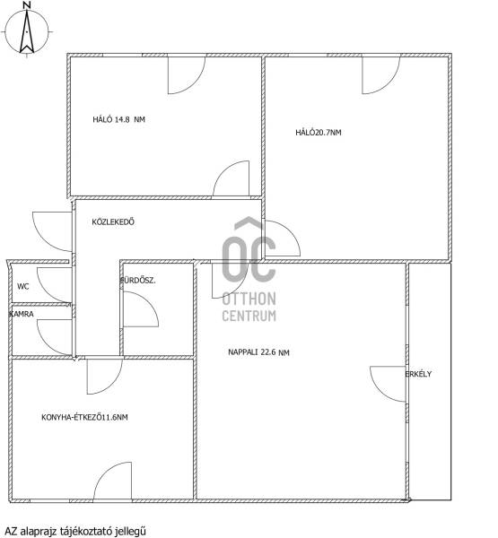
Tolna vármegyében , Simontornyán, egy kedves Sió parti kisvárosban, első emeleti tégla lakás eladó.A lakás csendes utcában, de mégis központhoz közel, fekszikA 85nm-es, első emeleti lakásban van 3 nagy méretű szoba, étkező-konyha, kamra, fürdőszoba, külön wc, egy nagyobb méretű erkély. A lakáshoz garázs is tartozik, a társasház udvarán.A lakás melegéről télen hőtárolós elektromoskályhák, illetve egy inverteres klíma felel, mely gondoskodik a nyári melegben a hűtésről is. A külső nyílászárók korszerű műanyagra vannak cserélve. A belső tér felújítást igényel, de igény esetén jelen állapotban is beköltözhető.A társasház nagyobb kert közepén fekszik, kellemes zöld környezetben, árnyat adó fákkal.Amennyiben felkeltettem érdeklődését, kérem hívjon a megadott számon.Teljes körű pénzügyi megoldások ügyintézése díjmentesen.Minden élethelyzetre végzünk pénzügyi elemzést - ha vásárolni szeretnél, segítünk, hogy ezt a legjobb feltételek mellett tedd; ha eladni szeretnéd ingatlanod, nézzük meg, hátha érdemes meglévő hiteledet átváltani.Keress bizalommal, szakértők vagyunk.

Tolna megye, Simontornya
 

Ingatlan adatai
Irányár: 26 500 000 Ft
Típus: lakás (tégla)
Kategória: eladó
Alapterület: 85 m2
Fűtés: elektromos
Állapota: -
Szobák száma: 3
Építés éve: 1980
Szintek száma: -
További adatok
Telekterület: -
Kert mérete: -
Erkély mérete: 2 m2
Felszereltség: -
Parkolás: -
Kilátás: utcai
Egyéb extrák:  
-
Hirdető adatai
Hirdető neve: Otthon Centrum
Kapcsolattartó: Szélesné Varga Ilona
Hirdető telefonszáma: +36 70 388 5761
Honlap: -

Üzenetet küldhet a hirdetőnek:
Az Ön neve:
Az Ön e-mail címe:
Üzenet: