Részletes leírás
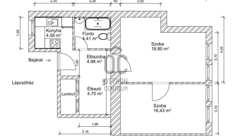
Fedezze fel új otthonát Budapest szívében – 2 szobás lakás Kelenföldön várja Önt!Fedezze fel Budapest 11. kerületének kiváló lokációval rendelkező ingatlanját, amely ideális választás lehet akár saját otthonának, akár befektetési céllal.Ez a 54 négyzetméteres, 2 szobás lakás Kelenföld szívében helyezkedik el, ahol a városi élet minden előnyét élvezheti. A lakás jó állapotban várja új tulajdonosát, így azonnal birtokba vehető. A távfűtés biztosítja a kellemes hőmérsékletet a hideg hónapokban, és az egyedi mérés lehetősége lehetővé teszi a költségek hatékonyabb nyomon követését.A környék ellátottsága kiváló, hiszen a közeli üzletek, éttermek és szolgáltatások mindössze pár perc sétára találhatók. A mindennapi élethez szükséges kényelmi szolgáltatások könnyen elérhetők, legyen szó bevásárlásról vagy szórakozásról. A központi elhelyezkedés lehetővé teszi, hogy a város bármely pontja könnyen és gyorsan megközelíthető legyen. A közlekedési lehetőségek kiemelkedőek: a közeli busz- és villamosmegállók révén a város többi része is gyorsan elérhető, így a napi ingázás nem jelent majd problémát. A Kelenföldi városrész biztonságos és csendes, ami ideális környezetet biztosít a nyugodt mindennapokhoz. A zöld területek közelsége lehetőséget ad a szabadidő kellemes eltöltésére, legyen szó sétáról vagy sportolásról. Az ingatlan tehermentes, így a vásárlás folyamata gyorsan és zökkenőmentesen lebonyolítható. Ez a világos lakás nem csupán egy ingatlan, hanem egy lehetőség is, hogy egy olyan környezetben éljen, ahol a városi élet minden előnyét élvezheti, miközben a nyugalom szigetévé is válhat. Ha bármilyen kérdése van az ingatlannal kapcsolatban, vagy szeretné megtekinteni a lakást, ne habozzon keresni minket bizalommal. Szakértőink készséggel állnak rendelkezésére, hogy segítsenek Önnek a legjobb döntés meghozatalában.Az ingatlanpiac dinamikus, és ez a nagyszerű ajánlat nem sokáig lesz elérhető, ezért érdemes mielőbb lépni!

Budapest, XI.kerület
 

Ingatlan adatai
Irányár: 95 000 000 Ft
Típus: lakás (tégla)
Kategória: eladó
Alapterület: 54 m2
Fűtés: távfűtés
Állapota: -
Szobák száma: 2
Építés éve: 1930
Szintek száma: -
További adatok
Telekterület: -
Kert mérete: -
Erkély mérete: -
Felszereltség: -
Parkolás: -
Kilátás: utcai
Egyéb extrák:  
-
Hirdető adatai
Hirdető neve: Otthon Centrum
Kapcsolattartó: Bezdán Edina
Hirdető telefonszáma: +36 70 388 5341
Honlap: -

Üzenetet küldhet a hirdetőnek:
Az Ön neve:
Az Ön e-mail címe:
Üzenet: