Részletes leírás
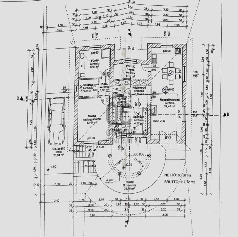
Balatongyörök panorámás, csendes, forgalomtól elzárt, strandhoz közeli részén kínálunk egy 2017-ben épült mediterrán stílusú, nettó 150m2-es lakóházat, gyönyörűen parkosított, 1022nm-es telekkel, alacsony rezsivel.KIEMELT MEGBÍZÁS AZ OTTHON CENTRUM KÍNÁLATÁBAN!Az ingatlan fő jellemzői:- aszfaltos, minimális forgalmú úton megközelíthető- BALATONI részpanorámás telek és ház, kilátással a település felett húzódó csodaszép, ritkás, fenyvessel tarkított Keszthelyi-hegység csúcsára is- az udvar előkertből, oldal és hátsókertből áll, rendezett, parkosított, körbekerített- összközműves ingatlan saját 30m mély FÚRT KÚTTAL- 2.5kW-os NAPELEMRENDSZER segíti csökkenteni a villanyszámlát 13 panellel- 2 féle fűtési rendszer: gázcirkó és vízteres kandalló keringeti a meleg vizet, melynek hője a padlóban, illetve a radiátorokban kerül leadásra- a nappaliban inverteres KLÍMA került beszerelésre- a melegvizet 2 villanybojler adja- a ház födéme SZIGETELT, mediterrán betoncseréppel héjazott- a ház 38-as porotherm TÉGLÁBÓL épült, szigetelt- az első lakószint alatt található az ablakos, gépészetnek is helyt adó pince- a földszinti részen található egy üvegezett terasz, az előtérből nyílik a wc-kézmosó, a hálószoba, a gardrób, a zuhanyzós fürdőszoba, valamint a konyha-étkező-nappali- az emeletre kényelmes lépcsőn jutuk fel, itt található egy panorámás, tágas szoba, teakonyha, zuhanyzós fürdőszoba és egy kisebb szoba, valamint egy nagy, fedett terasz teljes kilátással a Balaton Keszthelyi-öblére- fedett és nyitott autóbeállási lehetőség is adott.- a nyílászárók műanyagok, hőszigeteltek, redőnnyel és szúnyoghálóval ellátottak- minden helyiség ablakos, világos- az étkező-nappalit és az emeleti teraszt a déli nap éri, míg a szobákat és az üvegezett teraszt a délutáni- 2 GENERÁCIÓNAK is kiváló- a kertben 13 féle PÁLMA található, ezek mellett pedig termő gyümölcsfák és bokrok (alma, körte, őszibarack, nektarin, indián banán-pawpaw, szőlő, málna, fekete szeder)- a kert igazi ritkaság, mely az évek során összegyűjtött különleges fajták és szeretettel gondozott munka eredménye- a strand gyalogosan elérhető„Sohasem felejtem azt a pillanatot, amikor én ezt a tündérországot először megláttam.” Szólnak Eötvös Károly – író, a település szülöttének szavai.Balatongyörök egy község Zala vármegyében, a Keszthelyi járásban, a Balaton északi partján, a 71-es főút mellett. A település két vasúti megállóhellyel rendelkezik, valamint sűrű autóbuszjárat köti össze Keszthellyel és Tapolcával. Nyári időszakban rendszeres hajójárat indul Keszthelyre, valamint Balatonmáriafürdő, Szigliget és Badacsony érintésével Fonyódra.Balatongyörök legismertebb pontjai a Szépkilátó és a györöki strand. A balatongyöröki strand vize kiváló minőségű és kristálytiszta, minden évben a legjobbaknak járó kékhullám zászló kitüntetéssel díjazott.Ha felkeltettem érdeklődését ezzel a korszerűen megépített, nyaralónak vagy állandó lakhatásra is ideális ingatlannal, várom megtisztelő hívását.Angol leírásFamily house with a panoramic view of the Balaton and low utilitiesIn the panoramic, quiet part of Balatongyörök, with no traffic, close to the beach, we offer a Mediterranean-style, net 150 sqm residential house built in 2017, with a beautifully landscaped, 1022 sqm yard, with low utility costs.The main features of the property:- Accessible by an asphalt road with minimal traffic- Land and house with a panoramic view of Balaton, with a view to the peak of the beautiful, rare, pine-covered Keszthelyi Mountains stretching above the settlement- The yard consists of a front garden, a side garden and a back garden, arranged, landscaped and fenced- Full public utility supplied property with its own 30m deep drilled well- A 2.5kW solar panel system helps reduce the electricity bill with 13 panels- 2 types of heating systems: a gas based and a wooden burning stove circulate the hot water, the heat of which is released in the floor and in the radiators- The living room is equipped with inverter air conditioning- Hot water is provided by 2 electric boilers- The roof of the house is insulated and covered with Mediterranean concrete tiles- The house is built of 38 porotherm tiles, insulated- Below the first living floor is the basement with windows, hosting the machines of the heating system and the well.- On the ground floor there is a glazed terrace, from the hall we can enter to the guest toilet with sink, to the bedroom, a wardrobe, a bathroom with a shower, and to the kitchen-dining-living room- We reach the first floor by a comfortable staircase, there is a panoramic, spacious room, kitchenette, bathroom with shower and a smaller room, as well as a large, covered terrace with a full view of the Keszthely bay of Balaton- Covered and open parking is also available.- The doors and windows are plastic, thermally insulated, equipped with shutters and mosquito nets- All rooms have windows and are bright.- The dining-living room and the upstairs terrace are exposed to the midday sun, while the rooms and the glazed terrace are exposed to the afternoon sun.- Excellent for 2 generations- There are 13 types of palm trees in the garden, as well as fruit trees and bushes (apples, pears, peaches, nectarines, Indian banana-pawpaws, grapes, raspberries, blackberries)- The beach is within walking distance\"I will never forget the moment I saw this fairyland for the first time.\" The words of Károly Eötvös - writer, native of the settlement.Balatongyörök is a village in the county of Zala, in the district of Keszthely, on the northern shore of Lake Balaton, next to highway 71. The settlement has two railway stops and a frequent bus route connects it with Keszthely and Tapolca. During the summer season, there is a regular boat service to Keszthely, as well as to Fonyód via Balatonmáriafürdő, Szigliget and Badacsony.The best-known points of Balatongyörök are Szépkilátó lookout point and the beach. The water of the beach in Balatongyörök is of high quality and crystal clear, awarded every year.If I have piqued your interest with this modernly built property that is ideal for vacation or permanent residence, I look forward to hearing from you.

Zala megye, Balatongyörök
 

Ingatlan adatai
Irányár: 159 000 000 Ft
Típus: ház
Kategória: eladó
Alapterület: 195 m2
Fűtés: -
Állapota: -
Szobák száma: 5
Építés éve: 2017
Szintek száma: -
További adatok
Telekterület: 1 022 m2
Kert mérete: 1 022 m2
Erkély mérete: 35 m2
Felszereltség: -
Parkolás: -
Kilátás: -
Egyéb extrák:  
-
Hirdető adatai
Hirdető neve: Otthon Centrum
Kapcsolattartó: Mogyorósi Anita
Hirdető telefonszáma: +36 70 412 3501
Honlap: -

Üzenetet küldhet a hirdetőnek:
Az Ön neve:
Az Ön e-mail címe:
Üzenet: