Részletes leírás
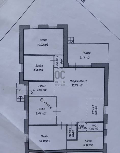
Ha modern, alacsony rezsijű, jó elosztású otthont keresel, ahol a kényelem és a praktikum találkozik, ez a 84 m²-es, nappali + 4 szobás ikerház remek választás.A ház kiváló hangszigetelésének köszönhetően a forgalom zaja a belső terekben nem hallható – így a központi elhelyezkedés előnyeit élvezheted, a nyugalom megtartásával. Amit érdemes tudni:-Átgondolt elrendezés: nappali + 4 hálószoba -külön fürdő, WC valamint kamra – ideális családoknak-Minőségi kivitelezés és modern kényelmi extrák-Antracit alumínium redőnyök (a teraszajtón elektromos kivitel)-Szúnyoghálók minden ablakon-Padlófűtés az előszobában, nappaliban, konyhában, fürdőben és WC-ben – a hálószobák radiátoros fűtésűek-Energiatakarékos megoldások-15 cm grafitos homlokzati szigetelés + padlásszigetelés-Korszerű fűtésrendszer, alacsony fenntartási költségKert és parkolás14 m²-es terasz, gondozott udvar3 autó számára kialakított parkoló ElhelyezkedésForgalmasabb úton, de a házban és az udvaron belül csendes – köszönhetően a modern hangszigetelésnek és zárt kialakításnak.Közelben boltok, iskola, buszmegálló, és főbb közlekedési utak – minden elérhető pár perc alatt. Kinek ajánljuk?Azoknak, akik szeretnének egy modern, alacsony rezsijű házat, jó megközelíthetőséggel, kompromisszummentes belső komforttal. Érdekel?Hívj bizalommal a megtekintésért — az ingatlan kiváló állapotban van!Ha hitelre van szükséged, bankfüggetlen tanácsadóink díjmentesen segítenek a legjobb konstrukció kiválasztásában. Ez az ingatlan egyedi konstrukcióban elérhető, részletek: http://www.oc.hu/felezocsomagEz az ingatlan a \"Hűség csomag\" megbízási portfólióhoz tartozik. Részletek az Otthon Centrum weboldalán.

Pest megye, Szigethalom
 

Ingatlan adatai
Irányár: 83 900 000 Ft
Típus: ház
Kategória: eladó
Alapterület: 84 m2
Fűtés: gáz (cirko)
Állapota: -
Szobák száma: 5
Építés éve: 2019
Szintek száma: -
További adatok
Telekterület: 330 m2
Kert mérete: 330 m2
Erkély mérete: 18 m2
Felszereltség: -
Parkolás: -
Kilátás: -
Egyéb extrák:  
-
Hirdető adatai
Hirdető neve: Otthon Centrum
Kapcsolattartó: Faragó Tímea
Hirdető telefonszáma: +36 70 388 5256
Honlap: -

Üzenetet küldhet a hirdetőnek:
Az Ön neve:
Az Ön e-mail címe:
Üzenet: