Részletes leírás
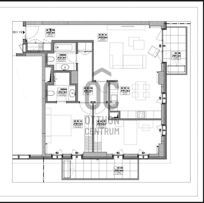
Eladó egy kivételes adottságokkal rendelkező, 3 szobás, 2 fürdőszobás, 87 m2-es lakás a 11. emeleten, Budapest IX. kerületének új városrészében, a Vágóhíd utcában!Ez az új, 3 szobás otthon 87 m² alapterületű, és 2 különálló TERASSZAL is rendelkezik (5.46 m² és 8.29 m²), amelyek nemcsak kellemes kültéri életteret kínálnak, de lélegzetelállító panorámát nyújtanak a Parlamentre, a Bazilikára, a Budai hegyekre, valamint a város számos ikonikus pontjára. A házközponti fűtés egyedi mérővel működik, így a fenntartási költségek könnyen kontrollálhatók.A lakás a City Pearl nevű, modern, 2024-ben épült, újépítésű társasházban helyezkedik el, Budapest egyik legdinamikusabban fejlődő, élettel teli városrészében. Az épület lifttel felszerelt, a videókaputelefon pedig gondoskodik a lakók biztonságáról.A világos, jól átgondolt elrendezésnek köszönhetően a lakás minden korosztály számára ideális választás – legyen szó saját otthonról vagy értékálló befektetésről. A tágas nappali és hálószobák otthonos, barátságos légkört teremtenek, míg a modern kialakítás biztosítja a mindennapi kényelmet.További előny: a saját TEREMGARÁZS-beállóhely az ár részét képezi, ami ritka lehetőség ebben a városrészben.A világos, jól átgondolt elrendezésnek köszönhetően a lakás minden korosztály számára ideális választás – legyen szó saját otthonról vagy értékálló befektetésről. A tágas nappali és hálószobák otthonos, barátságos légkört teremtenek, míg a modern kialakítás biztosítja a mindennapi kényelmet.Az épület egy korszerű, lifttel ellátott társasházban található, ahol a videókaputelefon növeli a biztonságot, a házközponti fűtés egyedi mérővel pedig segít kordában tartani a rezsiköltségeket.A környék infrastruktúrája kiváló: villamos- és buszmegállók néhány perc sétára elérhetők, így a város bármely pontja gyorsan megközelíthető. Autósok számára is ideális választás, hiszen a környék biztonságos, csendes és jól parkolható.A lakópark zöldterületekkel körülvett, barátságos környezete tökéletes helyet kínál a kikapcsolódásra, sétákra vagy akár gyermekes családok számára is.Ne hagyja ki ezt a ritka lehetőséget, és élvezze Budapest pezsgő belvárosi életét egy stílusos otthonban!Jöjjön el, nézze meg személyesen – és szeret bele első látásra!Egyedi igényekre szabott lakáshitelekkel állunk rendelkezésére. Bankfüggetlen hitelcentrumunk az országban elérhető összes bank és hitelintézet ajánlatát versenyezteti az Ön számára díjmentesen. Munkatársaink nagy szakmai tapasztalattal várják Önt az előre egyeztetett időpontban akár a normál munkaidő után is.Bővebb információért és a megtekintéssel kapcsolatban hívjon bizalommal!

Budapest, IX.kerület
 

Ingatlan adatai
Irányár: 210 000 000 Ft
Típus: lakás (tégla)
Kategória: eladó
Alapterület: 87 m2
Fűtés: házközponti egyedi méréssel
Állapota: -
Szobák száma: 3
Építés éve: 2024
Szintek száma: -
További adatok
Telekterület: -
Kert mérete: -
Erkély mérete: 13 m2
Felszereltség: -
Parkolás: -
Kilátás: utcai
Egyéb extrák:  
-
Hirdető adatai
Hirdető neve: Otthon Centrum
Kapcsolattartó: Simon Nikolett
Hirdető telefonszáma: +36 70 388 5956
Honlap: -

Üzenetet küldhet a hirdetőnek:
Az Ön neve:
Az Ön e-mail címe:
Üzenet: