Részletes leírás
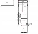
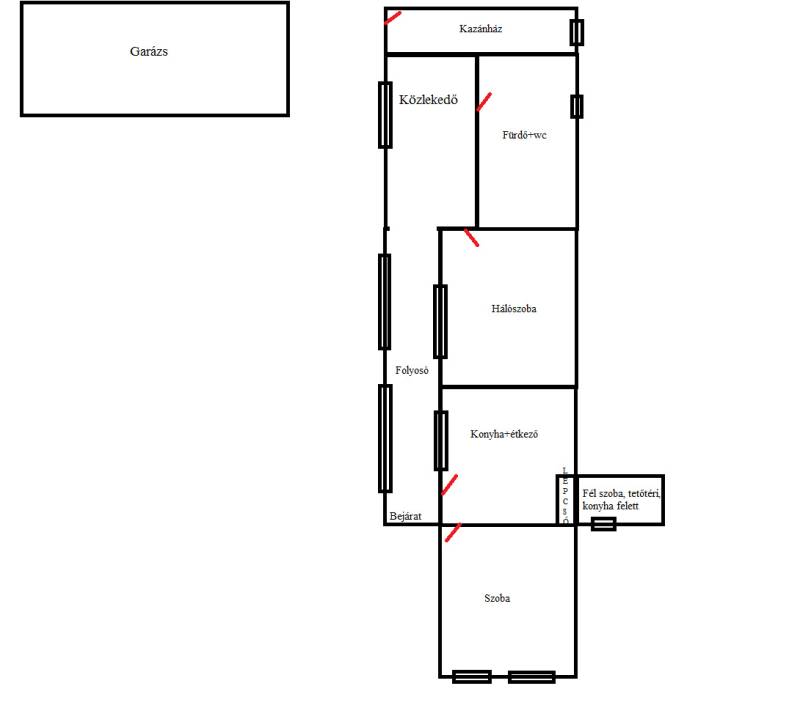
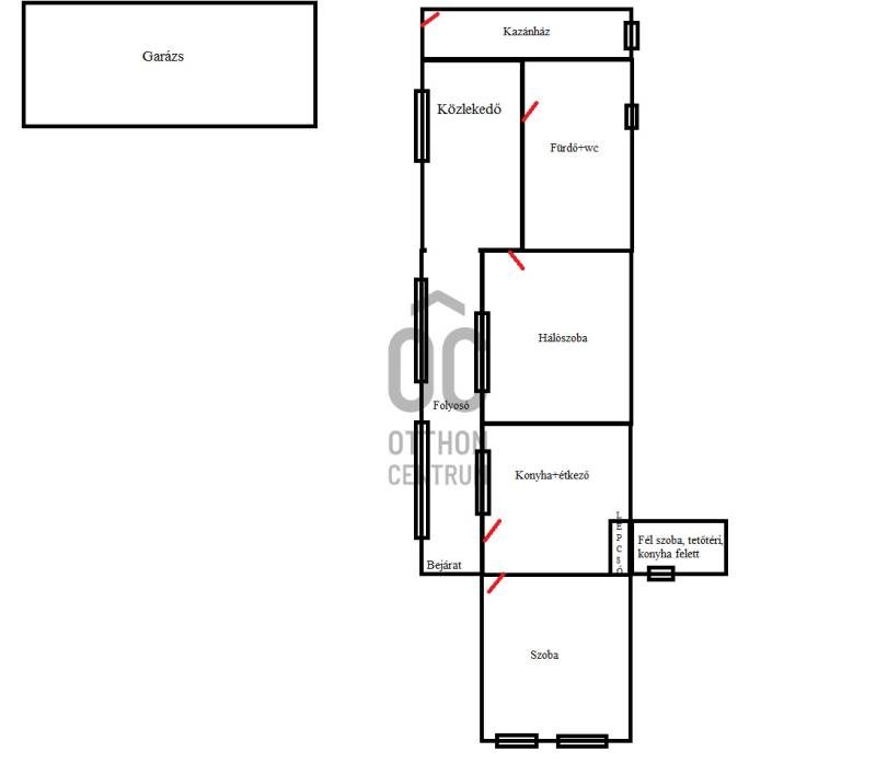
Kiemelt megbízás irodánk kínálatában !Fedezze fel ezt a kivételes lehetőséget Tapolca szívében.Az ingatlan főbb jellemzői :- 69 nm hasznos alapterület- 344 nm telek - 2 tágas szoba , konyha , étkező , fürdőszoba ,wc- a konyha felett egy félszoba - fűtése vegyes tüzelésű kazánnal megoldott- a ház beszigetelése egy éve készült el , illetve a nyílászárók is ki lettek cserélve - belvárosában helyezkedik el, ideális választás mindenki számára, aki értékeli a központi elhelyezkedést és a kényelmet. - A garázsban két autó kényelmesen elfér, így a parkolás sosem jelenthet problémát.Az ingatlan tehermentes, ideális választás családoknak, fiatal pároknak vagy akár befektetőknek, akik a felkapott környék előnyeit szeretnék kihasználni. A környék kiváló adottságokkal rendelkezik: a közlekedési lehetőségek kiemelkedőek, hiszen az ingatlan könnyen megközelíthető autóval és tömegközlekedéssel egyaránt. A város központja mindössze néhány perc sétára található, ahol számos bolt, étterem és szolgáltatás várja. A csendes utcák és a barátságos szomszédság garantálják a nyugodt életkörülményeket, miközben a város pezsgő élete is elérhető közelségben van. Kérdéseivel és érdeklődésével bizalommal fordulhat hozzánk, hiszen célunk, hogy Ön megtalálja álmai otthonát vagy befektetési lehetőségét. Előre egyeztetett időpontban szívesen megmutatom .

Veszprém megye, Tapolca
 

Ingatlan adatai
Irányár: 54 900 000 Ft
Típus: ház
Kategória: eladó
Alapterület: 69 m2
Fűtés: egyéb
Állapota: -
Szobák száma: 2
Építés éve: 1980
Szintek száma: -
További adatok
Telekterület: 344 m2
Kert mérete: 344 m2
Erkély mérete: -
Felszereltség: -
Parkolás: -
Kilátás: -
Egyéb extrák:  
-
Hirdető adatai
Hirdető neve: Otthon Centrum
Kapcsolattartó: Zsohár-Rácz Bianka
Hirdető telefonszáma: +36 70 716 9486
Honlap: -

Üzenetet küldhet a hirdetőnek:
Az Ön neve:
Az Ön e-mail címe:
Üzenet: