Részletes leírás
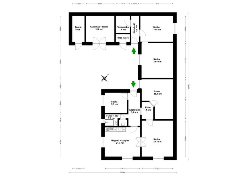
SOKOLDALÚAN HASZNOSÍTHATÓ OTTHON A TEMPLOMKERT SZOMSZÉDSÁGÁBAN!Dunabogdány Ófalu részén, a Nepomuki Szent János-templom közvetlen közelében, egy hangulatos, csendes, kis utcában, mégis közel a központhoz ELADÓ egy 140 nm alapterületű (bruttó 170) összesen 6 szobás családi ház, mely számos kiaknázatlan potenciált rejt magában!A 1960-as években épült tégla és vegyes falazatú ház két különálló lakrészből áll, melyből jelenleg az egyik lakott, ez összesen 90 nm területű. A világos, amerikai konyhás nappalin kívül három különnyíló szoba és egy zuhanyzóval felszerelt fürdőszoba került kialakításra benne. Ez a része a háznak lakható, átlagos állapotban van, fűtéséről jelenleg gáz kazán gondoskodik radiátoros hőleadókkal, néhány ablaka cserélve lett műanyag nyílászárókra, de javasolt a ház többi részét is korszerűsíteni, felújítani.A másik lakrész területe 51 nm, amiben jelenleg 2 nagyméretű szoba és egy kádas fürdőszoba található. A háznak ez a része teljesen felújítandó állapotban van így jelenleg nem lakható.A két lakrész könnyedén egybe nyitható, ezáltal egy tágas terekkel rendelkező, 6 szobás otthon alakítható ki belőle.Mindkét lakrész külön bejárattal rendelkezik, melyek az udvarból megközelíthetőek, így igény szerint 2 generációnak is tökéletesen alkalmas.A ház további helyiségekkel is rendelkezik, melyek tárolásra kiválóan alkalmasak. Egy külön bejáratú tároló ami kb 6 nm-es, egy nagy tároló helyiség amiben a kazán is helyett kapott , és egy kis pince ami szintén külön bejárattal rendelkezik.A telek 364 nm-es, összközműves, a Templom közből lehet megközelíteni, ami egy kis zsákutca összesen néhány házzal. Az utca végében már a templomkert található mely igazán különleges hangulatot kölcsönöz ennek a területnek.Az ingatlan különlegessége, hogy csendes, nyugodt környezetben helyezkedik el, mégis pár lépésre a település központjától. Gyalogosan is néhány perc alatt elérhető minden, ami a hétköznapi élethez szükséges.Iskola, Óvoda, élelmiszerbolt, pékség, Bank, orvosi rendelők, Gyógyszertár, éttermek.Dunabogdány egy rendkívül hangulatos település, a Dunakanyar egyik gyöngyszeme. Az Ófalu történelmi hangulatú, macskaköves utcái igazán egyedi atmoszférát biztosítanak az itt lakóknak.A település nyáron különösen kedvelt csodás dunaparti strandja, rendezvényei, éttermeinek köszönhetően. A települést hegyek veszik körül, ami nemcsak különösen szép látványt nyújt, de számos kirándulási és sportolási lehetőséget biztosít minden évszakban.Olyan új tulajdonost keresünk, aki egy karakteres, remek elhelyezkedésű, jól alakítható otthont keres, ahol megvalósíthatja saját elképzeléseit, egyedi igényeit!Kiváló alap a ház családi otthonnak, befektetésre, vendégháznak, kiadásra vagy két generációnak!További információkért és megtekintési szándékkal kapcsolatban várom hívását!

Pest megye, Dunabogdány
 

Ingatlan adatai
Irányár: 67 200 000 Ft
Típus: ház
Kategória: eladó
Alapterület: 140 m2
Fűtés: gáz (cirko)
Állapota: -
Szobák száma: 6
Építés éve: 1960
Szintek száma: -
További adatok
Telekterület: 364 m2
Kert mérete: 364 m2
Erkély mérete: -
Felszereltség: -
Parkolás: -
Kilátás: -
Egyéb extrák:  
-
Hirdető adatai
Hirdető neve: Otthon Centrum
Kapcsolattartó: Csatlós Fruzsina
Hirdető telefonszáma: +36 70 412 3326
Honlap: -

Üzenetet küldhet a hirdetőnek:
Az Ön neve:
Az Ön e-mail címe:
Üzenet: