Részletes leírás
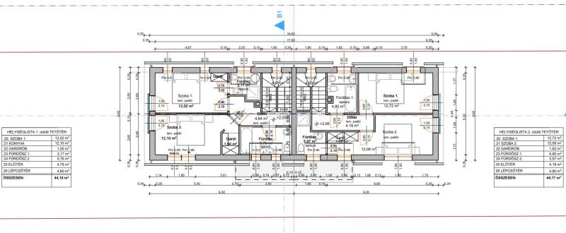
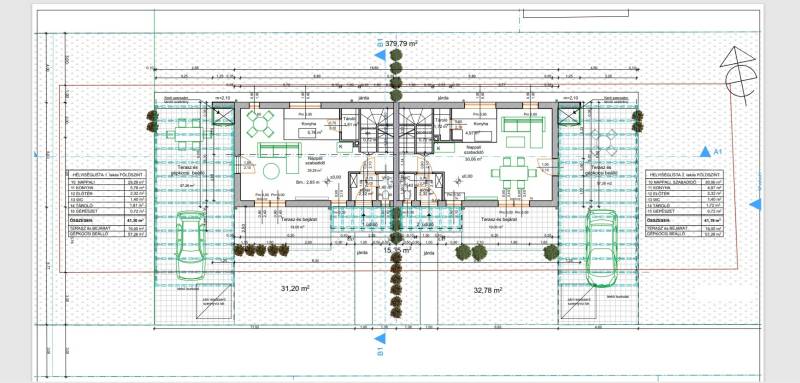
Budakalász kedvelt üdülőövezeti részén kínálunk megvételre egy folyamatban lévő, 4 lakásos lakóingatlan-fejlesztést. A projekt jelenlegi készültségi szintje kb. 25% – a földszinti és emeleti falak, valamint a monolit födém és koszorú már elkészült, a tetőszerkezet kialakítása következik.A beruházás összesen 2 ikerházból (4 lakásból) áll, lakásonként 96 m² hasznos alapterülettel és önálló, 365 m²-es telekhányaddal. A telkek külön helyrajzi számon szerepelnek, így az ikerházak egyenként is eladók.Víz és villany a telken belül bekötveLátványtervek mindkét lakástípushoz elkészültek, igény esetén módosíthatókA teljes projekt ára: nettó 160.000.000 FtEgy ikerház (2 lakás + telekhányad): nettó 80.000.000 FtKiváló lehetőség befektetőknek, kivitelezőknek, akik egy előkészített, jól elhelyezkedő fejlesztés folytatásában látnak potenciált. Az ingatlan nyugodt, zöld környezetben fekszik, ugyanakkor jól megközelíthető Budakalász központja és Budapest irányából is.További részletekkel és dokumentációval kapcsolatban keressen bizalommal – szívesen válaszolok minden kérdésre!

Pest megye, Budakalász
 

Ingatlan adatai
Irányár: 80 000 000 Ft
Típus: ház
Kategória: eladó
Alapterület: 85 m2
Fűtés: -
Állapota: új
Szobák száma: 3
Építés éve: 2025
Szintek száma: -
További adatok
Telekterület: 375 m2
Kert mérete: 375 m2
Erkély mérete: -
Felszereltség: -
Parkolás: -
Kilátás: -
Egyéb extrák:  
-
Hirdető adatai
Hirdető neve: Otthon Centrum
Kapcsolattartó: Déri Dóra
Hirdető telefonszáma: +36 70 388 5061
Honlap: -

Üzenetet küldhet a hirdetőnek:
Az Ön neve:
Az Ön e-mail címe:
Üzenet: