Részletes leírás
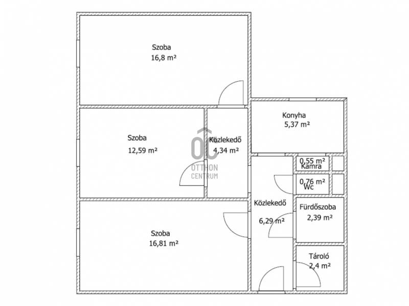
69 m² | 3 külön nyíló szoba | 4. emelet | részben felújított | csendes, zöld környezetFedezze fel ezt a kiváló elhelyezkedésű, csendes, mégis központi lakást Óbuda szívében, a Szél utcában! A lakás egy rendezett, szigetelt társasház 4. emeletén található, amely részt vett a panelprogramban.A berendezett szobákat ábrázoló képek AI által generált látványtervek.Felújítások és műszaki jellemzők:Új nyílászárók (ablakok és bejárati ajtó)Villanyvezetékek cserélveModern konyhabútor, beépített sütővel és mosogatógéppelMosógép kiállás a praktikus gardróbbanTávfűtés egyedi mérővel (kb. 12 000 Ft/hó)Közös költség: 18 000 Ft/hóElrendezés:Három külön nyíló szobaAblakos konyhaKádas fürdőszobaA szobák ablakai zöld, fás parkra néznek, kellemes kilátássalKörnyék:A lakás kiváló infrastruktúrával rendelkezik: oktatási és orvosi intézmények, piac, szupermarketek, valamint a Flórián üzletház mindössze pár perc sétára találhatók. A tömegközlekedés (buszok, villamosok, HÉV) szintén könnyen elérhető, mégis nyugodt, zöld környezet veszi körül az épületet.Parkolás az utcán, közvetlenül a ház előtt lehetséges.Keressen bizalommal, akár hétvégén is!Szívesen válaszolok minden kérdésre és egyeztetek megtekintést.

Budapest, III.kerület
 

Ingatlan adatai
Irányár: 77 900 000 Ft
Típus: lakás (panel)
Kategória: eladó
Alapterület: 69 m2
Fűtés: távfűtés
Állapota: -
Szobák száma: 3
Építés éve: 1980
Szintek száma: -
További adatok
Telekterület: -
Kert mérete: -
Erkély mérete: -
Felszereltség: -
Parkolás: -
Kilátás: utcai
Egyéb extrák:  
-
Hirdető adatai
Hirdető neve: Otthon Centrum
Kapcsolattartó: Lénárt Balázs
Hirdető telefonszáma: +36 70 412 5216
Honlap: -

Üzenetet küldhet a hirdetőnek:
Az Ön neve:
Az Ön e-mail címe:
Üzenet: