Részletes leírás
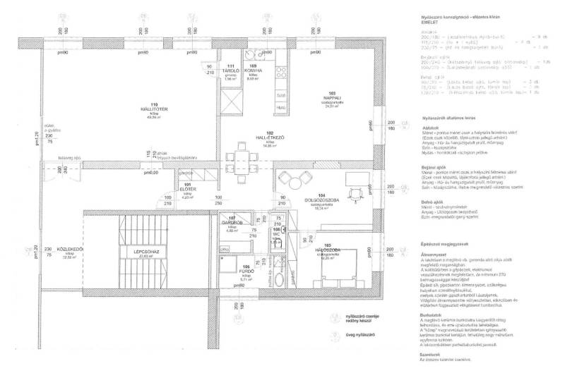
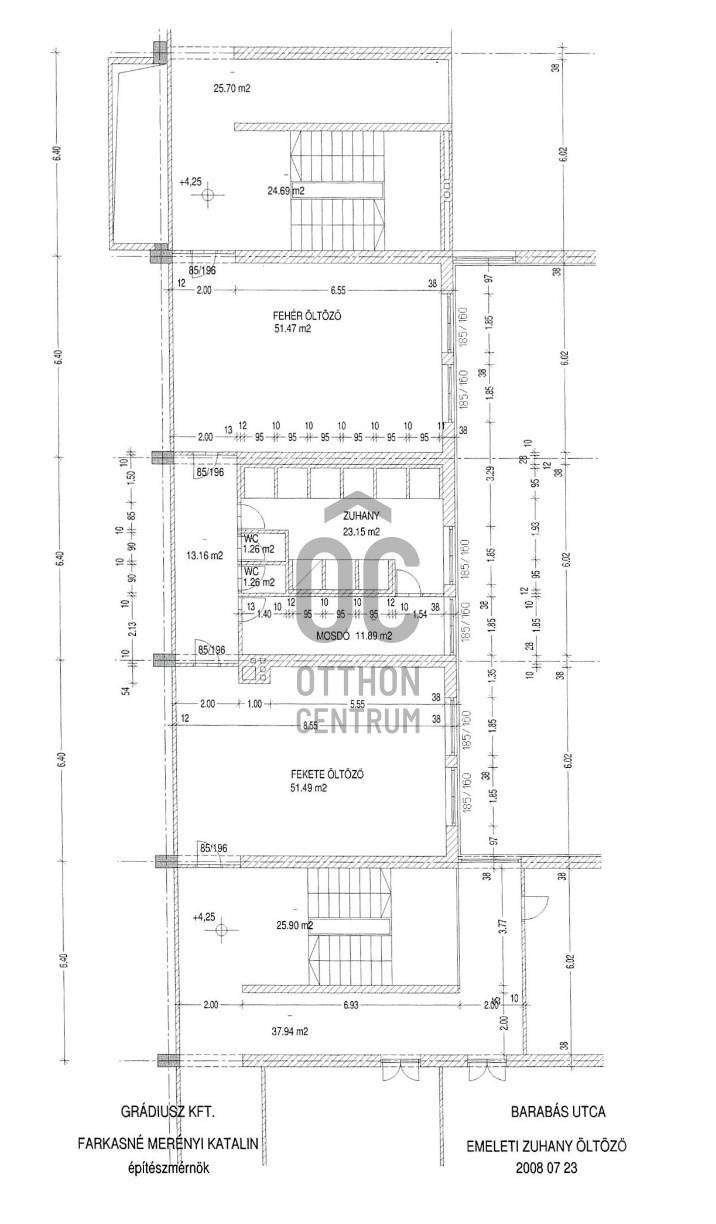
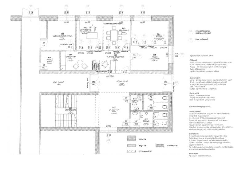
X.kerületben eladó 4000 m2-es ipari terület és a rajta álló, 2621 nm-es, 5 szintes tégla épület, 30 db parkolóval. Jelenleg több bérlője van az épületnek.Nagy épület jellemzői:Jó állapotú jelenleg is használatban van. Felosztás:Pince 200 m2, földszint 1100 m2, I. emelet 1100 m2, II. emelet 100 m2. Az ingatlan 1969-ben épült pince + földszint + l. emelet + részben 2. emelet kialakítású műhely, csarnok műhely, raktár, irodaként megépített épület. A pinceszint két szintes. A földszinti részen irodák, raktárnak kialakított helyiségek is kerültek kialakításra. Az emeleten fotóműhely, irodák, továbbá 1 db nappali+ két szobás lakás került kialakításra. Alapja betonsáv alap. A függőleges teherhordó szerkezet tégla falazat.Az épület alaprajzi kialakítása hagyományos, építési idejének megfelelő, állapota kívül átlagos. Belső terei évek óta folyamatos felújításon mennek keresztül. Cserélték a külső nyílás zárókat, burkolatokat, ateljes elektromos hálózatot, minden kiadásra alkalmas önálló helyiség külön altmérővel szerelt. A fűtést a gázról leválás után inverteres klímákkal a nagyobb terekben elektromos fűtőfóliával oldották meg. Ameleg vizet az irodai és lakó részen 2 db gázcirkó kazán radiátor hőleadókkal biztosítja. Szinte a teljes tetőszerkezet szórásos módszerrel szigetelve lett.Az ingatlan, Budapest X. kerületében a Gyárdülő városrészben helyezkedik el. Az ingatlan közvetlen környezetében szabadon álló beépítéssel cégek telephelyei, utcafronti oldalán a vasút, távolabb családi házak láthatók.Az ingatlant megközelíteni szabályozott, kiépített, szilárd burkolattal ellátott úton lehet.Infrastrukturális ellátottsága megfelelő, alap és szakszolgáltatást biztosító intézmények a közelben.Az ingatlan kamionnal megközelíthető korlátozás nélkül.

Budapest, X.kerület
 

Ingatlan adatai
Irányár: 1 200 000 000 Ft
Típus: kereskedelmi/ipari ingatlan
Kategória: eladó
Alapterület: 2 621 m2
Fűtés: -
Állapota: -
Szobák száma: -
Építés éve: 1969
Szintek száma: -
További adatok
Telekterület: -
Kert mérete: -
Erkély mérete: -
Felszereltség: -
Parkolás: -
Kilátás: -
Egyéb extrák:  
-
Hirdető adatai
Hirdető neve: Otthon Centrum
Kapcsolattartó: Kalamár Balázs
Hirdető telefonszáma: +36 70 469 3606
Honlap: -

Üzenetet küldhet a hirdetőnek:
Az Ön neve:
Az Ön e-mail címe:
Üzenet: