Részletes leírás
Fontos tudnia:•Közművek közül a víz, villany a házban, a szennyvíz és a gáz az utcában található•A bejárati ajtó műanyagra cserélve•A házhoz tartozó melléképületek, tároló, és több ól alkalmassá teszik az ingatlant gazdálkodásra is•Télen vegyes tüzelésű kályha, cserépkályha gondoskodik a melegről, nyáron a klímaberendezés a hűtésről•Beton födémszerkezetAmennyiben nem lakhatás céljából tekintené meg az ingatlant, a fantáziájára van bízva a hasznosítása!Amennyiben felkeltettem érdeklődését, kérem, hívjon.Teljes körű pénzügyi megoldások díjmentesen.Minden élethelyzetre végzünk pénzügyi elemzést - ha vásárolni szeretne, segítünk, hogy ezt a legjobb feltételek mellett tegye; ha eladni szeretné ingatlanát, nézzük meg, hátha érdemes meglévő hitelét átváltani.Keressen bizalommal, szakértők vagyunk!

Tolna megye, Szekszárd
 

Ingatlan adatai
Irányár: 44 990 000 Ft
Típus: ház
Kategória: eladó
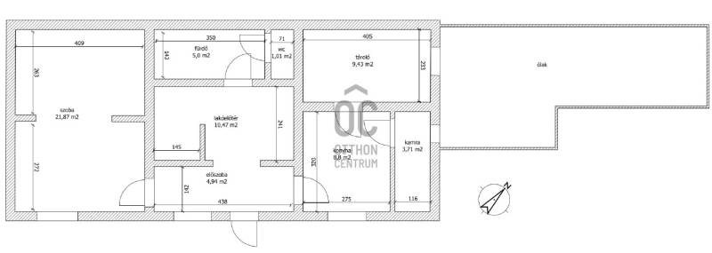
Alapterület: 64 m2
Fűtés: egyéb
Állapota: -
Szobák száma: 3
Építés éve: 1960
Szintek száma: -
További adatok
Telekterület: 1 035 m2
Kert mérete: 1 035 m2
Erkély mérete: -
Felszereltség: -
Parkolás: -
Kilátás: -
Egyéb extrák:  
-
Hirdető adatai
Hirdető neve: Otthon Centrum
Kapcsolattartó: Zentainé Pfeiffer Márta
Hirdető telefonszáma: +36 70 716 9251
Honlap: -

Üzenetet küldhet a hirdetőnek:
Az Ön neve:
Az Ön e-mail címe:
Üzenet: