Részletes leírás
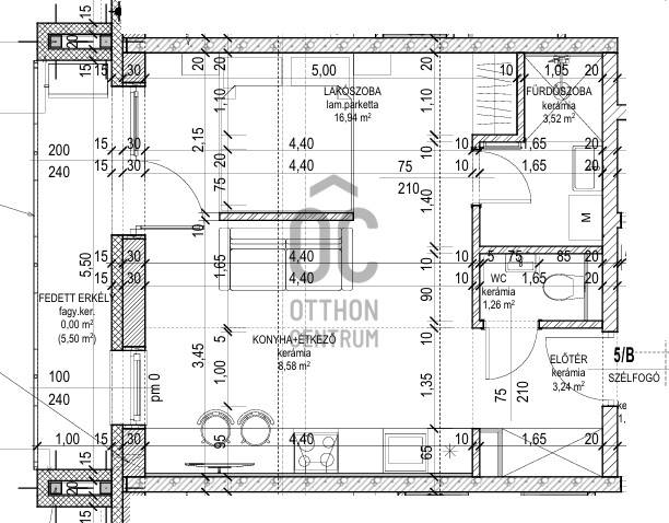
Hajdúszoboszlón fürdőközeli új építésű társasházi lakások eladóak!Jellemzői :- tetőtéri lakás- tégla építésű,szigetelt- netto : 33.76 nm- bruttó : 39.26 nm- szoba , konyha- étkező,fürdőszoba külön wc,előtér- fedett erkély- fűtése gázcirkó radiátoros hőleadással ( egyedi mért házközponti fűtés )- hőszivattyús forróvíz tárolóval megoldott a melegvíz szolgáltatás- hűtő-fűtő klíma- műanyag nyílászárók,hőszigetelt üvegezéssel- hőszigetelt öt ponton záródó műanyag ajtó- A+ energia besorolásúAz átadás várható ideje 2026.12.31.Ez az ingatlan kialakításának köszönhetően bővíthető a mellette lévő lakás megvásárlásával. ( 45.46/55.61 nm )A jelenleg még elérhető lakások:- 1. emelet 3-as lakás 55 nm +4,2 nm erkély Ára : 68.5 MFt- 2. emelet 4-es lakás 56 nm + 6 nm erkély Ára : 70.8 MFt- 2. emelet 5/A lakás 45 nm + 6 nm erkély Ára : 60 MFtAz ingatlan 200 méterre található a híres gyógyfürdőtől így állandó lakhatásra és befeketésre is kiválóan alkalmas.Az ingatlanhoz udvari beálló vagy garázs is vásárolható.A felszíni beálló ára : 4 Mft ( 15 nm )A garázs ára : 10 Mft ( 17 nm)A HIRDETÉSI ADATOK ÉS AZ ALAPRAJZ TÁJÉKOZTATÓ JELLEGŰEK !Amennyiben vásárláshoz hitelre is lenne szükséged független hitel tanácsadónk ingyenesen tud segítséget nyújtani a legjobb konstrukciók kiválasztásában és a folyamat lebonyolításában.Irodánk kereső ügyfeleinknek teljes körű szolgáltatást nyújt, szakszerű tanácsadással, energetikai tanúsítvány elkészítésével, hitelügyintézéssel és profi ügyvédi segítséggel.Hajdúszoboszló szívében, a fürdőnegyed vibráló közegében kínáljuk eladásra ezt az új építésű, 39 nm alapterületű, kiváló új építésű lakást, amely ideális választás fiatal felnőttek számára. Az ingatlan egy tágas nappalival és egy modern amerikai konyhával rendelkezik, amely tökéletes teret biztosít a baráti összejövetelekhez és a családi pillanatokhoz. A lakásban található fürdőszoba kényelmesen megtervezett, így minden szükséges funkciót biztosít a mindennapi élethez. Az ingatlanhoz tartozó 5.5 nm-es erkélyről csodás panoráma nyílik, amely lehetőséget ad a pihenésre és a szabadban eltöltött időre. A környék ellátottsága kiváló, hiszen a közeli üzletek, éttermek és szórakozási lehetőségek mindössze néhány perc sétára találhatóak. A fürdőnegyed közelsége különösen vonzó, hiszen a híres termálfürdő és wellness szolgáltatások csak egy karnyújtásnyira vannak, így a pihenés és a feltöltődés garantált. A központi elhelyezkedésnek köszönhetően a tömegközlekedési lehetőségek is rendkívül kedvezőek, a buszmegállók és a vasútállomás könnyen elérhető, így a város más részeire való eljutás sem okoz problémát. A lakás fűtése gáz cirkó rendszerrel megoldott, ami gazdaságos és megbízható megoldást jelent a téli hónapokban, míg a hűtés klímával biztosítja a kellemes hőmérsékletet a nyári kánikulában. A biztonsági ajtó pedig hozzájárul a lakás védelméhez, így Ön nyugodt szívvel élvezheti új otthonát. Ez a lakás nem csupán egy ingatlan, hanem egy életstílus, amely a modern élet igényeit szolgálja ki. Ideális választás lehet azoknak, akik befektetés céljából keresnek ingatlant, hiszen a fürdőnegyed folyamatosan vonzza a turistákat, így a bérbeadás lehetősége is kedvező. Amennyiben felkeltette érdeklődését ez a kivételes ingatlan, ne habozzon kapcsolatba lépni velünk. Szívesen válaszolunk kérdéseire, és segítünk Önnek abban, hogy megtalálja álmai otthonát Hajdúszoboszlón. Az ingatlanpiac dinamikusan változik, ezért érdemes mihamarabb lépni!hajdubiharvarmegye# hajduszoboszlo #befektetes #tarsashazilakas #szoba #fedetterkely #garazs #furdokozeli

Hajdú-Bihar megye, Hajdúszoboszló
 

Ingatlan adatai
Irányár: 46 000 000 Ft
Típus: lakás (újépítésű)
Kategória: eladó
Alapterület: 34 m2
Fűtés: gáz (cirko)
Állapota: új
Szobák száma: 1
Építés éve: 2026
Szintek száma: -
További adatok
Telekterület: -
Kert mérete: -
Erkély mérete: 6 m2
Felszereltség: -
Parkolás: -
Kilátás: udvari
Egyéb extrák:  
-
Hirdető adatai
Hirdető neve: Otthon Centrum
Kapcsolattartó: Busné Vajner Edit
Hirdető telefonszáma: +36 70 388 5821
Honlap: -

Üzenetet küldhet a hirdetőnek:
Az Ön neve:
Az Ön e-mail címe:
Üzenet: