Részletes leírás
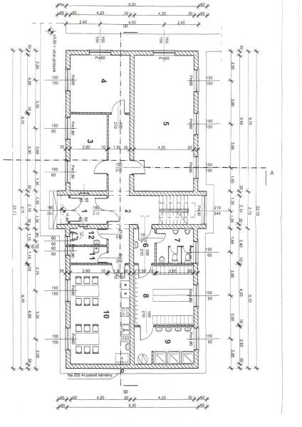
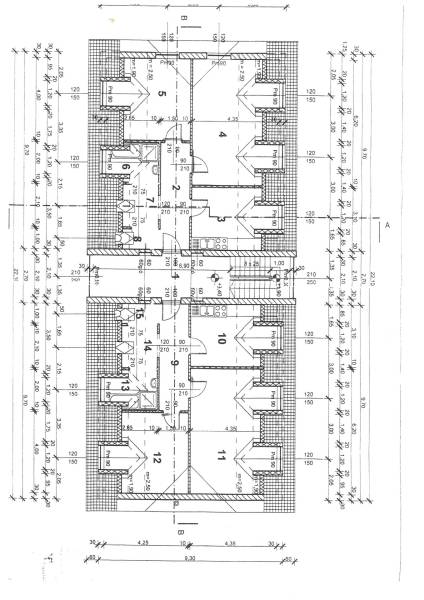
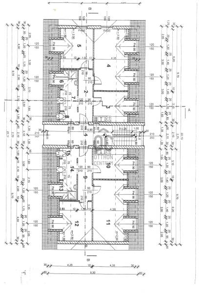
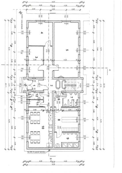
Eladásra kínálunk egy kivételes adottságokkal rendelkező, jó állapotú ingatlant Tiszafüred – Tiszaörvény városrészén, mindössze pár perc távolságra a Tisza-tótól, turisztikailag kiemelt környezetben.Az ingatlan 215 m²-es telken helyezkedik el, és egy albetétesített társasházként funkcionál, melynek hasznos nettó alapterülete összesen 380 m². Az épület két szinten oszlik meg, és jelenlegi kialakítása számos felhasználási lehetőséget kínál – legyen szó irodáról, lakóingatlanról vagy befektetés célú átalakításról.Az alsó szinten (~200 m²):Több irodahelyiségTárgyalóFürdőszobák, WC-kKazánházKözösségi öltöző és mosdókKözlekedő/lépcsőházEz a szint akár két különálló lakásként is átalakítható, így az ingatlanból összesen akár 4 darab, kb. 90 m²-es lakás kialakítására is lehetőség nyílik.A felső szinten (~180 m²):Két különálló lakás, egyenként kb. 90 m² nettó alapterülettelA lakások klasszikus elrendezésűek (külön konyha, szoba, fürdőszoba)Tetőtér-beépítés, kellemes belső terekkelMűszaki állapot és felszereltség:Jó műszaki állapot, kívül-belül karbantartottKözponti fűtés: gázkazánHűtés: klímaberendezésekTiszta, rendezett lépcsőházMiért érdemes megfontolni?Ez az ingatlan ideális választás befektetőknek, vállalkozóknak, vagy nagyobb családoknak, akik több generáció számára keresnek egy jól osztható, kényelmes elhelyezkedésű épületet. Az alsó szint sokféleképpen alakítható – iroda, rendelő, lakás, vendéglátóegység vagy szolgáltató tér is kialakítható belőle. A felső szint lakásai pedig azonnal használatba vehetők vagy kiadhatók.A környék keresett, a Tisza-tó közelsége miatt kiemelkedő turisztikai vonzerővel bír – így nyaralók, apartmanok, hosszú távú bérlemények kialakítása is remek opció lehet.Ha Ön is egy rugalmasan hasznosítható, jó állapotú, nagy alapterületű ingatlant keres Tiszafüred egyik legkedveltebb városrészén, ne hagyja ki ezt a lehetőséget!

Jász-Nagykun-Szolnok megye, Tiszafüred
 

Ingatlan adatai
Irányár: 210 000 000 Ft
Típus: lakás (tégla)
Kategória: eladó
Alapterület: 380 m2
Fűtés: házközponti fűtés
Állapota: -
Szobák száma: 10
Építés éve: 2010
Szintek száma: -
További adatok
Telekterület: -
Kert mérete: -
Erkély mérete: -
Felszereltség: -
Parkolás: -
Kilátás: utcai
Egyéb extrák:  
-
Hirdető adatai
Hirdető neve: Otthon Centrum
Kapcsolattartó: Szabó Ferenc
Hirdető telefonszáma: +36 70 412 3941
Honlap: -

Üzenetet küldhet a hirdetőnek:
Az Ön neve:
Az Ön e-mail címe:
Üzenet: