Részletes leírás
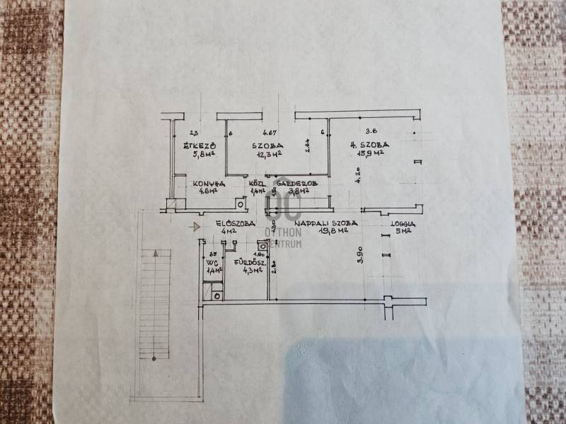
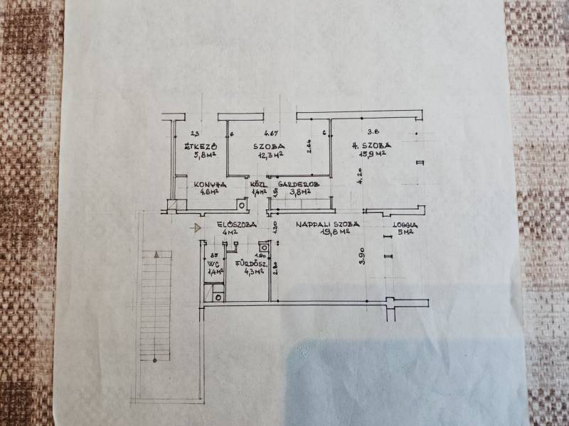
Eladásra kínálunk, Budapest II. kerületének egyik legkedveltebb zöldövezeti részén, Kuruclesen egy tágas, napfényes, 3 szobás, erkélyes lakást. Csendes, gondozott, parkos környezetben fekvő rendezett társasházban található.Korszerűsített társasház, stabil anyagi háttérAz épület egy 16 lakásos, négyszintes társasház ,1973-ban épült , ahol víz- és villanyvezetékek cseréje, valamint a tető felújítása is megtörtént. A ház stabil pénzügyi háttérrel rendelkezik, a közös költség pedig kedvező.A lakás főbb jellemzőiAz ingatlan az első emeleten van, így kényelmesen megközelíthető. A tágas nappaliból közvetlenül kiléphetünk a parkra néző erkélyre. A két hálószoba közül az egyik panorámás, világos konyhája étkezővel kiegészített. Külön helyiségben kapott helyet a fürdőszoba és a mosdó. Földszinti, zárt, 3 négyzetméteres tároló is tartozik az ingatlanhoz.Felújítások és műszaki állapotA lakás az elmúlt években több korszerűsítésen esett át. A külső nyílászárókat modern, hő- és hangszigetelt ablakokra cserélték ,A fűtésrendszer korszerűsítésének részeként új radiátorokat és modern gázcirkót szereltek be ,parketta csiszolása és lakkozása is lezajlott Minden közmű egyedi mérőórával rendelkezik , így a fogyasztás könnyen nyomon követhető. A konyha és fürdőszoba igény szerint felújítandó .Kiváló elhelyezkedés, remek közlekedésA lakás elhelyezkedése kiváló, hiszen a környék infrastruktúrája jól kiépített .A villamos- és buszmegállók néhány perces sétával elérhetők , így számos bevásárlási lehetőség, szolgáltatás és szabadidős tevékenység rendelkezésre áll.Miért érdemes ezt az ingatlant választani?Nyugodt, zöld környezetben található, kiváló közlekedéssel és infrastruktúrával rendelkezik . A társastársasház rendezett, anyagi helyzete stabil, a lakás pedig kényelmes kialakítású és jól alakítható . Ha egy világos, jól megközelíthető, természetközeli otthont keres , ne habozzon, lépjen kapcsolatba velünk , és tekintse meg az ingatlant, legyen Ön az első.

Budapest, II.kerület
 

Ingatlan adatai
Irányár: 139 000 000 Ft
Típus: lakás (tégla)
Kategória: eladó
Alapterület: 73 m2
Fűtés: gáz (cirko)
Állapota: -
Szobák száma: 3
Építés éve: 1973
Szintek száma: -
További adatok
Telekterület: -
Kert mérete: -
Erkély mérete: 4 m2
Felszereltség: -
Parkolás: -
Kilátás: kertre néző
Egyéb extrák:  
-
Hirdető adatai
Hirdető neve: Otthon Centrum
Kapcsolattartó: Fülöp Ágnes
Hirdető telefonszáma: +36 70 469 3771
Honlap: -

Üzenetet küldhet a hirdetőnek:
Az Ön neve:
Az Ön e-mail címe:
Üzenet: