Részletes leírás
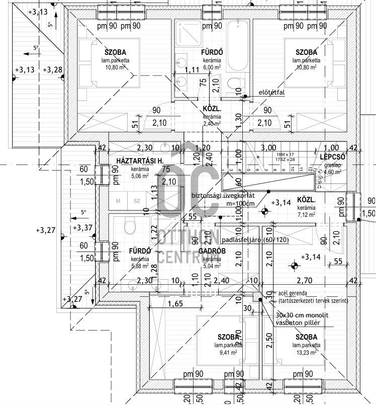
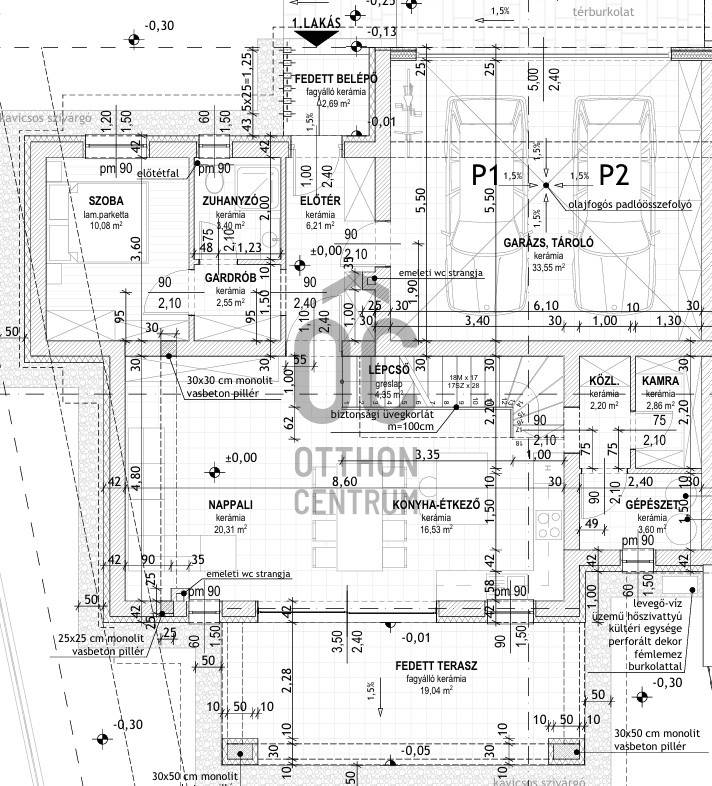
Dunaharasztilegkedveltebb részén exkluzív ikerház várja leendő tulajdonosát!Ismerje meg az érzést amikor egy ház ÖNNEK ÉPÜL!Még mind a két fél szabad, szabadon választható!- az ingatlan alapterülete: 203 m2- 6 szoba - 3 fürdőszoba - 2 garázs (33 m2) - terasz (18m2) - kerti tároló- hatalmas belső tér: nappali - konyha - étkező 37 m2!!!- jelen szakaszban még változtatható elosztású belső tér és akár részleteiben újratervezhető ház!!!Az ingatlan Porotherm Klíma 30 kerámia falazó elemből, 10 cm-es EPS külső hőszigeteléssel, 25 cm-es födémszigeteléssel, 3 rétegű műanyag nyílászárókkal + redőnnyel és szúnyoghálóval, betoncserép fedéssel épül. Burkolatok 6.000 Ft / m2 áron szabadon megválaszthatóak.A fűtés hőszivattyús vagy egyéb igény esetén gáz cirkó (Bosch vagy Ariston kazán) rendszerrel megoldott, választhatóan radiátor / padlófűtés kialakítással.A tágas nappali és az amerikaikonyha világos, sok ablakos és tökéletes helyszín a közös családi pillanatokhoz.A klíma a nyári melegben biztosítja a kellemes hőmérsékletet, melyet telepített napelemes rendszer (3 kW) tud támogatni.A garázs fűtött és elektromos kapunyitóval felszerelt.A riasztó- és telekommunikációs rendszer előkészítése megtörténik.Egy kert lehetőséget ad arra, hogy a szabadban tölthesse a szabadidejét, a gyerekek pedig biztonságos környezetben játszhatnak.A kivitelező a városban számos referenciával rendelkezik, melyeket közösen meg is tudunk tekinteni!Tervezett átadás: 2026. I negyedévA környék ellátottsága kiváló, a kitűnő közlekedés lehetővé teszi, hogy akár a fővárosba is gyorsan bejusson, így a munkába járás sem jelent problémát.A csendes utcák és a barátságos szomszédok ideális környezetet biztosítanak a családi élethez, míg a közeli iskolák, óvodák és boltok kényelmes mindennapi életet garantálnak.Ez a tehermentes ingatlan CSOK és hitel kompatibilis.Már 10% önerő befizetésével le tudja foglalni ezt a remek lehetőséget és így rögzítheti a vételárat, ezzel elkerülheti az ingatlanárak növekedését!Kérdéseivel bizalommal fordulhat hozzánk, szívesen segítünk Önnek a legjobb döntés meghozatalában!Az ingatlan piacon ritkán található ilyen különleges ajánlat, így érdemes mielőbb lépnie, hogy ne maradjon le erről a nagyszerű lehetőségről!

Pest megye, Dunaharaszti
 

Ingatlan adatai
Irányár: 155 000 000 Ft
Típus: ház
Kategória: eladó
Alapterület: 170 m2
Fűtés: -
Állapota: új
Szobák száma: 6
Építés éve: 2025
Szintek száma: -
További adatok
Telekterület: 470 m2
Kert mérete: 470 m2
Erkély mérete: 18 m2
Felszereltség: -
Parkolás: -
Kilátás: -
Egyéb extrák:  
-
Hirdető adatai
Hirdető neve: Otthon Centrum
Kapcsolattartó: Pomucz-Nagy Anita
Hirdető telefonszáma: +36 70 469 3296
Honlap: -

Üzenetet küldhet a hirdetőnek:
Az Ön neve:
Az Ön e-mail címe:
Üzenet: