Részletes leírás
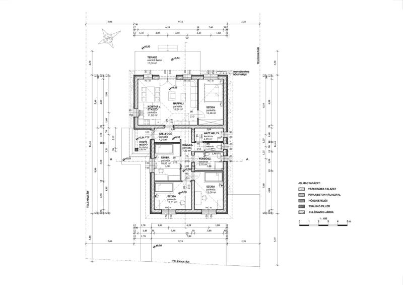
Jászberényben a Szatmári lakóparkban a Bársony utcában , 700 m2-es telken, újonnan épülő nettó 99,15 m2 hasznos lakótérrel rendelkező, 4 szoba + nappalis önálló családi ház eladó.Csok plusz elérhető!Az ingatlan 30-as Nútféderes tégla falazóelemből épül, fa födémmel.A tető héjazata antracit betoncserép lesz, a homlokzatok 15cm EPS, a padló 10cm Austrotherm AT-N100-as, a vízszintes födém 25cm Ásványgyapot szigeteléssel lesz ellátva.Hat légkamrás 3 rétegű evegekkel szerelt nyílászárók kerülnek beépítésre.A fűtést 8kw-os monoblockos hőszivattyús rendszer fogja ellátni, padlófűtéssel. A műszaki tartalom választható az alábbi költségkereten belül:-hidegburkolat:3000.- Ft./m2-ig.-melegburkolat:3000.- Ft./m2-ig-csaptelepek:15.000.- Ft./db-kád vagy zuhany: 40.000.- Ft.-beltéri ajtók:35.000.- Ft./dbElektromos kiépítés:-Konnektorok szobákban: 3 db-Konnektorok nappaliban 4db + internet és kábeltv kiállás-Konnektorok konyhában: 6db-Világítás helyiségenként 1-1 db-Kábeltévé: ElőkészítésMagasabb árú tatalom is választható a különbség finanszírozásával.Riasztó előkészítés és kapu mozgató elektronika előkészítés is készül.Kérésre szívesen küldünk komplett tervdokumentációt, műszaki leírást.A kivitelező korábban számos ingatlant épített,a már értékesített és birtokbaadott ingatlanokat komoly érdeklődés esetén szívesen megmutatjuk referenciaként.Várható átadás 2026 első negyedév!INGYENES hitel tanácsadás, CSOK Plusz ügyintézés!BANKFÜGGETLEN hitelcentrumunk az összes elérhető bank és hitelintézet ajánlatát versenyezteti az Ön kedvéért, ráadásul DÍJMENTESEN.- Egyedi, bankfiókban nem elérhető kamat- és díjkedvezmények- Hitelképesség vizsgálat- Idő, energia és pénz megtakarítás- Teljes hivatali ügyintézésAmennyiben hirdetésem felkeltette az érdeklődését vagy egyéb információra van szüksége hívjon bizalommal!

Jász-Nagykun-Szolnok megye, Jászberény
 

Ingatlan adatai
Irányár: 61 900 000 Ft
Típus: ház
Kategória: eladó
Alapterület: 99 m2
Fűtés: -
Állapota: új
Szobák száma: 5
Építés éve: 2025
Szintek száma: -
További adatok
Telekterület: 700 m2
Kert mérete: 700 m2
Erkély mérete: 17 m2
Felszereltség: -
Parkolás: -
Kilátás: kertre néző
Egyéb extrák:  
-
Hirdető adatai
Hirdető neve: GDN Ingatlanhálózat
Kapcsolattartó: Horváth Péter
Hirdető telefonszáma: +36-70-606-2990
Honlap: -

Üzenetet küldhet a hirdetőnek:
Az Ön neve:
Az Ön e-mail címe:
Üzenet: