Részletes leírás
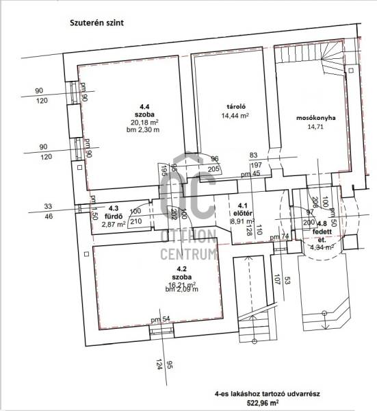
KESZTHELY BELVÁROSÁBAN KÉTSZINTES, TELJESEN FELÚJÍTOTT CSALÁDI HÁZ ELADÓ!Az ingatlan főbb jellemzői:-a lakófelület 165nm, a telek terület 522nm-a ház egy közös udvarból közelíthető meg-önálló tulajdonjog, önálló kert-a ház teljesen felújított-az új tulajdonosnak már csak a bútorokat kell beépítenie-a víz, csatorna és villanybekötés az épületbe teljesen új-az épületen belül új nyílászárók, víz- és villanyvezetékek, álmennyezet szigeteléssel, burkolatok cseréje történt meg-külső hőszigetelést és új tetőt is kapott az ingatlan-kiváló belső kialakítás, 2 szintes kialakítás, tágas világos terek jellemzik-a felső szinten előszoba, nappali-konyha-étkező, 3 hálószoba, fürdőszoba található-a két szint között belső és külső lépcső is elérhető-az alsó szinten mosókonyha, tároló, vendégszoba+fürdőszoba, illetve egy plusz helység lett kialakítva amely akár wellness létrehozására is alkalmas-a központi fűtés elektromos kazánnal, radiátoros hőleadással lett megoldva-rendezett tulajdonviszonyok, külön hrsz, önálló mérőórák, -belvárosi elhelyezkedés, pár perc gyalog távon belül posta és bolt elérhető, a Balaton part 10 perc sétatávolságra található-kiadásra és saját használatra is alkalmas-akár nagyobb családok, több generáció együtt élésére is alkalmasAmennyiben felkeltette figyelmét és további kérdése van, hívjon vagy írjon bizalommal!

Zala megye, Keszthely
 

Ingatlan adatai
Irányár: 89 900 000 Ft
Típus: ház
Kategória: eladó
Alapterület: 165 m2
Fűtés: elektromos
Állapota: -
Szobák száma: 5
Építés éve: 1960
Szintek száma: -
További adatok
Telekterület: 522 m2
Kert mérete: 522 m2
Erkély mérete: -
Felszereltség: -
Parkolás: -
Kilátás: -
Egyéb extrák:  
-
Hirdető adatai
Hirdető neve: Otthon Centrum
Kapcsolattartó: Sipos Etelka
Hirdető telefonszáma: +36 70 461 9191
Honlap: -

Üzenetet küldhet a hirdetőnek:
Az Ön neve:
Az Ön e-mail címe:
Üzenet: