Részletes leírás
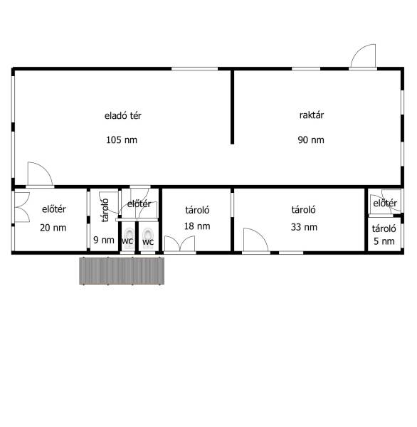
Megvételre kínálok Tuzséron, az ukrán határtól (Záhony) 9 kilométerre, közvetlenül a 4. számú főút mellett, egy a 80 -as években téglából épült, hullám palával fedett nettó 270 nm-es, üzleti célú ingatlant 1294 nm-es telken. Az épület korábban élelmiszer diszkontkén üzemelt, de tulajdonosváltás után felújították, 2024 -ben az ablakokat hőszigetelt műanyagra cserélték, belül kialakítottak egy konyhát, a vizesblokkokat, továbbá egy iroda helyiséget. Az ingatlanban jelenleg nincs fűtés de az elektromos hálózatot hűtő-fűtő klímákra építették ki. Az épületet családi események (eljegyzés, lakodalom, érettségi) megtartására hasznosítják bérbeadással, de a méreténél fogva kiválóan alkalmas lehet raktározás, logisztikai központ, tárolás, vagy kereskedelmi célokra is.Tuzsér eladó üzleti ingatlan

Szabolcs-Szatmár-Bereg megye, Tuzsér
 

Ingatlan adatai
Irányár: 15 900 000 Ft
Típus: kereskedelmi/ipari ingatlan
Kategória: eladó
Alapterület: 270 m2
Fűtés: -
Állapota: -
Szobák száma: -
Építés éve: 1980
Szintek száma: -
További adatok
Telekterület: -
Kert mérete: -
Erkély mérete: -
Felszereltség: -
Parkolás: -
Kilátás: -
Egyéb extrák:  
-
Hirdető adatai
Hirdető neve: Otthon Centrum
Kapcsolattartó: Czeglédi Csaba
Hirdető telefonszáma: +36 70 388 5416
Honlap: -

Üzenetet küldhet a hirdetőnek:
Az Ön neve:
Az Ön e-mail címe:
Üzenet: