Részletes leírás
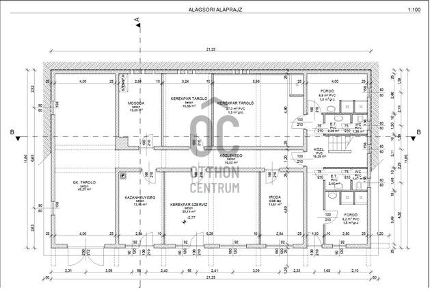
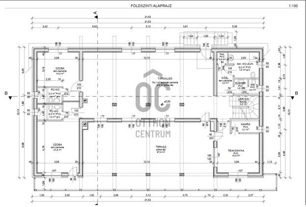
Eladóvá vált Magyarország délnyugati csücskében, a horvát-szlovén határ mentén egy gyönyörű, varázslatos, befogadó tájon, a Dél-Zalai (Letenyei) Dombság közepén, egy barátságos, békés, turisztikai szempontból gyorsan fejlődő kis faluban egy gyöngyszem: Egy több, mint félhektáros, rendezett, domboldali telken két 2014-ben épült szigetelt lakóépületből és két tároló faházból álló megkapó panorámával megáldott, működő szálláshely és rendezvény komplexum. A nagyobb, három szintes, összesen mintegy 700 m² -es épületben, a Rejtekben 6 db, 2, 3, és 4 ágyas fürdőszobás szoba, két nagy közösségi helyiség, nagy terasz, erkélyek, konyha, ping-pong szoba, szerviz, kisegítő és műszaki helyiségek, és egy kis szolgálati lakás található. A szomszédos, 200 m² területű, egy lakószintes Kisrejtekben 3 db 2, 3, illetve 4 ágyas, saját terasszal és jól felszerelt étkezőkonyhával rendelkező, fürdőszobás egyhálóteres apartman, az alagsorban három tároló van kialakítva. 28 férőhelyünk van pótágyak nélkül. A közművek célszerűen és a környezetbarát módon kialakítottak. Elektromos áramból napelemekkel önellátó a létesítmény, a fűtést és melegvíz ellátást fatüzelésű kazánnal és távolról is irányítható elektromos eszközökkel oldottuk meg, a szennyvizet biológiai lebontású rendszer kezeli, a megtisztított víz az ingatlanon belül marad. A tóvá alakítható 100 m3 -es tűzi víz tározót a csapadékvíz tölti.Az üzemeltetésről: A fő profil jelenleg csoportok, családi és baráti társaságok, aktív kikapcsolódást keresők, képzések, céges rendezvények, kisebb konferenciák, tematikus táborok számára a lehető legjobb körülményeket és igényük esetén programokat biztosítani. Szervizműhelyünk mindennel eszközzel felszerelt, ami a kert, az épületek és a kerékpárparkunk fenntartásához szükséges. Programlehetőségek nyáron kimeríthetetlenek, de télen sem lehet unatkozni. Kirándulás, kerékpáros túrázás korlátlanul, Vétyemi ősbükkös, Budafai arborétum, Kék-túra- Rockenbauer Pál turistaút, olajipari emlékhelyek túrák, bemutatók, vadaspark, szőlődombok, eldugott kis tavak, pincesorok, források. Kistolmácson elbűvölő környezet, csodás fürdő- és horgásztó, ingyenes strand. Szécsiszigeten vízimalom, bivalyrezervátum, kastély, évszázados levéltári és könyvtári ereklyék. Letenyén 300 éves platán, kitűnő fagyi és remek pizza. Kerettyén strand a hegytetőn és olajipartörténeti kiállítás. Az ország leghosszabb, Csömödéri kisvasútja Lentitől Kistolmácsig. Lentiben termálfürdő és strand, energiapark. Evezőstúra a hármashatárnál a Kerkán, Murán, bunkerlátogatás, túra a szlovén határ mentén. Pusztaszentlászlón az Aqua Barbara termálfürdő, Becsehelyen csillagvizsgáló. Látogatás Szlovéniába, Lendván vár és a különleges Vinárium kilátó, Dobronakban orchidea farm, energiapark. Mindez 25 km-en belül. A házban van egy \"klubu\", házimozi, sakk, társasjátékok. Ping-pong terem, könyvsarok, gyerek játszósarok is segít a kikapcsolódásban az itt megpihenni vágyókat. Van kiülős, grilltárcsás, szalonnasütős, bográcsozós lehetőség a kertben, illetve a Rejtek teraszán és természetesen a gyerekeknek egy izgalmas játszótér. Vannak íjak, vízisport eszközök, horgászfelszerelés. Kiemelt profil a kerékpározás, így kerékpártúrákat, kerékpáros táborokat is szoktak itt szervezni. A kerékpározás lehetőségei végtelenek, a választék óriási az országúti és trekking túrázástól a gravel és MTB kalandokig. Kölcsönözhető kerékpárflottával rendelkező hely közel 50 kerékpárból áll a gyerekkerékpároktól az e-bikeokig. Gasztronómiai programok: Pincelátogatás - borkóstoló, pálinkakóstoló, Zalai finomságok különleges vacsorája, rétesparti, kemencés parti, prószaparti, bográcsparti. Remek olcsó éttermek a környéken változatos kínálattal.Mindössze 10 kilométernyire az autópályától! A legtöbb navigációs program jól idevezet. Vonat, VOLÁN busz Nagykanizsára jön, illetve a busz átszállással Letenyéig jár, sőt a Rejtekig is eljön naponta egyszer-kétszer. A Rejtekben egymást érik a tematikus táborok, csoportos rendezvények.Természetesen a jelenlegi szálláshely és programközpont hasznosítási formán kívül sok más célra alkalmas az ingatlan: társasüdülő, képzési központ, idősek otthona, alkotóház, rekreációs, illetve egészségügyi intézmény, workshop helyszín stb.

Zala megye, Lispeszentadorján
 

Ingatlan adatai
Irányár: 360 000 000 Ft
Típus: kereskedelmi/ipari ingatlan
Kategória: eladó
Alapterület: 900 m2
Fűtés: -
Állapota: -
Szobák száma: -
Építés éve: 2014
Szintek száma: -
További adatok
Telekterület: -
Kert mérete: -
Erkély mérete: -
Felszereltség: -
Parkolás: -
Kilátás: -
Egyéb extrák:  
-
Hirdető adatai
Hirdető neve: Otthon Centrum
Kapcsolattartó: Rimai Loretta
Hirdető telefonszáma: +36 70 461 9081
Honlap: -

Üzenetet küldhet a hirdetőnek:
Az Ön neve:
Az Ön e-mail címe:
Üzenet: