Részletes leírás
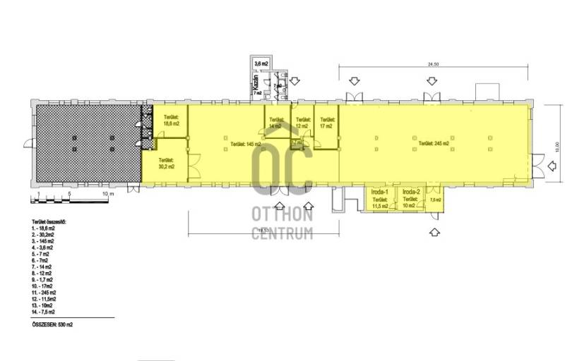
ÉPÜLET:-559 m2 ipari csarnok-klíma telepíthető-vízvezeték az egész csarnok területén kiépített-levegővezeték az egész csarnok területén kiépített-fűtés nincs-beton padló-kapu mérete: 320x270 cm-teherforgalommal korlátozottan megközelíthetőKÖRNYEZET:-behajtás 0-24h-őrzés nincs-18h után a kapuk zárva – bejutás távirányítós kapunyitóval-székhelybejegyzés engedélyezett-M2-autópálya 2 km-Kamionnal súlyhatár nélkül megközelíthető-Fogalmas főútról nyíló telephely

Pest megye, Göd
 

Ingatlan adatai
Irányár: 906 983 Ft/hó
Típus: kereskedelmi/ipari ingatlan
Kategória: kiadó
Alapterület: 559 m2
Fűtés: -
Állapota: -
Szobák száma: -
Építés éve: -
Szintek száma: -
További adatok
Telekterület: -
Kert mérete: -
Erkély mérete: -
Felszereltség: -
Parkolás: -
Kilátás: -
Egyéb extrák:  
-
Hirdető adatai
Hirdető neve: Otthon Centrum
Kapcsolattartó: Kovács Krisztián
Hirdető telefonszáma: +36 70 388 6196
Honlap: -

Üzenetet küldhet a hirdetőnek:
Az Ön neve:
Az Ön e-mail címe:
Üzenet: