Részletes leírás
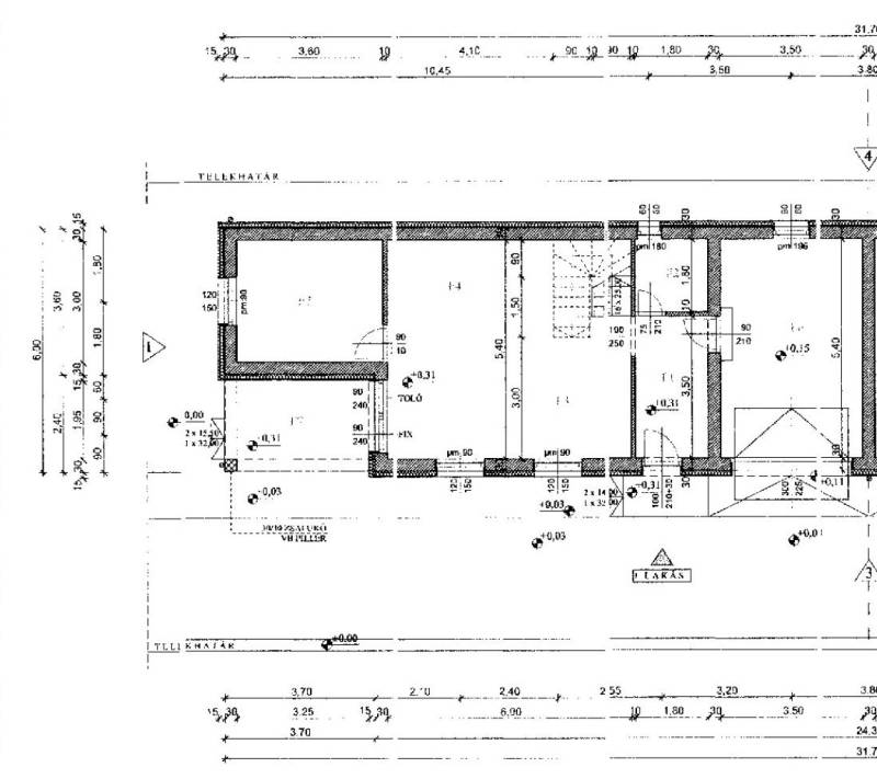
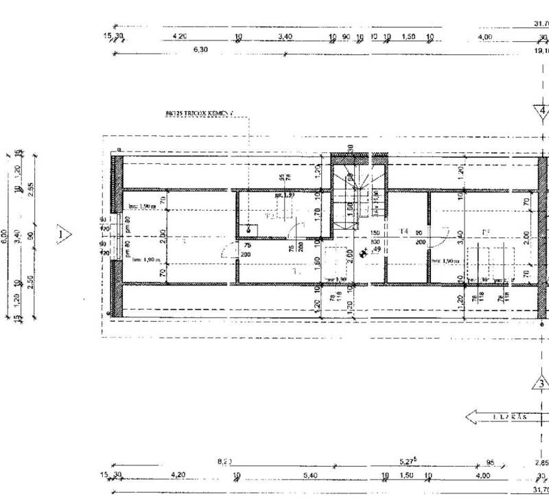
RÁCKEVÉN MAGAS FELSZERELTSÉGŰ, GARÁZSKAPCSOLATOS ÚJ IKERHÁZ, UTCA FELŐLI LAKÁSA, NAPELEM-RENDSZERREL, KULCSRAKÉSZEN ELADÓ!Ráckevén, a Hév-megállótól 10 perc sétára, 2025. építésű, DK fekvésű, 128m2 alapterületű, rendkívül jó beosztású, dupla-komfortos, kétszintes, alacsony fenntartási költségű lakóház, magas alapfelszereltséggel, elektromos kapuval ellátott saját garázzsal eladó.Az ingatlanhoz tartozik egy 8 m²-es terasz is, mely kellemes kinti helyszín étkezésekhez vagy baráti beszélgetésekhez. Az utcai kilátás tovább növeli az ingatlan vonzerejét, nyújtva egy élhető és kellemes otthon élményét.A 150m²-es kert elég hely a kikapcsolódásra és a gyerekek játékára.Az épület 30-as Porotherm téglából épült, 15 cm külső hőszigeteléssel, betonfödémmel, 25cm kőzetgyapot tetőszigeteléssel, Leier betoncserép fedéssel. A kültéri nyílászárók fehér műanyag szerkezettel, 6 légkamrás 3 rétegű hőszigetelt üveggel, antracit elektromos redőnnyel és szúnyoghálóval ellátva kerültek beépítésre.A beltéri ajtók 35.000.-Ft-ig választhatók!A fűtést, és a meleg vízellátást, a modern és energia-hatékony Riello kondenzációs gázcirkó biztosítja.Az alacsonyabb rezsiköltségekhez még a 2,05 kW teljesítményű, bővíthető napelem rendszer hozzájárul hozzá.A járda, az autó behajtó 200m2 viacolor burkolattal készült. Burkolatok 6.000.-Ft/m2 árig választhatók!Helyiségek: Földszint: előtér 6,30 m2, mosdó 3,24m2, konyha 7,20m2, nappali 25,20 m2, szoba 10,80m2; fedett terasz 7,98m2; Gűgarázs: 18,90m2;Tetőtér:előtér 9,85m2, fürdőszoba 5,78, szoba 14,28m2, ruhaszárító helyiség 5,10m2, szoba 13,60m2;Az ingatlanok eladási árai:1. lakás 1. opció 82 M Ft 650 m2 -es telekkel 1. lakás 2. opció 76 M Ft 50 m2 -es előkertel2. lakás 1. opció 82 M Ft 650 m2 -es telekkel2. lakás 2. opció 88 M Ft 1300 m2 -es telekkelA környék békés, nyugodt, könnyedén a fővárosba juthatunk, akár autóval, akár tömegközlekedéssel (vonat, busz).Az ingatlan közelében, bevásárlási lehetőségek és hivatalok közül szinte minden pár perc távolságban megtalálható, a közért, pékség, hentes, zöldséges, gyógyszertár, iskola, óvoda, posta, bank, autó-szerviz, stb.FINANSZÍROZÁS:Nálunk mindent egy helyen intézhet:- hivatalos ingatlanközvetítés;- szakszerű jogi képviselet;- profi CSOK-PLUSZ, és hitelügyintézés: 16 Bank, több mint 100 konstrukció;Kérésére, műszaki leírást, nagy-felbontású alaprajzot küldök!VÁROM MEGTISZTELŐ HÍVÁSÁT!A részletes adatvédelmi tájékoztató folyamatosan elérhető a www.gdn-ingatlan.hu/adatvedelem oldalon.

Pest megye, Ráckeve
 

Ingatlan adatai
Irányár: 69 900 000 Ft
Típus: ház
Kategória: eladó
Alapterület: 128 m2
Fűtés: gáz (cirko)
Állapota: új
Szobák száma: 3+1
Építés éve: 2025
Szintek száma: -
További adatok
Telekterület: 150 m2
Kert mérete: 150 m2
Erkély mérete: 8 m2
Felszereltség: -
Parkolás: -
Kilátás: utcai
Egyéb extrák:  
-
Hirdető adatai
Hirdető neve: GDN Ingatlanhálózat
Kapcsolattartó: Gergicsné B. Enikő
Hirdető telefonszáma: +36-30-941-0291
Honlap: -

Üzenetet küldhet a hirdetőnek:
Az Ön neve:
Az Ön e-mail címe:
Üzenet: