Részletes leírás
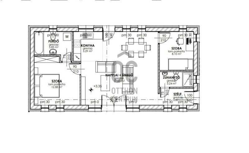
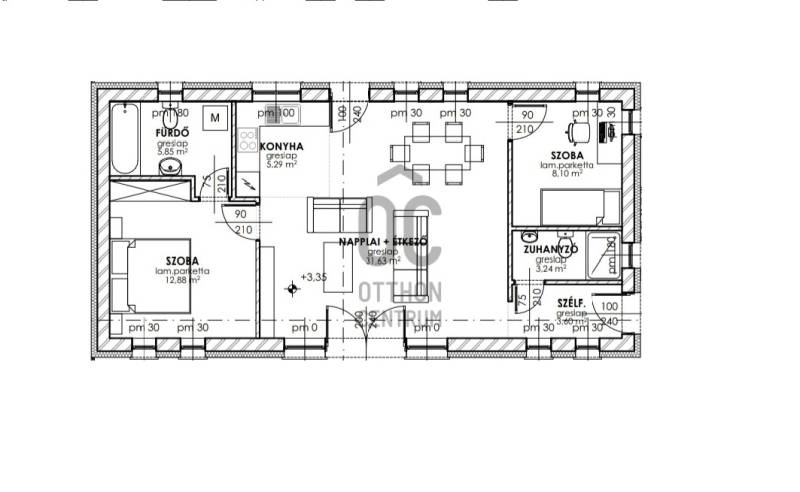
Figyelmébe ajánlom ezt a kivételes lehetőséget, ha:- még nem kell nagy...- már nem kell nagy...- újat és szépet szeretne...- nem szeretne bármennyit költeni az új otthonára...- kedvező rezsiköltségre vágyik...- elég 2 hálószoba...- önálló családi házat szeretne...- egy gondos kezek által megépített modern otthonra vágyik......akkor hívjon és egyeztessük a részleteket.Legyen Öné ez a Hajdúsámsoni új építésű önálló családi ház, mely minden mai igényt kielégít:- 71 nm hasznos alapterület- Nappali-konyha-étkező + 2 hálószoba- 2 wc- padlófűtés minden helyiségben, turbós kombi gázkazánnal- 15 cm homlokzati hőszigetelés- 30 cm födém szigetelés- 6 légkamrás, 3 rétegű üvegezésű műanyag nyílászárók- 18 nm-es garázs- 720 nm-es telekAz alaprajz tájékoztató jellegű, lehet bármilyen elrendezéssel, helyiségkiosztással.59,9 MFt-ért kap egy teljesen kulcsrakész állapotot, ami mindent tartalmaz. A telek, a kül - és beltéri nyílászárók, a burkolatok, szaniterek, stb. Egyszóval, minden. Nincs kiskapu, nincs egyéb költség, a hirdetett ár mindent tartalmaz.Hívjon és egyeztessük az igényeit!

Hajdú-Bihar megye, Hajdúsámson
 

Ingatlan adatai
Irányár: 50 000 000 Ft
Típus: ház
Kategória: eladó
Alapterület: 71 m2
Fűtés: gáz (cirko)
Állapota: új
Szobák száma: 3
Építés éve: 2025
Szintek száma: -
További adatok
Telekterület: 720 m2
Kert mérete: 720 m2
Erkély mérete: 14 m2
Felszereltség: -
Parkolás: -
Kilátás: -
Egyéb extrák:  
-
Hirdető adatai
Hirdető neve: Otthon Centrum
Kapcsolattartó: Apró Ferenc
Hirdető telefonszáma: +36 70 469 3916
Honlap: -

Üzenetet küldhet a hirdetőnek:
Az Ön neve:
Az Ön e-mail címe:
Üzenet: