Részletes leírás
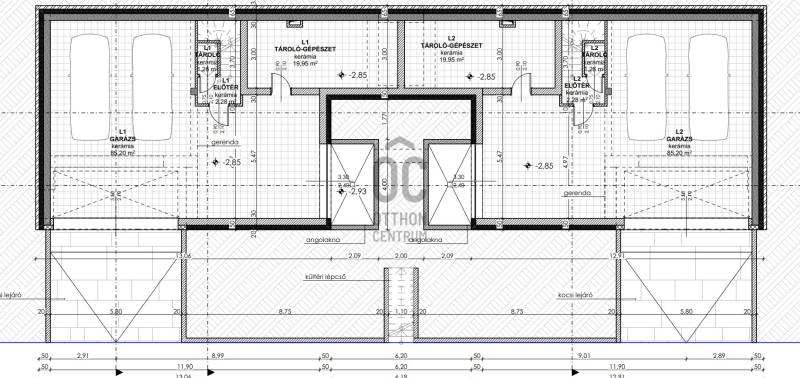
ÜRÖMI ÉPÍTÉSI TELEK 2 X 2 LAKÁSOS VÁROSI PANORÁMÁS TÁRSASHÁZ TELJES TERVDOKUMENTÁCIÓJÁVAL ÜRÖM LEGÉRTÉKESEBB RÉSZÉN, NAGYÉRTÉKŰ LUXUSINGATLANOK KÖZVETLEN KÖRNYEZETÉBEN kínálunk eladásra, egy 3320 m2-es (923 négyszögöl), JÓ BEFOGLALÓ MÉRETEKKEL RENDELKEZŐ, 30%-os BEÉPÍTHETŐSÉGŰ ÉPÍTÉSI TELKET, 2 X 2 LAKÁSOS VÁROSI PANORÁMÁS (többek között a GELLÉRT-HEGY is JÓL LÁTHATÓ) TÁRSASHÁZ TELJES TERVDOKUMENTÁCIÓJÁVAL.A tervezett 4 db ikerházfél méretei és beosztásai megegyezőek: 201 m2-en (36,7 m2 teraszok ½ és a 109 m2!! teremgarázsszint 1/3 méreteinek a beszámítása mellett, a lakások nettó 146 m2 területűek) 2 lakószinten, NAPPALI + 4 szoba, 3 fürdőszobával, és 109 m2-es!! 2 BEÁLLÁSOS TEREMGARÁZZSAL + tárolókkal.A fent jelzett tervdokumentáción kívül készült egy szintén 2 x 2 lakásos épületegyüttesre vonatkozó terv is, ahol lakásonként 2 fürdőszoba kerülne kialakításra, a parkolás pedig 1 teremgarázshellyel lenne megoldva 16,5 m2-en tárolók nélkül.A közművek közül a VILLANY a TELEKHATÁRON BELÜL, a VÍZ, CSATORNA, és a GÁZ az UTCÁBAN található.A 2424 m2 TELEK ADATAI:Övezeti besorolása: Vt-9befoglaló méretek: a telek legtöbb részén a szélesség kb. 25 m és kb. 130 m hosszú az utcafrontjabeépítés mértéke: 30% általános szintterület mutatója: 0,4legkisebb zöldfelület arány: 40%épület magassága: 6,5 mlakásszám épületenként: 2 (8 épület létesíthető)Előkert: 5,00 m Hátsókert: 7,50 m Oldalkert: 5,00 mKözlekedés: H5 HÉV Csillaghegyi megállója (1,5 Km) autóval 3, gyalogosan 20 perc alatt érhető el.AZ INGATLAN EGY CÉG TULAJDONÁBAN VAN, A VÉTELÁR 280.000,000 + 27% Áfa (75.600.000) = 355.000.000 FtTISZTELT ÉRDEKLŐDŐ!TÖBB MINT 20 ÉVE FOGLALKOZOM INGATLANOK ÉRTÉKESÍTÉSÉVEL MAGYARORSZÁG PIACVEZETŐ INGATLANKÖZVETÍTŐ HÁLÓZATÁNÁL, AZ OTTHON CENTRUMNÁL. AMENNYIBEN SZÁNDÉKÁBAN ÁLL INGATLANT ELADNI - A LEGRÖVIDEBB IDŐN BELÜL, GARANTÁLT JOGI, ÉS BANKI HÁTTÉRREL - KERESSEN BIZALOMMAL, HOGY EGY SZEMÉLYES HELYSZÍNI FELMÉRÉST KÖVETŐ INGYENES ÉRTÉKMEGÁLLAPÍTÁS UTÁN, EGYÜTT TUDJUNK MŰKÖDNI AZ ÖN INGATLANÁNAK AZ ELADÁSÁBAN IS!

Pest megye, Üröm
 

Ingatlan adatai
Irányár: 280 000 000 Ft
Típus: telek
Kategória: eladó
Alapterület: 3 320 m2
Fűtés: -
Állapota: -
Szobák száma: -
Építés éve: -
Szintek száma: -
További adatok
Telekterület: 3 320 m2
Kert mérete: -
Erkély mérete: -
Felszereltség: -
Parkolás: -
Kilátás: -
Egyéb extrák:  
-
Hirdető adatai
Hirdető neve: Otthon Centrum
Kapcsolattartó: Csopaki Balázs
Hirdető telefonszáma: +36 70 716 8476
Honlap: -

Üzenetet küldhet a hirdetőnek:
Az Ön neve:
Az Ön e-mail címe:
Üzenet: