Részletes leírás
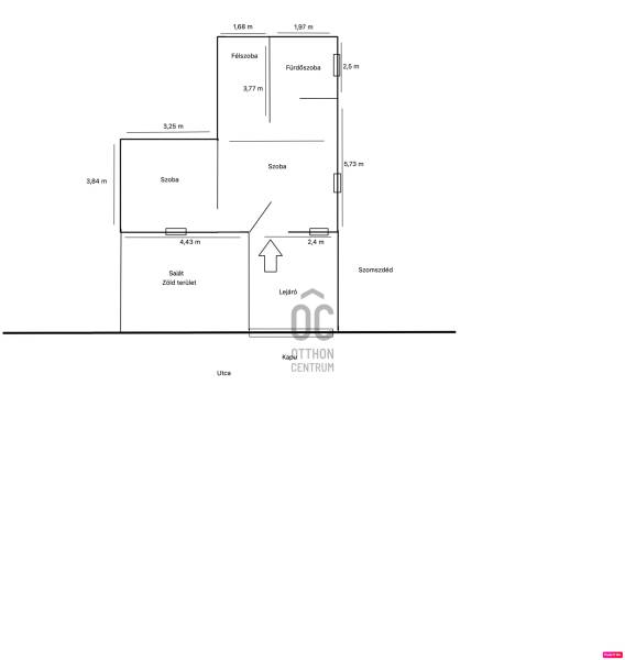
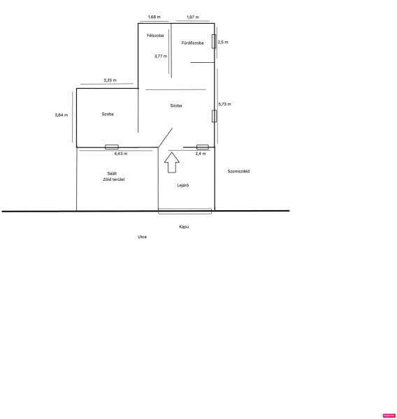
Eladó Biatorbágy kedvelt részén egy 43 nm-es, felújított, szuterén házrész!- A házrész osztatlan közös tulajdon ügyvédi megosztással, készpénzes vevők jelentkezését várjuk- Alagsorban helyezkedik el, garázsból lett átalakítva- Saját kertrésszel rendelkezik- Közművek: Víz, villany, csatorna van- Per és tehermentes, azonnal birtokba vehetőIdeális választás üzlethelyiségnek (fodrászat, kozmetika stb.), vagy lakhatási céllal is.Amennyiben szeretné megtekinteni, hívjon bizalommal!

Pest megye, Biatorbágy
 

Ingatlan adatai
Irányár: 19 900 000 Ft
Típus: ház
Kategória: eladó
Alapterület: 43 m2
Fűtés: -
Állapota: -
Szobák száma: 3
Építés éve: 1980
Szintek száma: -
További adatok
Telekterület: 73 m2
Kert mérete: 73 m2
Erkély mérete: 10 m2
Felszereltség: -
Parkolás: -
Kilátás: -
Egyéb extrák:  
-
Hirdető adatai
Hirdető neve: Otthon Centrum
Kapcsolattartó: Lutter Liza
Hirdető telefonszáma: +36 70 412 3491
Honlap: -

Üzenetet küldhet a hirdetőnek:
Az Ön neve:
Az Ön e-mail címe:
Üzenet: