Részletes leírás
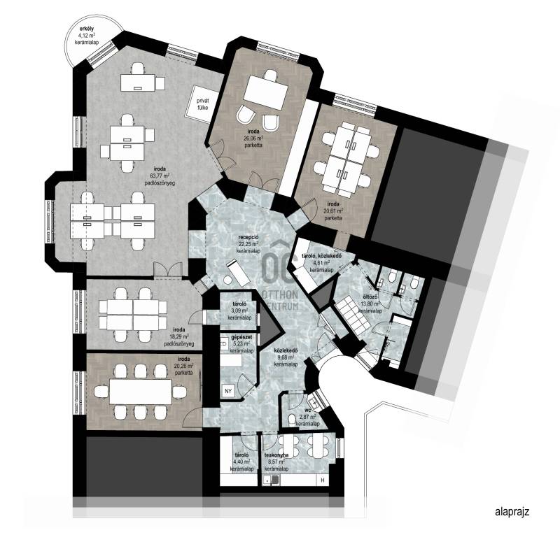
Kiváló lokációval rendelkező, prémium kategóriás, csendes, 228 m2-es 6 szobás iroda várja leendő tulajdonosát Budapest 9. kerületében a Duna parton.A polgári lakásokból kialakított, minden igényt kielégítő ingatlanban minden megtalálható, ami egy cégnek, 5-25 fő részére szükséges lehet.- Biztonsági bejárat- Recepciónak kialakított terület, - külön bejáratos és elszeparálható szobák a tárgyalásokhoz,- irattár- szerverszoba,- nyomtatószoba- minőségi gépekkel felszerelt konyha-étkező,- szociális helyiségek - öltözők, mosdók, férfi-női részleggel,- beépített széf a riasztórendszerbe integrálva- a csendet biztosító ablakok és teraszajtó, 4 rétegű hang- és hőszigetelő üvegezéssel, kettős gumitömítésselAz iroda magas műszaki tartalommal rendelkezik.- nagy sebességű számítógép hálózat kiállásokkal, - szerverszobai RACK szekrény, szolgáltatói optikai csatlakozással- kábel tv hálózat helyiségenkénti végpontokkal- Beléptető rendszer riasztóval, vagyonvédelem- teljes lefedettségű WIFI rendszer, kétsávos vezérléssel, szünetmentes táppal,Fűtését és hűtését is modern, inverteres multi-split hőcserélős hűtés-fűtés, rejtett àlmennyezetes légcsatornás beltéri egységekkel, termosztátokkal biztosítja, illetve biztonságból a gázcirkós fűtés is felújításra került.Elhelyezkedése tömeg közlekedés szempontjából is kiváló.Ajánlom könyvelő- és ügyvédi irodának, nagyobb cégek központjának és mindenkinek, aki egy igazi prémium kategóriás munkahelyet szeretne magának és csapatának.Az ingatlan eladási ára: 1.374.000.- EURHívjon bizalommal.

Budapest, IX.kerület
 

Ingatlan adatai
Irányár: 533 304 360 Ft
Típus: kereskedelmi/ipari ingatlan
Kategória: eladó
Alapterület: 224 m2
Fűtés: -
Állapota: -
Szobák száma: -
Építés éve: -
Szintek száma: -
További adatok
Telekterület: -
Kert mérete: -
Erkély mérete: -
Felszereltség: -
Parkolás: -
Kilátás: -
Egyéb extrák:  
-
Hirdető adatai
Hirdető neve: Otthon Centrum
Kapcsolattartó: Tomaszewski Andrea
Hirdető telefonszáma: +36 70 716 8996
Honlap: -

Üzenetet küldhet a hirdetőnek:
Az Ön neve:
Az Ön e-mail címe:
Üzenet: