Részletes leírás
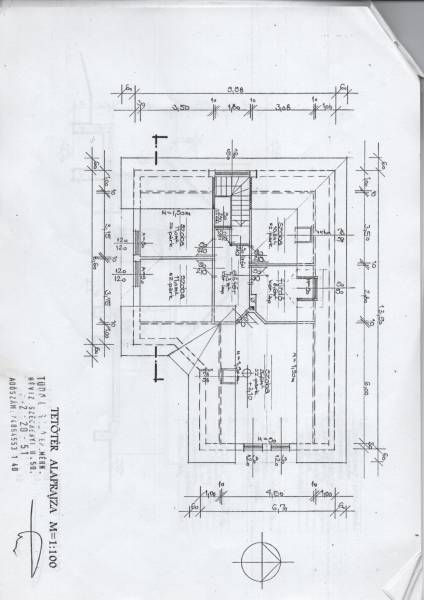
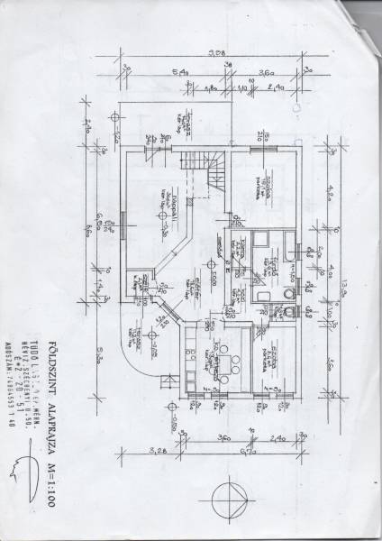
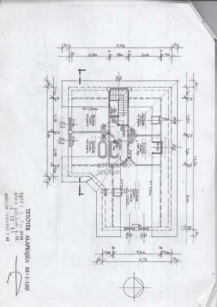
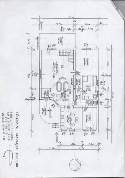
A Balaton és Hévíz vonzáskörzetében, Zalaszántó domboldalán kétszintes lakóingatlan 3488 nm-es telken, melléképülettel, eladó!Az épület Ytong -30-as falazóelemből és tömör téglából, nyeregtetős fedélszerkezettel épült. A talajnedvesség ellen 2 réteg vastag lemez szigetelés, a padlóban Nikecell, a tetőtérben ásványgyapot szigetelés. A pince feltöltése előtt talajnedvesség elleni szigetelés készült 2 rétegben.A ház homlokzata külső szigeteléssel borított és Terranova színezést kapott.Fűtése gázüzemű kazánról működtetett, radiátoros rendszerű fűtés. Jelen pillanatban tartályos gázról, de a vezetékes gáz rendelkezésre áll. Klíma gondoskodik a megfelelő hűtés -fűtésről a lakószobákban. A tetőtérben beépített szekrények a ház tartozéka. A jó elrendezésű épület több generáció vagy nagyobb család kényelmes otthona lehet. A lakótér alatt 2 gépkocsinak elhelyezés és szerszámoknak tárolási lehetőség. A kertben fedett tároló és egy gazdasági épület melyben szintén 2 gépkocsinak parkolás biztosított. Ebben az épületben egy nyári konyha és egy zuhanyzó biztosítja a kert jobb és kényelmesebb használatát.A zöld kertvárosi környezet csendes, rendezett. A település teljes infrastruktúrával rendelkezik, közlekedése kiváló. Hévíz 12 km, Keszthely, 16 km, Sümeg szintén 12 km távolságban helyezkedik el.Itt található a Stupa amely egy egyedülálló budhista szentély, kirándulók kedvenc célpontja. A környezet a kéktúra útvonalán, rengeteg látványossággal és programlehetőséggel várja az idelátogató embereket. A Balaton és a gyógyfürdők közelsége egész évben várja a gyógyulni és kikapcsolódni vágyó vendégeket. Ezt a lehetőséget kínálja ennek az épületnek a megvásárlása.Az épület per,-teher,-és igény mentes, azonnal birtokba vehető!

Zala megye, Zalaszántó
 

Ingatlan adatai
Irányár: 115 000 000 Ft
Típus: ház
Kategória: eladó
Alapterület: 210 m2
Fűtés: gáz (cirko)
Állapota: -
Szobák száma: 6
Építés éve: 1998
Szintek száma: -
További adatok
Telekterület: 3 488 m2
Kert mérete: 3 488 m2
Erkély mérete: -
Felszereltség: -
Parkolás: -
Kilátás: -
Egyéb extrák:  
-
Hirdető adatai
Hirdető neve: Otthon Centrum
Kapcsolattartó: Kajdel Zsuzsa
Hirdető telefonszáma: +36 70 469 3126
Honlap: -

Üzenetet küldhet a hirdetőnek:
Az Ön neve:
Az Ön e-mail címe:
Üzenet: