Részletes leírás
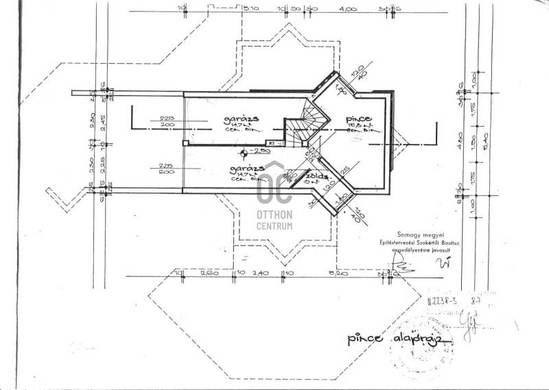
A Balatontól 14 kilométerre délre található a 11 ezer fő lakosú Marcali város.A település szőlő- és borgazdasági szempontból a Balatonboglári borvidék részét képezi.Számos bevásárlási lehetőség, jó közlekedési infrastruktúra, széleskörű egészségügyi ellátás, sokoldalú sportolási , fürdőzési lehetőség és a pihenni vágyóknak pedig nyugalmat biztosító környezet.Marcali egyik legkedveltebb kertvárosi övezetében található ez a három szintes, egyedi tervezésű családi ház.Ebben a barátságos környezetben vált eladóvá ez a jó állapotú, Porotherm, hungarocellel szigetelt tégla falazatú, beton alapra épült családi ház.Az ingatlan jellemzői:- Nettó 195 m2-es lakótér.- Földszint: gardrób, konyha-étkező, fürdőszoba-wc, közlekedő, tágas déli tájolású nappali terasszal, dolgozószoba, előszoba- Emelet: 4 szoba, ebből az egyik vizes kiállásokkal rendelkezik, így fürőszobává is alakítható, közlekedő, WC-kézmosóval- Pinceszint: dupla garázs, mely jelenleg műhelyként van berendezve, tároló, kazán, kamra, mosókonyha- A ház mindhárom szintje belső lépcsőn közelithető meg.- Terei tágasak, jó elosztásúak, világosak, 1990-ben épült egyedi tervezésű épület.- A földszinten fából készült szigetelt üvegezésű nyílászárók, míg az emeleten a tavalyi évben műanyag szigetelt üvegezésű nyílászárók kerültek beszerelésre.- Dupla garázs a pinceszinten és az udvaron rendelkezésre áll még egy különálló garázs is.- Víz, villany, csatorna, gáz a házba bekötve. A fűtés gázkazánról működik, valamint a házban 3db hűtő-fűtő klíma is helyet kapott.- Tehermentes, rendezett tulajdonviszonyok.- A földszinten rendelkezésre áll a lehetőség akár kandalló vagy cserépkályha beépítésére is.-A szobák laminált parkettával, a többi helyiség járólappal, a földszinti nappali parkettával burkoltak.- A telek ideális 886 m2 nagyságú, nagy zöld felülettel, kerti tóval, gyönyörűen parkosított udvarral, gyümölcsfákkal, tárolókkal rendelkezik.- Az árba - igény szerint - a bútorok is beleértendőek.Irodánk teljes körű, ingyenes szolgáltatást nyújt kereső ügyfeleinknek.Szakszerű tanácsadással, hitel ügyintézéssel, energetikai tanúsítvány elkészítésével és kedvező díjszabású ügyvéddel nyújtunk segítséget!

Somogy megye, Marcali
 

Ingatlan adatai
Irányár: 84 000 000 Ft
Típus: ház
Kategória: eladó
Alapterület: 195 m2
Fűtés: gáz (cirko)
Állapota: -
Szobák száma: 6
Építés éve: 1990
Szintek száma: -
További adatok
Telekterület: 886 m2
Kert mérete: 886 m2
Erkély mérete: 9 m2
Felszereltség: -
Parkolás: -
Kilátás: -
Egyéb extrák:  
-
Hirdető adatai
Hirdető neve: Otthon Centrum
Kapcsolattartó: Rimai Loretta
Hirdető telefonszáma: +36 70 461 9081
Honlap: -

Üzenetet küldhet a hirdetőnek:
Az Ön neve:
Az Ön e-mail címe:
Üzenet: