Részletes leírás
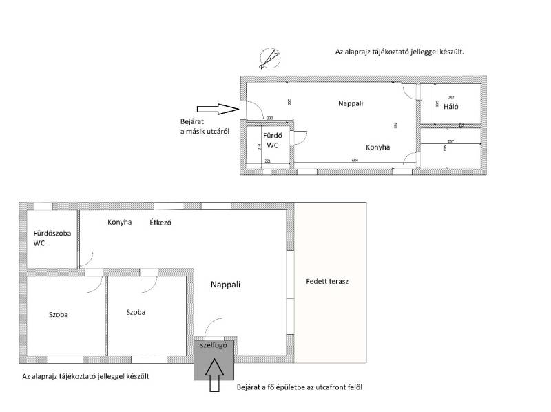
Egy igazán különleges lehetőséget kínálunk Önnek, amely ideális választás lehet családosok számára, akik kényelmes, tágas és jól megközelíthető otthont keresnek.Budapest 20. kerületében, Gubacsipusztán található ingatlanunk, a Szabadka utcában helyezkedik el, és minden igényt kielégít, amit egy modern család elvárhat. Az ingatlan használt, de kiváló állapotban van, így Önnek nem kell azonnali felújítási munkálatokkal bajlódnia. A 495 négyzetméteres két utcára nyíló telek lehetőséget biztosít a családi élet minden aspektusának élvezetére.A főépület nettó 100 négyzetméteres, 2017-ben úgy lett átépítve, hogy a tetőtere is beépíthető legyen, igény esetén. Nappali-étkezővel, konyhakapcsolattal és két hálószobával, fürdőszobával rendelkezik.Melléképület nettó 48 négyzetméter, kialakítása 2021-ben történt, külön bejárattal a másik utcáról.Az összes rezsiköltség átlagban a két épületre, nettó 148 négyzetméter: 60.000.-Ft alatt van!Az ingatlan kamerarendszerrel is telepített, kert füvesített része, locsoló rendszerrel ellátott.Most készül még fedett beálló, ami több autó parkolását biztosítja.Tekintse meg bemutató videónkat is, hogy segíthessem a döntésében.Bármi kérdés felmerülne, keressen elérhetőségeimen a részletekért, akár hétvégén is.Amennyiben tetszik ez az otthon Önnek és szüksége van a vásárláshoz segítségre, pénzügyes kollegáink bankfüggetlen pénzügyi termékkínálatából tudja kiválasztani az Önnek legkedvezőbb megoldást.Ingatlan szakjogászunk a problémamentes vásárlás biztosítéka.

Budapest, XX.kerület
 

Ingatlan adatai
Irányár: 160 000 000 Ft
Típus: ház
Kategória: eladó
Alapterület: 148 m2
Fűtés: gáz (cirko)
Állapota: -
Szobák száma: 5
Építés éve: 2017
Szintek száma: -
További adatok
Telekterület: 495 m2
Kert mérete: 495 m2
Erkély mérete: 36 m2
Felszereltség: -
Parkolás: -
Kilátás: -
Egyéb extrák:  
-
Hirdető adatai
Hirdető neve: Otthon Centrum
Kapcsolattartó: Polgár Péter
Hirdető telefonszáma: +36 70 716 9831
Honlap: -

Üzenetet küldhet a hirdetőnek:
Az Ön neve:
Az Ön e-mail címe:
Üzenet: