Részletes leírás
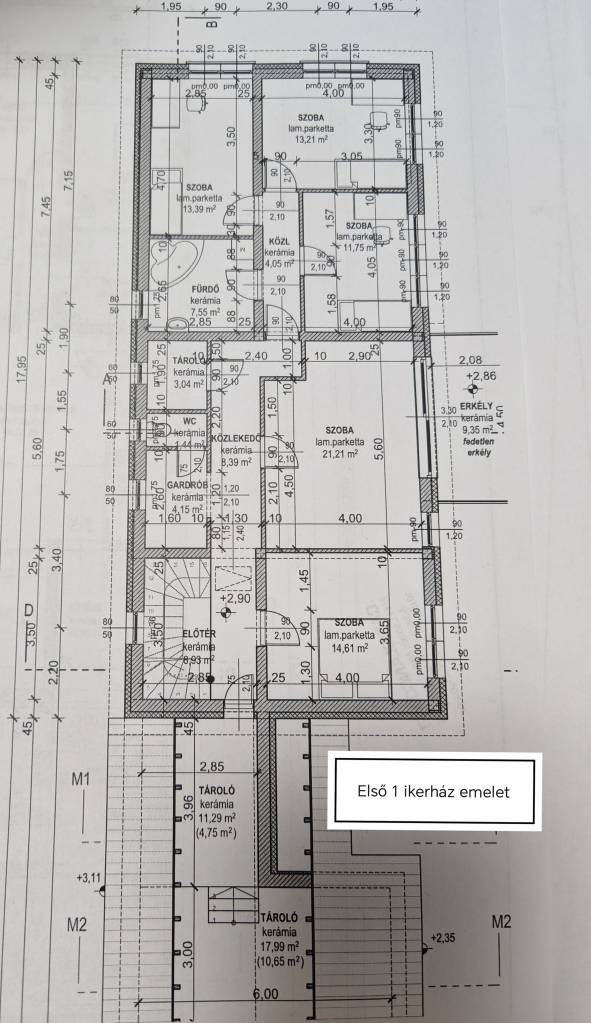
Csak Nálunk!Csömörön egyedülálló lehetőség – újépítésű, óriási ikerház fél eladó!Nagy családosoknak, többgenerációs családoknak vagy otthon- és vállalkozás kombinációjára is ideális választás!Ez a lenyűgöző ingatlan közel 600 nm-es telken helyezkedik el, 240 nm hasznos lakótérrel, amelyet a jelenlegi terv szerint 9 szoba, egy tágas nappali, gardrób, két fürdőszoba, dupla komfort és garázs alkot. A belső tér még alakítható az új tulajdonos igényei szerint, és minden burkolat, szín, felszerelés személyre szabható.Műszaki adatok:Korszerű építési technológia: 30 cm-es Porotherm tégla, 15 cm Dryvit szigetelés.Masszív vasbeton födém az emeleten is.Ácsolt tetőszerkezet, terrakotta színű tetőcserép, 25 cm kőzetgyapot szigetelés.Energiatakarékosság: napelem-előkészítés, modern hőszivattyús padlófűtés, szobánként hűtő-fűtő klímák.3x16 amper áram, H tarifa igényelhető.Környezet és közlekedés:A ház egy csendes, díszkővel burkolt utcában található, kedves szomszédokkal. Kiváló közlekedési lehetőségek: a buszmegálló mindössze 200 méterre, a HÉV pár perc távolságra.Az építő cég több referenciával rendelkezik, a minőség garantált. Ez az otthon ideális választás nagycsaládosoknak, többgenerációs együttélésre vagy akár vállalkozásként irodának, rendelőnek, stúdiónak.Ilyen ajánlat ritkán adódik – ne maradjon le róla!Kérjen további információt még ma, és legyen Ön az új tulajdonos, aki saját ízlésére formálhatja ezt a kivételes ingatlant!Teljes készültség körülbelül 4-6 hónap szerződéstől számítva!I.V.

Pest megye, Csömör
 

Ingatlan adatai
Irányár: 199 900 000 Ft
Típus: ház
Kategória: eladó
Alapterület: 240 m2
Fűtés: -
Állapota: új
Szobák száma: 9
Építés éve: 2025
Szintek száma: -
További adatok
Telekterület: 570 m2
Kert mérete: 570 m2
Erkély mérete: 20 m2
Felszereltség: -
Parkolás: -
Kilátás: udvari
Egyéb extrák:  
-
Hirdető adatai
Hirdető neve: GDN Ingatlanhálózat
Kapcsolattartó: Iván Veronika
Hirdető telefonszáma: +36-70-365-6991
Honlap: -

Üzenetet küldhet a hirdetőnek:
Az Ön neve:
Az Ön e-mail címe:
Üzenet: