| 
	  
	   Részletes leírás 
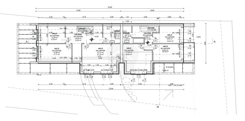
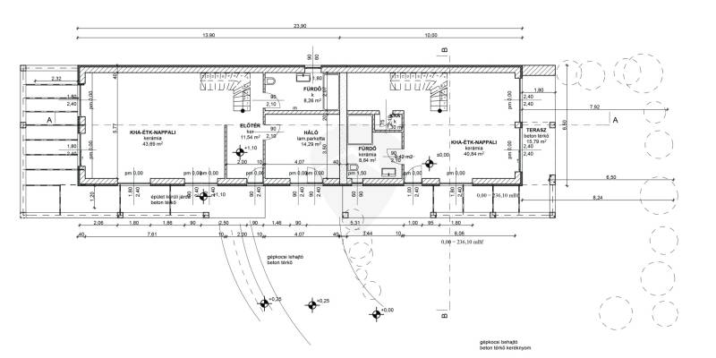
  Budapest 02. kerületének egyik legkeresettebb és legszebb városrészében, Budaligeten kínálunk eladásra egy új építésű, modern lakóingatlant, amely ideális választás családosok számára. Az ingatlan a Hidegkúti úton helyezkedik el, egy csendes, zöldövezeti környezetben, ahol a természet közelsége és a városi élet kényelme tökéletes harmóniában találkozik.  Az ingatlan alapterülete 160 négyzetméter, amely öt tágas szobát kínál, így bőven elegendő helyet biztosít a család minden tagjának. A két fürdőszoba (egy zuhanyzós és egy szabadon álló kádas )lehetővé teszi a kényelmes, mindennapi használatot, míg a 40 négyzetméteres terasz ideális helyszín a pihenésre és a szabadban eltöltött időre. A 600 négyzetméteres telek pedig biztosítja a privát kert lehetőségét, ahol szabadon élvezheti a természetet vagy akár baráti összejöveteleket tarthat.  Az ingatlan új állapotban várja leendő tulajdonosát, modern hőszivattyús fűtési rendszerrel rendelkezik, amely nemcsak energiatakarékos, hanem környezetbarát megoldás is. A légkondicionáló berendezés garantálja a kellemes hőmérsékletet a nyári hónapokban is. A modern, gépesített konyha (Bosch gépekkel felszerelt) és a teremgarázsban található egy parkolóhely tovább növeli az ingatlan kényelmét.  Budaliget kiváló közlekedési lehetőségekkel rendelkezik, hiszen a közeli buszmegállók révén a város tömegközlekedési hálózata könnyen elérhető. Az autós közlekedés is egyszerű, hiszen a belváros gyorsan megközelíthető. A környék biztonságos, családbarát, így ideális választás gyermekes családok számára. A környék nemcsak a közlekedési lehetőségei miatt vonzó, hanem a zöld területek és a természet közelsége miatt is. Számos kirándulóhely és sportolási lehetőség található a közelben, így a szabadidő eltöltése is kellemesen telhet.   Bármilyen kérdése merülne fel az ingatlannal vagy a környékkel kapcsolatban, bizalommal kereshet minket. Szívesen állunk rendelkezésére, hogy segítsünk Önnek a legjobb döntés meghozatalában, és hogy a lehető legjobb ingatlant találja meg családja számára. 	   | 
      
	  
        
    	Ingatlan adatai 
    	
    	
  			
			    | Irányár: | 
			    279 000 000 Ft | 
		     
            
			    | Típus: | 
			    ház | 
		     
		    
    			| Kategória: | 
			    eladó | 
		     		    
			
			    | Alapterület: | 
			    160 m2 | 
			 
			
			    | Fűtés: | 
			    - | 
		     
            
			    | Állapota: | 
			    új | 
		     
            
			    | Szobák száma: | 
			    5 | 
		     
            
			    | Építés éve: | 
			    2024 | 
		     
            
			    | Szintek száma: | 
			    - | 
		         
	    
    	 
     
	
	
   	További adatok 
    	
    	
  			
			    | Telekterület: | 
			    600 m2 | 
		     
		    
    			| Kert mérete: | 
			    600 m2 | 
		     
		    
			    | Erkély mérete: | 
			    40 m2 | 
		     
			
			    | Felszereltség: | 
			    - | 
			 
			
			    | Parkolás: | 
			    - | 
		     
            
			    | Kilátás: | 
			    udvari | 
		     
            
            
			    | Egyéb extrák: | 
			      | 
		     
            
			    | - | 
	       
	    
   	 
   	   | 
      
	  
	  
	  
	   |