Részletes leírás
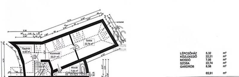
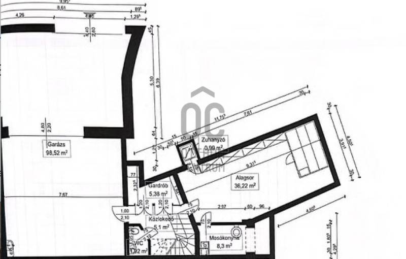
Kivételes lehetőség családosok számára, a 2/A kerület TOP ingatlana!Budapest 02/A kerületének csendes, kertvárosi részén, Adyligetben eladó egy lenyűgöző, prémium kivitelezésű, 4 hálószobás luxusvilla, amely ideális otthona lehet egy nagyobb családnak vagy akár befektetési célokra is tökéletes választás. Az ingatlan alapterülete 462,87 nm, míg a telek mérete 725 nm, így bőséges teret biztosít a kényelmes életvitelhez. További jellemzők:- fantasztikus örökpanoráma- hőszivattyú, H tarifa- luxus minőségű külső és belső burkolatok- fűtött medence- tágas szauna- jacuzzi- 42,72 nm fedett, felszerelt grillteraszA ház kiváló, azonnal költözhető állapotban várja új lakóit, modern hőszivattyús fűtéssel és klímával felszerelve, hogy az év minden szakaszában kellemes hőmérsékletet biztosítson. Az ingatlan belső tereit tágas terek uralják, ideális helyszín a családi összejövetelekhez és reprezentáláshoz. Az ingatlan elegáns stílusú kialakítása, a beépített bútorok és szekrények, valamint a LED hangulatvilágítás \" old money\" eleganciát és stílust kölcsönöznek a tereknek. A házban található 5 fürdőszoba garantálja a kényelmet és a magánszférát minden családtag számára.A lenyűgöző kertben az automata öntözőrendszer folyamatosan biztosítja a növények életerejét, az elvehetetlen panoráma pedig exkluzív látványt nyújt minden irányból. A szabadidő eltöltésére a szauna, fűtött medence és a jakuzzi nyújt lehetőséget.Kérés esetén ingatlanvideó kiküldése lehetséges!A környék biztonságos és csendes, ideális a családok számára, akik a város zajától távol, mégis könnyen megközelíthető helyen keresnek otthont. Nemzetközi iskolák megtalálhatóak a környéken. A közlekedés kiváló, hiszen a közelben található tömegközlekedési lehetőségek gyors és kényelmes eljutást biztosítanak Budapest belvárosába. Az autós közlekedés is egyszerű, a főbb közlekedési útvonalak könnyen elérhetők, a városközpontba 10-15 perc alatt eljuthatunk.Ez az ingatlan nem csupán egy otthon, hanem egy életstílus megtestesítője, amely egyedi tervezésével és exkluzív megoldásaival minden igényt kielégít. A biztonsági ajtó és a riasztórendszer maximális védelmet nyújt, míg a videókaputelefon és a videós biztonsági rendszer a modern technológia kényelmét biztosítja. Amennyiben érdeklik a részletek, vagy kérdései merülnének fel ezzel az egyedülálló ingatlannal kapcsolatban, kérem, ne habozzon! Bizalommal kereshet bármilyen információval, és örömmel állok rendelkezésére, hogy segítsek Önnek megtalálni álmai otthonát.

Budapest, II.kerület
 

Ingatlan adatai
Irányár: 415 000 000 Ft
Típus: ház
Kategória: eladó
Alapterület: 463 m2
Fűtés: -
Állapota: -
Szobák száma: 5
Építés éve: 2009
Szintek száma: -
További adatok
Telekterület: 725 m2
Kert mérete: 725 m2
Erkély mérete: 57 m2
Felszereltség: -
Parkolás: -
Kilátás: -
Egyéb extrák:  
-
Hirdető adatai
Hirdető neve: Otthon Centrum
Kapcsolattartó: Radnai Orsolya
Hirdető telefonszáma: +36 70 388 5711
Honlap: -

Üzenetet küldhet a hirdetőnek:
Az Ön neve:
Az Ön e-mail címe:
Üzenet: