Részletes leírás
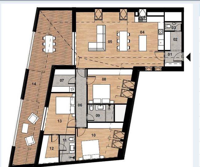
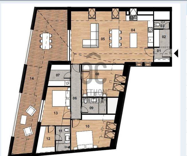
Megvételre kínálok egy olyan otthont, ahol a design, a kényelem és a funkcionalítás tökéletes harmóniában van. A Mártírok úti társasházban várja Önt álmai lakása, amely minden igényt kielégít. A legjobb minőségű anyagok felhasználásával és precíz kivitelezéssel épül.GALERI társasház Zalaegerszeg belvárosában, csendes lakóövezetben épül, három emeletével mindössze 14 lakásnak, két földszinti üzlethelyiségnek nyújtva tökéletes helyszínt. Modern tervezésének és praktikus kialakításának köszönhetően az álmaik otthonát keresőknek és a befektetőknek is ideális választás!A lakás főbb jellemzői:- 3. emelet- 115,92 négyzetméter, alacsony energiaigényű, 34 négyzetméteres terasszal-3 rétegű hőszigetelt üvegezésű műanyag ablakok és erkélyajtók, lakások bejárati ajtaja acélborítású, biztonsági ajtó- lift- extra hő- és hangszigetelt falazatok, födémek- fűtés: lakás -termosztát vezérléssel ellátott egyedileg mért házközponti levegő- víz hőszivattyús rendszer, padlófűtés hőleadással- hűtés: lakás -termosztát vezérléssel ellátott egyedileg mért házközponti levegő- víz hőszivattyús rendszer,magasfali fan-coil hűtésselIgény esetén gépkocsi beálló vásárolható. Várható átadás: 2026. június 01.Projekt bemutatásaMegvételre kínálok egy olyan otthont, ahol a design, a kényelem és a funkcionalítás tökéletes harmóniában van. A Mártírok úti társasházban várja Önt álmai lakása, amely minden igényt kielégít. A legjobb minőségű anyagok felhasználásával és precíz kivitelezéssel épül.GALERI társasház Zalaegerszeg belvárosában, csendes lakóövezetben épül, három emeletével mindössze 14 lakásnak, két földszinti üzlethelyiségnek nyújtva tökéletes helyszínt. Modern tervezésének és praktikus kialakításának köszönhetően az álmaik otthonát keresőknek és a befektetőknek is ideális választás! A társasház további főbb jellemzői:- 32-115 négyzetméter közötti, alacsony energiaigényű, teraszos lakások- Leier LKF kéregelemmel készülő vasbeton falszerkezet-3 rétegű hőszigetelt üvegezésű műanyag ablakok és erkélyajtók, lakások bejárati ajtaja acélborítású, biztonsági ajtó- lift- extra hő- és hangszigetelt falazatok, födémek- fűtés: lakás -termosztát vezérléssel ellátott egyedileg mért házközponti levegő- víz hőszivattyús rendszer, padlófűtés hőleadással- hűtés: lakás -termosztát vezérléssel ellátott egyedileg mért házközponti levegő- víz hőszivattyús rendszer,magasfali fan-coil hűtésselTovábbi információért keressen bizalommal!Igény esetén gépkocsi beálló vásárolható. Várható átadás: 2026. június 01.

Zala megye, Zalaegerszeg
 

Ingatlan adatai
Irányár: 133 000 000 Ft
Típus: lakás (újépítésű)
Kategória: eladó
Alapterület: 116 m2
Fűtés: elektromos
Állapota: új
Szobák száma: 4
Építés éve: 2026
Szintek száma: -
További adatok
Telekterület: -
Kert mérete: -
Erkély mérete: 34 m2
Felszereltség: -
Parkolás: -
Kilátás: utcai
Egyéb extrák:  
-
Hirdető adatai
Hirdető neve: Otthon Centrum
Kapcsolattartó: Nikitscher-Rigó Diána
Hirdető telefonszáma: +36 70 412 5336
Honlap: -

Üzenetet küldhet a hirdetőnek:
Az Ön neve:
Az Ön e-mail címe:
Üzenet: