Részletes leírás
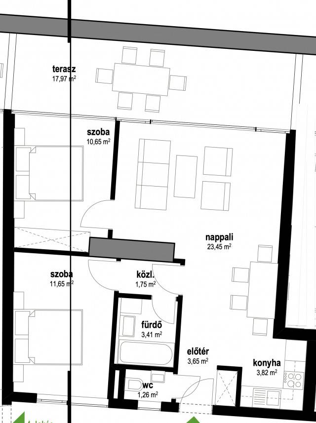
Birtokoljon egy részt a világörökség részéből. Budapest legelegánsabb sugárútján valósult meg ez a projekt ahol a korhűen felújított palota legfelső szintjén került kialakításra ez a remek, nagyteraszos, napfényes lakás. Élvezze a belváros kényelmét és, hogy séta távolságban elérhetőek a Pesti Broadway színházai és a város legjobb éttermei. Korszerű gépészettel, felület hűtéssel és fűtéssel és szellőztető rendszerrel van felszerelve, az ablakokon elektromosan mozgatható árnyékolók. Mivel emeletráépítés során került kialakításra a lakás így minden helyiség teljes értékű belmagassággal rendelkezik. A nappaliból nyíló, utcai tájolású terasz kellemes helyszíne lehet a nyáresti vacsoráknak. A hálószobák jól bútorozhatóak, a szerencsés ablak kiosztásnak köszönhetően még a fürdőszoba is ablakos. Az épületen belüli. A szomszédos luxus szálóda szolgáltatásait is a lakók kényelmét szolgálja. A közelben teremgarázs bérelhető vagy 40.000EUR ellenében vásárolható.

Budapest, VI.kerület
Andrássy út 

Ingatlan adatai
Irányár: 114 000 000 Ft
Típus: lakás (tégla)
Kategória: eladó
Alapterület: 67 m2
Fűtés: egyéb
Állapota: új
Szobák száma: 3
Építés éve: -
Szintek száma: 3
További adatok
Telekterület: -
Kert mérete: -
Erkély mérete: 17 m2
Felszereltség: -
Parkolás: -
Kilátás: utcai
Egyéb extrák:  
-
Hirdető adatai
Hirdető neve: REGION Ingatlaniroda / Region Immo Kft
Kapcsolattartó: Andrássy Róbert
Hirdető telefonszáma: +36703675765
Honlap: -

Üzenetet küldhet a hirdetőnek:
Az Ön neve:
Az Ön e-mail címe:
Üzenet: