Részletes leírás
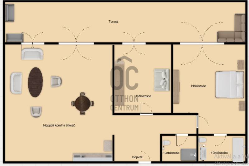
Siófok Széplak városrészében, exkluzív lakóparkban kínálunk eladásra egy kivételes, 4. emeleti panorámás ingatlant, mely ideális választás középkorú, vagy kisgyermekes vásárlók számára, akik a nyugalmat, a modern életstílust és a vízpart közelségét keresik. Ez a bruttó 85 négyzetméteres, tágas lakás nappali + két hálószobával, két fürdőszobával rendelkezik, így tökéletesen alkalmas akár saját részre, akár befektetési célú vásárlók számára. A lakás állapota kiváló, prémium kivitelezés jellemzi,mint például a hőszivattyús fűtés és a klímaberendezés, amely a legújabb technológiákat ötvözi a berendezés klasszikus eleganciájával, melyek a komfortos életet szolgálják. A lakás amerikai konyhás nappalija világos és tágas, ideális helyszín családi és baráti összejövetelekhez. A beépített bútorok pedig maximálisan kihasználják a rendelkezésre álló teret, míg a motoros redőnyök és a LED hangulatvilágítás elegáns és modern hangulatot kölcsönöznek a lakásnak. A 30 négyzetméteres beépített teraszról a Balatonra néző kilátásban gyönyörködhet, így a reggeli kávé vagy az esti borozás valódi élménnyé válik. A medencés társasház és a rendezett kert, a kerti sütögető pedig a közösségi élet színhelyévé válik, ahol a szomszédok baráti kapcsolatokat építhetnek ki. A gyermekek számára, játszótér, homokozó, gyermek pancsoló biztosítja a felhőtlen nyári napokat.Ez a tehermentes ingatlan egy okos otthon rendszerrel is rendelkezik, így a modern technológia és a kényelem maximális élményét nyújtja. Riasztórendszer biztosítja a lakás biztonságát, míg a környék felkapott jellege és a vízpart közelsége mindenki számára vonzó lehetőségeket kínál. A környék ellátottsága kiváló, a közlekedés kitűnő, hiszen a közelben található buszmegálló és vasútállomás lehetővé teszi a könnyű közlekedést Siófok belvárosa és a környező települések felé. Széplak nyugodt, csendes része a városnak, ahol a biztonság és a rendezett környezet garantálja a kellemes életérzést Ne hagyja ki ezt a páratlan lehetőséget, hogy egy igazán különleges otthonra leljen, ahol a modern életstílus és a természet közelsége egyesül. Az ingatlanhoz 2 db felszíni beálló és 1 db tároló kötelezően vásárolandó 10 M ft-os áron.Kérdéseivel bizalommal kereshet, szívesen állok rendelkezésére, hogy segítsek Önnek megtalálni álmai ingatlanát!

Somogy megye, Siófok
 

Ingatlan adatai
Irányár: 169 900 000 Ft
Típus: lakás (tégla)
Kategória: eladó
Alapterület: 70 m2
Fűtés: -
Állapota: -
Szobák száma: 3
Építés éve: 2016
Szintek száma: -
További adatok
Telekterület: -
Kert mérete: -
Erkély mérete: 30 m2
Felszereltség: -
Parkolás: -
Kilátás: kertre néző
Egyéb extrák:  
-
Hirdető adatai
Hirdető neve: Otthon Centrum
Kapcsolattartó: Harsányi Bali Erzsébet
Hirdető telefonszáma: +36 70 412 3666
Honlap: -

Üzenetet küldhet a hirdetőnek:
Az Ön neve:
Az Ön e-mail címe:
Üzenet: