| 
	  
	   Részletes leírás 
  A természet suttogásában pihen ez a LUXUS ház, ahova NAGYVILÁGI ÁLMODÓK vágynak, akik tudják, hogy az ÉLET SZÉPSÉGE nem harsog, hanem csendesen hódít.Lépjen be, és érezze meg a luxus valódi lényegét, mely itt, a falak között csendben születik újra minden reggel. E ház a keveseké, kik tudják, hogy a gazdagság nem csupán a tárgyakban, hanem A PILLANATOKBAN REJLIK. A murvás út hamarosan aszfaltos lesz, mint a többi is a közelben.A tulajdonos eredetileg magának építette, így a LEGMAGASABB MINŐSÉGI ANYAGOKKAL készült. Jelenleg irodaként használta. Mivel más projektbe szeretne belevágni, így eladóvá vált ez a RITKASÁG.Röviden összefoglalva néhány FŐ KVALITÁS:- OKOSGÉPHÁZ / kazánház: Hitachi HŐSZIVATTYÚ berendezés 11kW, PADLÓFŰTÉS, akkumulátor pakk SOLAR PANEL 18KW, minden szobában FAIN COL KLÍMA termosztáttal- 15cm GRAFITOS SZIGETELÉS, az emeleten 10cm a padlófűtés alatt, a tetőtér 25cm kőzetgyapot szigetelést kapott, tető: Bramac cserép, betonfödém- ÖSSZKÖZMŰVES: Vízóra, szennyvízbekötés, csatorna ki van vezetve az útra, áram 3 fázis és normál, gáz az utcán- Műanyag nyílászárók, Velux ablakok, elektromos redőnyök, szúnyoghálók- Garázs nincs kiépítve (igény szerint és felár esetében ebben is tud segíteni a jelenlegi tulajdonos, aki az építészeti iparban van), kb. 15 autó fér el a TÉRKÖVEZETT UDVARON- úszókapus ELEKTROMOS KAPU és egy VADONATÚJ KERÍTÉS KIÉPÍTÉSE is folyamatban van- az udvaron van egy nagy GRILLPLACC és egy 18,54m2-es nyitott TERASZ is- RIASZTÓ BERENDEZÉS, MOZGÁSÉRZÉKELŐ LÁMPÁK, Internet: Arany Antenna- kedves szomszédok, környezet természetbeli, szemben lovak legelésznek- a padló OLASZ MÁRVÁNYBÓL van, a szobákban magas minőségű laminát parketta van, KÉT FÜRDŐSZOBA - MINDKÉT EMELETEN EGY- a konyhában indukciós főzőlap van, az összes gép MÁRKÁS (BOSCH hűtő, Whirlpool micro és sütő) és 2 éves GARANCIA is van rajtuk- MŰSZAKI LEÍRÁSSAL RENDELKEZIKAjánlom kis- és nagy CSALÁDOSOKNAK, ÜZLETI CÉLRA is kiváló, BEFEKTETÉSNEK is alkalmas: pl. SZÁLLODÁT is működtethet vagy egy wellness-kozmetikai KLINIKÁT.A BUSZMEGÁLLÓ 7-8 perc gyalog. Az AUTÓPÁLYA is nagyon közel van. Új iskola van, új művelődési ház, új benzinkút, RÁCKERESZTÚR EGY DINAMIKUSAN FEJLŐDŐ TELEPÜLÉS.Ez nem csupán otthon. Ez egy életstílus, egy vallomás. Az Öné lehet, ha elég bátran álmodik.VÁROM MEGKERESÉSÉT! 	   | 
      
	  
        
        Fejér megye, Ráckeresztúr 
             
    	Ingatlan adatai 
    	
    	
  			
			    | Irányár: | 
			    229 870 000 Ft | 
		     
            
			    | Típus: | 
			    ház | 
		     
		    
    			| Kategória: | 
			    eladó | 
		     		    
			
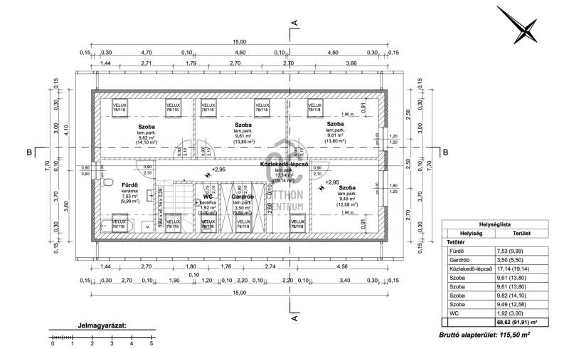
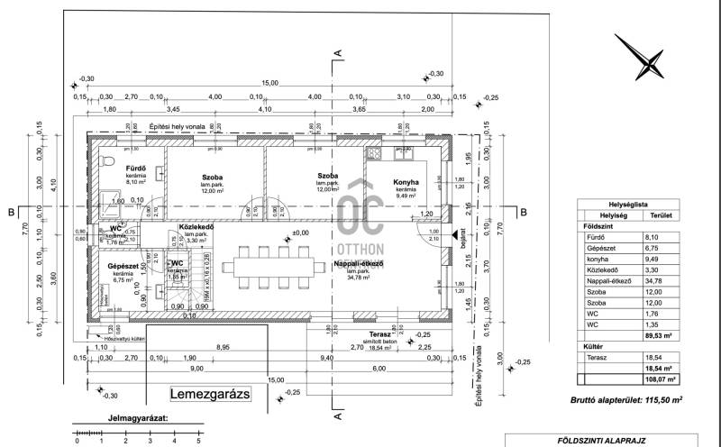
			    | Alapterület: | 
			    181 m2 | 
			 
			
			    | Fűtés: | 
			    - | 
		     
            
			    | Állapota: | 
			    új | 
		     
            
			    | Szobák száma: | 
			    7 | 
		     
            
			    | Építés éve: | 
			    2023 | 
		     
            
			    | Szintek száma: | 
			    - | 
		         
	    
    	 
     
	
	
   	További adatok 
    	
    	
  			
			    | Telekterület: | 
			    606 m2 | 
		     
		    
    			| Kert mérete: | 
			    606 m2 | 
		     
		    
			    | Erkély mérete: | 
			    18 m2 | 
		     
			
			    | Felszereltség: | 
			    - | 
			 
			
			    | Parkolás: | 
			    - | 
		     
            
			    | Kilátás: | 
			    - | 
		     
            
            
			    | Egyéb extrák: | 
			      | 
		     
            
			    | - | 
	       
	    
   	 
   	   | 
      
	  
	  
	  
	   |