Részletes leírás
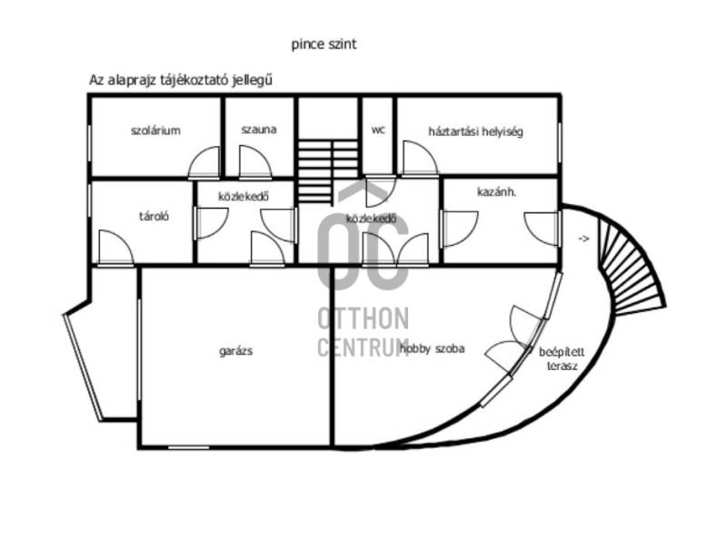
Szombathely kimagaslóan kedvelt városrészén, Herényben kínálunk eladásra egy téglaépítésű, 400 nm-es, 5 szoba + nappalival és 4 fürdőszobával rendelkező családi házat.Az ingatlan kiváló lehetőséget nyújt több generáció együttélésére, kisebb átgondolással a szintek, akár teljesen elkülöníthetőek egymástól, hiszen mind a fsz.-emeleten, mind a szuterén szinten rendelkezésre áll minden ahhoz, hogy külön lakrészként funkcionálhasson.A ház minőségi anyagok felhasználásával és rendkívül praktikus, egyedi tervezéssel került megépítésre 2006-ban. Energetikai besorolása: CC, a 44-es Porotherm falazatnak, szigetelésnek, a minőségi nyílászáróknak és az egész ház precíz kivitelezésének köszönhetően alacsony a fenntartási költsége. Az otthon melegét gázkazán biztosítja radiátoros hőleadással, alternatív megoldás lehet még a vegyestüzelésű kazán és a kandalló. A földszinten az étkező-nappali-közlekedő alatt padlófűtés húzódik.Élhető, tágas terek és kényelmi szempontokból is átgondolt kivitelezés jellemzi az egész ingatlant. Leendő tulajdonosa az év bármely szakaszában kikapcsolódhat anélkül, hogy kitenné a lábát otthonából: a 712 nm-es kert igazán intim, varázslatos hangulatot áraszt, itt rendelkezésre áll jakuzzi (5 személyes), fedett medence (6*3 m-es és 1,5 m mély+hangulatvilágítás), hatalmas terasz (44,06 nm), melyen élvezhetjük a nyári napsütést, vagy kiülve akár elfogyaszthatjuk reggelinket madárcsicsergés kíséretében. Borongósabb napokon szauna, szolárium és a nappaliban elhelyezett kandalló tüze segíthet kizökkenni a szürke hétköznapokból.További lehetőséget rejt magában a szuterén szinten található un. hobby szoba (40,70 nm), mely csak arra vár, hogy következő tulajdonosa megálmodja: legyen az saját szórakoztatásuk, hobbijuk rendelkezésére egy edzőterem, akár wellness részleg; vagy vállalkozásból adódóan iroda, tárgyalóhelyiség, szépségszalon, egyéb üzlethelyiség; akár egy rendelő, vagy épp műhely...bármi megvalósítható!!Több autó számára is kényelmes parkolást biztosít egy fedett kocsibeálló és egy dupla garázs (36 nm), mely fűthető -a felhajtó is.Szinte a teljes berendezéssel együtt az Öné lehet ez az igazán különleges és magával ragadó családi ház, ahol garantáltan az egész családja jól fogja érezni magát! Jöjjön el és tekintsük meg együtt!Hitelre van szüksége? Az Otthon Centrum az ország egyik legnagyobb és legmegbízhatóbb hitelközvetítőjeként, teljes körű és díjmentes hitel ügyintézéssel, biztosításkötéssel áll rendelkezésére! Kérje személyre szabott ajánlatunkat Kollégáinktól!Válassza ki az Önnek legmegfelelőbbet!Vas vármegye családi házVas vármegye eladó családi házSzombathely családi házSzombathely eladó családi házSzombathely igényes családi házSzombathely családi ház medence

Vas megye, Szombathely
 

Ingatlan adatai
Irányár: 199 000 000 Ft
Típus: ház
Kategória: eladó
Alapterület: 400 m2
Fűtés: -
Állapota: -
Szobák száma: 6
Építés éve: 2006
Szintek száma: -
További adatok
Telekterület: 712 m2
Kert mérete: 712 m2
Erkély mérete: -
Felszereltség: -
Parkolás: -
Kilátás: -
Egyéb extrák:  
-
Hirdető adatai
Hirdető neve: Otthon Centrum
Kapcsolattartó: Szolnoki Nóra
Hirdető telefonszáma: +36 70 388 5831
Honlap: -

Üzenetet küldhet a hirdetőnek:
Az Ön neve:
Az Ön e-mail címe:
Üzenet: