Részletes leírás
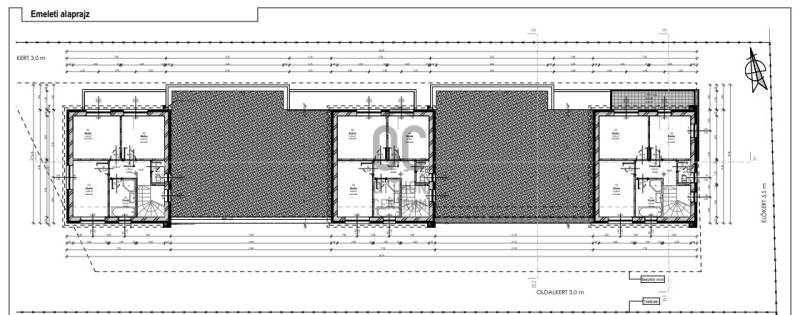
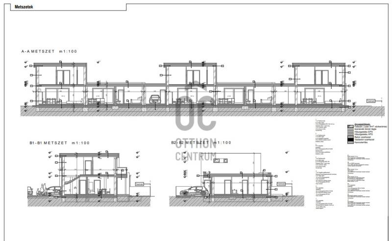
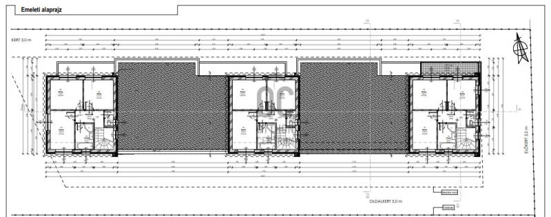
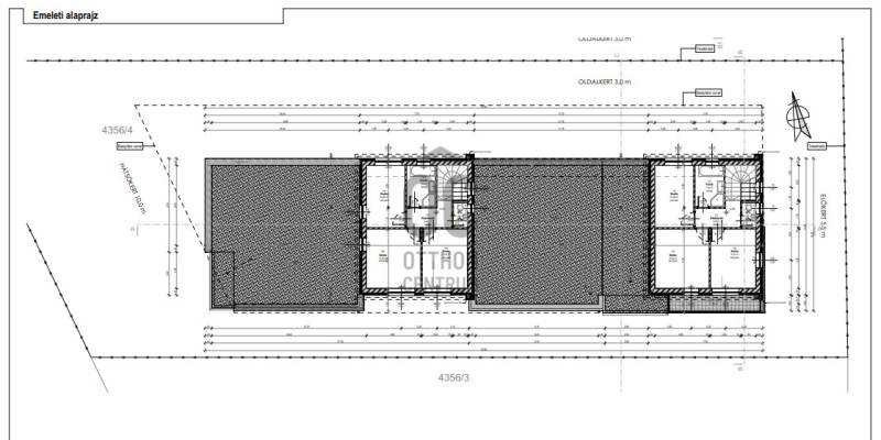
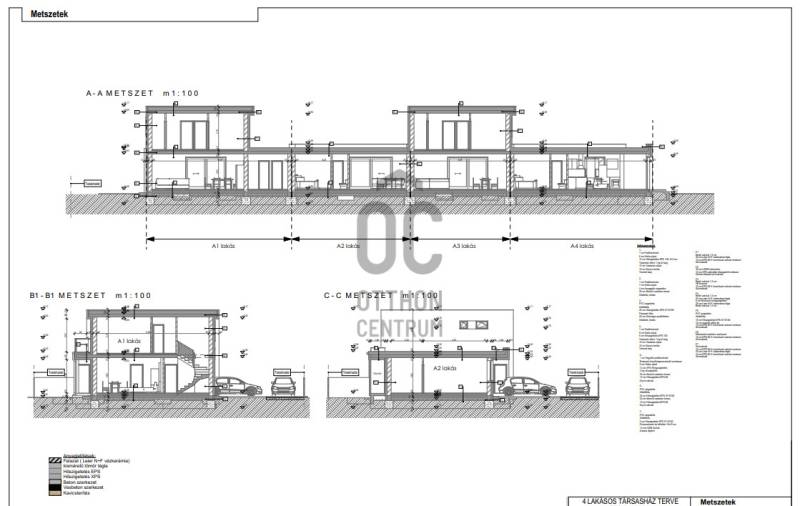
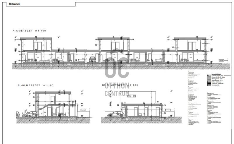
Sikeresen működő, tapasztalt, megbízható kivitelezőtől eladó sorház.B1 lakás: 103,68 nm hozzá tartozó telek: 272 nm.Építkezés folyamatban, várható kulcsrakész kivitelezés, átadás 2025. harmadik negyedév.Lakások műszaki tartalma:- az épület alápincézetlen 1 illetve 2 szintes lapostetős épület.- az épület vasalt sávalapokkal lesz alapozva. Az alapok felett lábazati fal készül 30 cm szélességgel zsalukőből amelyre kifut a vasalt aljzat, betonhálóval. A vasalt aljzatbeton alatt kavics feltöltés készül, geotextíliára.- A 1- és 2 szintes épület vb pillérjei, betonfalai szerkezeti méretű oszlopokkal, vasalva, zsaluzva, illetve esetenként zsalukőből kialakítva.- Főfalak: 25 és 30 cm-es Porotherm N+F falazattal készülnek.- Lakáselválasztó falak: Leiertherm 25 cm-es dupla falazat, hangszigeteléssel.- Áthidalók: monolit és kerámia áthidalók.- Födém: monolit vasbeton lemezek, szükséges áttörésekkel és attikaképzésekkel.- Lépcső: monolit vasbeton lépcső amely főfalakra és a födémekre támaszkodik fel.- Válaszfalak: Leier 10/50 cm-es válaszfaltéglából készülnek.- Korlátok: a külső erkélykorlátok saválló acél szerkezetek, illetve biztonsági üvegkorlátok minimum 95 cm magassággal, a kiviteli és a látványterveknek megfelelően. A belső korlátok saválló acél szerkezetek illetve biztonsági üvegkorlátok.Bővebb műszaki tartalomról érdeklődjön a megadott elérhetőségeken!Amennyiben Ön egy igényes ingatlant, kíván vásárolni gyönyörű környezetben, hívjon bizalommal, segítek a gyors, pontos ügyintézésben!Irodánk teljes körű hitel-, babaváró és CSOK ügyintézéssel, biztosítással, energetikai tanúsítvány készítéssel, valamint megbízható ügyvédi háttérrel segíti ügyfeleit.Valósítsa meg álmai otthonát velünk!Projekt bemutatásaAjka-Bakonygyepesen 9db új építésű sorház Eladó!Sikeresen működő, tapasztalt, megbízható kivitelezőtől eladó sorház.Építkezés folyamatban, várható kulcsrakész kivitelezés, átadás 2025. harmadik negyedév.Lakások műszaki tartalma:- az épület alápincézetlen 1 illetve 2 szintes lapostetős épület.- az épület vasalt sávalapokkal lesz alapozva. Az alapok felett lábazati fal készül 30 cmszélességgel zsalukőből amelyre kifut a vasalt aljzat, betonhálóval. A vasalt aljzatbeton alattkavics feltöltés készül, geotextíliára.- A 1- és 2 szintes épület vb pillérjei, betonfalai szerkezeti méretű oszlopokkal, vasalva,zsaluzva, illetve esetenként zsalukőből kialakítva.- Főfalak: 25 és 30 cm-es Porotherm N+F falazattal készülnek.- Lakáselválasztó falak: Leiertherm 25 cm-es dupla falazat, hangszigeteléssel.- Áthidalók: monolit és kerámia áthidalók.- Födém: monolit vasbeton lemezek, szükséges áttörésekkel és attikaképzésekkel.- Lépcső: monolit vasbeton lépcső amely főfalakra és a födémekre támaszkodik fel.- Válaszfalak: Leier 10/50 cm-es válaszfaltéglából készülnek.- Korlátok: a külső erkélykorlátok saválló acél szerkezetek, illetve biztonsági üvegkorlátokminimum 95 cm magassággal, a kiviteli és a látványterveknek megfelelően. A belső korlátoksaválló acél szerkezetek illetve biztonsági üvegkorlátok.Bővebb műszaki tartalomról érdeklődjön a megadott elérhetőségeken!Amennyiben Ön egy igényes ingatlant, kíván vásárolni gyönyörű környezetben, hívjon bizalommal, segítek a gyors, pontos ügyintézésben!Irodánk teljes körű hitel-, babaváró és CSOK ügyintézéssel, biztosítással, energetikai tanúsítvány készítéssel, valamint megbízható ügyvédi háttérrel segíti ügyfeleit.Valósítsa meg álmai otthonát velünk!

Veszprém megye, Ajka
 

Ingatlan adatai
Irányár: 81 900 000 Ft
Típus: ház
Kategória: eladó
Alapterület: 104 m2
Fűtés: -
Állapota: új
Szobák száma: 4
Építés éve: 2025
Szintek száma: -
További adatok
Telekterület: 272 m2
Kert mérete: 272 m2
Erkély mérete: 19 m2
Felszereltség: -
Parkolás: -
Kilátás: -
Egyéb extrák:  
-
Hirdető adatai
Hirdető neve: Otthon Centrum
Kapcsolattartó: Szabó Attila
Hirdető telefonszáma: +36 70 412 3461
Honlap: -

Üzenetet küldhet a hirdetőnek:
Az Ön neve:
Az Ön e-mail címe:
Üzenet: