Részletes leírás
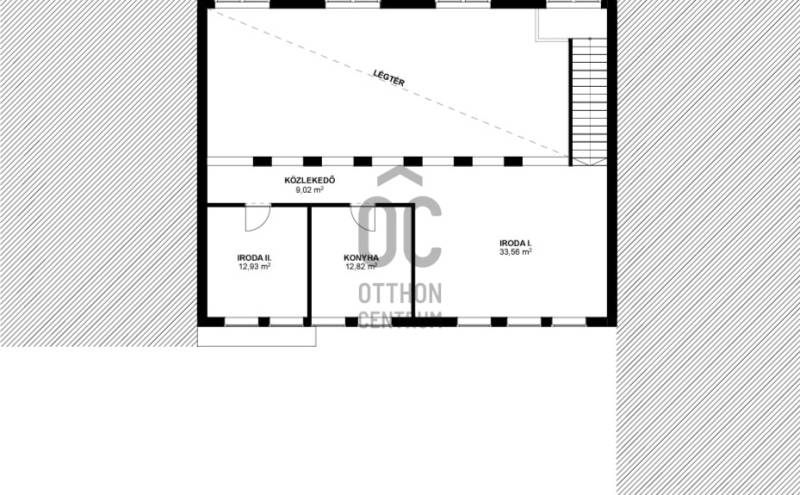
Megvételre kínálom 8. kerület egyik legfrekventáltabb részén ezt a 211m2-es üzlethelyiséget. Hivatalos besorolását tekintve iroda. A két szinten jelenleg 6 szoba található. Külön feljáró a teremgarázsból, nagy portál. A válaszfalak mozdíthatóak!Alkalmas étteremnek, kávézónak, gazdasági tevékenységnek, bemutatóteremnek.

Budapest, VIII.kerület
 

Ingatlan adatai
Irányár: 170 000 000 Ft
Típus: kereskedelmi/ipari ingatlan
Kategória: eladó
Alapterület: 211 m2
Fűtés: -
Állapota: -
Szobák száma: -
Építés éve: 2000
Szintek száma: -
További adatok
Telekterület: -
Kert mérete: -
Erkély mérete: -
Felszereltség: -
Parkolás: -
Kilátás: -
Egyéb extrák:  
-
Hirdető adatai
Hirdető neve: Otthon Centrum
Kapcsolattartó: Tamás Zoltán Tiborné
Hirdető telefonszáma: +36 70 461 9966
Honlap: -

Üzenetet küldhet a hirdetőnek:
Az Ön neve:
Az Ön e-mail címe:
Üzenet: