Részletes leírás
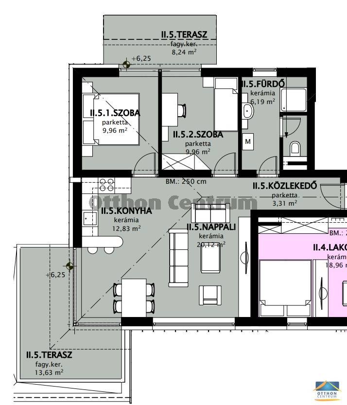
Már csak pár darab lakás maradt, vásároljon még kedvezményes áron!Ezt nem szabad kihagyni!-Második emeleti 64 nm-es lakás, 22 nm erkéllyel.-Saját zárt udvari gépkocsibeálló, amit az ár tartalmaz - A lakások befejezése elkezdődött, így jelenleg van kulcsrakész lakás és emelt szintű szerkezetkész lakás isJellemzői:- műanyag nyílászárók- házközponti kazán és hőszivattyú- igényes modern kialakítás- csendes környék- autópálya felhajtó könnyen megközelíthető• A homlokzati nyílászárok és a hozzátartozó külső párkányok beépítésre kerülnek, a lakáshoz tartozó bejárati ajtókkal.• A lakásokat határoló külső falak 30-es Porotherm rendszerű falazatból 15 cm homlokzati hőszigeteléssel, a belső elválasztó falak 10-es, illetve 20-as válaszfaltéglából valamint egyes helyeken hanggátló téglából készülnek. Minden téglafal vakolt.• Az emeleti vasbeton födémek padlószerkezete hangszigetelést kap, melyre úsztatott aljzatbeton készül.Kérdéseivel, észrevételeivel kérem keressen!Hitelre van szüksége??Az Otthon Centrum az ország egyik legnagyobb és legmegbízhatóbb hitelközvetítőjeként, teljes körű és díjmentes hitelügyintézéssel, biztosításkötéssel áll rendelkezésére!Kérje személyre szabott ajánlatunkat Kollégáinktól!Projekt bemutatásaA társasház műszaki jellemzői:- külső falak Leiertherm 30 pro falazóblokkal, 15 cm vastagságú Austrotherm hőszigeteléssel vakolva - a belső főfalak Leier 25-es falpanellel - belső válaszfalak Leiertherm 10 N+F válaszfal elemek 10 cm-es vastagsággal készülnek- a fűtés házközponti gázkazánnal és hőszivattyúval biztosított- padlófűtés minden helyiségben- minden lakáshoz terasz, vagy erkély tartozik- lakásonként 1 gépkocsibeálló (benne van az árban)A társasház tervezett átadása 2022 december 20.

Győr-Moson-Sopron megye, Mosonmagyaróvár
 

Ingatlan adatai
Irányár: 55 846 650 Ft
Típus: lakás (újépítésű)
Kategória: eladó
Alapterület: 75 m2
Fűtés: gáz (cirko)
Állapota: új
Szobák száma: 3
Építés éve: 2022
Szintek száma: -
További adatok
Telekterület: -
Kert mérete: -
Erkély mérete: 22 m2
Felszereltség: -
Parkolás: -
Kilátás: kertre néző
Egyéb extrák:  
-
Hirdető adatai
Hirdető neve: Otthon Centrum
Kapcsolattartó: Otthon Centrum
Hirdető telefonszáma: +3614873300
Honlap: -

Üzenetet küldhet a hirdetőnek:
Az Ön neve:
Az Ön e-mail címe:
Üzenet: