Részletes leírás
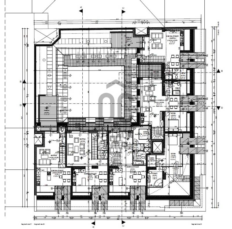
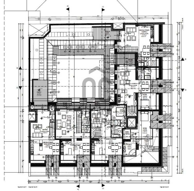
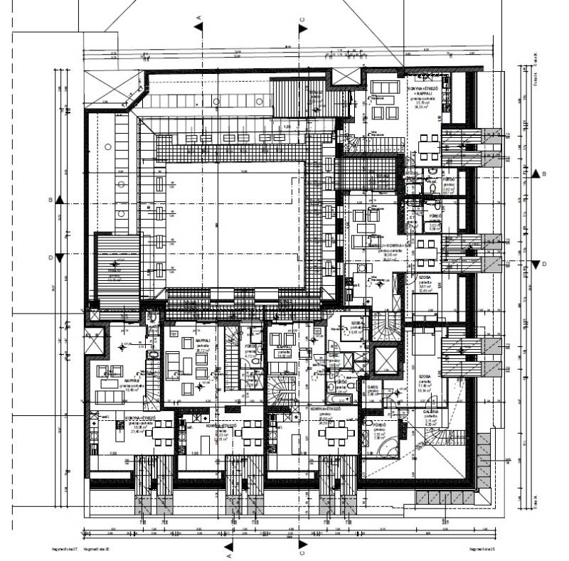
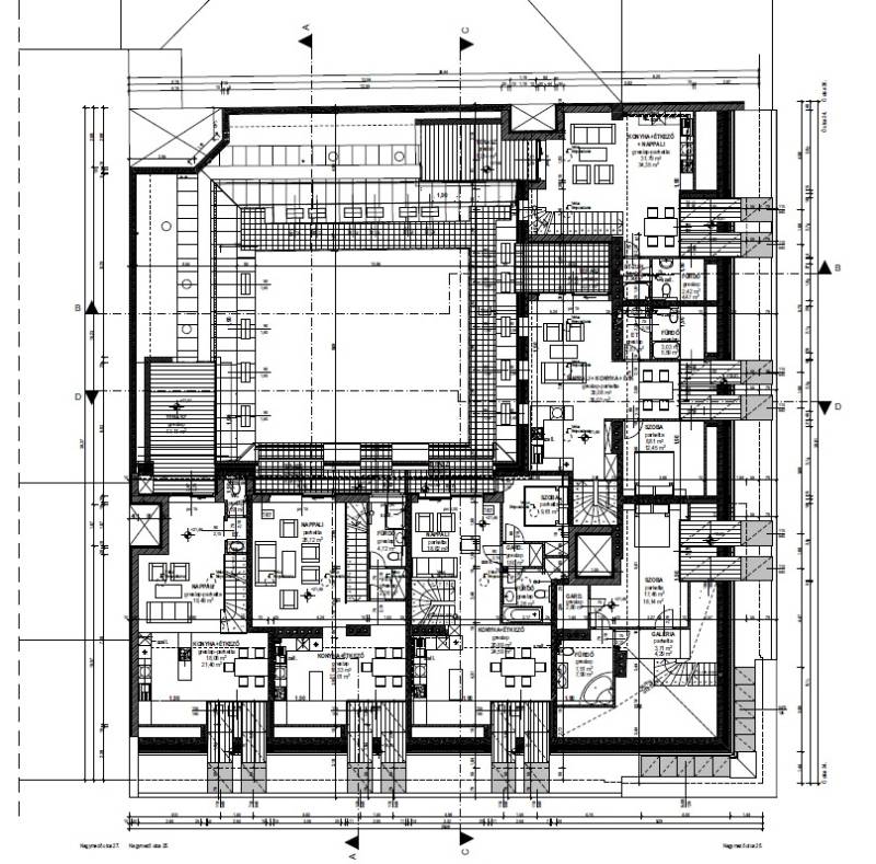
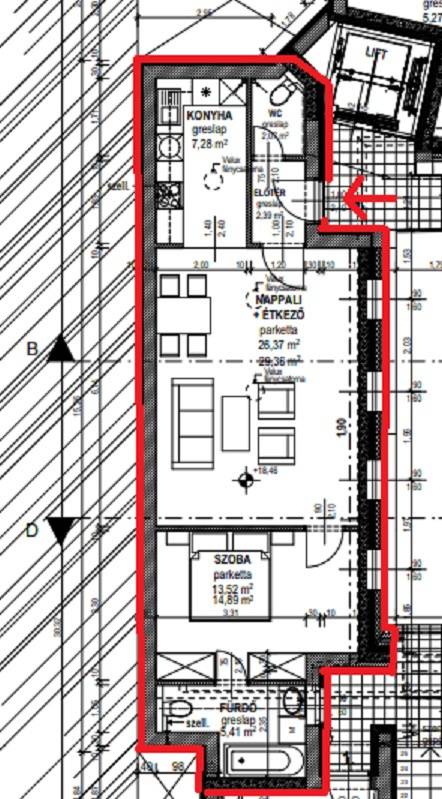
Most induló tetőtér ráépítéssel kialakításra kerülő 9 lakásos projekt keretében kínálok eladásra egy minden igényt kielégítő, kétszobás luxus apartmant Budapest Belső VI. kerületében a Pesti Broadway szívében, a Nagymező utcában.Pár perc sétára van a Zeneakadémia, Operaház, a világörökség részét képező Andrássy út, továbbá a Király utca, ahol számtalan kávézó, étterem, színház, egyéb kulturális és szórakozási lehetőség is megtalálható. Befektetési szempontból is kiváló lehetőségeket rejt a beruházás, hiszen a Nagymező utca szemközti oldalán nyitotta a kapuit a világhírű Hard Rock hálózat új szállodája.A lakások kialakításánál a legmagasabb igényeket vettük figyelembe. A nettó 59,22 nm hasznos alapterületű egy szintes lakás előteréből juthatunk a tágas étkezős nappaliba, itt található szeparáltan a konyha is. A nappaliból nyílik a szoba és a fürdőszoba, az előtérből még egy külön mellékhelyiség.A két szintes emelet ráépítés keretében összesen 9 db., egy- illetve belső kétszintes, változatos méretű (nettó 37,66-117, nm-es) és elosztású (nappali + 1, 2, 3 hálószobás), teraszos okos otthon épül.A vételár az alábbiakat tartalmazza:- InnoSpot Okos Otthon rendszer előkészítése;- konyhabútor (opcionális);- Villeroy and Boch szaniterek, Hansgrohe csaptelepek, magas minőségű hideg- és meleg burkolatok;- egyedi hőszivattyú, mennyezeti hűtés és padlófűtés;- igény esetén kiváló referenciákkal rendelkező belső építész segít a lakás egyedi arculatának kialakításában.A lakások kivitelezője 18 év tapasztalattal rendelkezik tetőterek tervezésében és kivitelezésében, a tetőterek és a Belváros szerelmese, hiszen egyszerre alkot újat és őrzi meg a régit. Tradicionális környezetben teremt - a luxus minden elemével rendelkező - modern otthonokat.Ne szalassza el ezt a kiváló lehetőséget, várom megtisztelő hívását!Egyedi igényekre szabott lakáshitelekkel állunk rendelkezésére.Bankfüggetlen hitelcentrumunk az országban elérhető összes bank és hitelintézet ajánlatát versenyezteti az Ön számára díjmentesen.Munkatársaink nagy szakmai tapasztalattal várják Önt az előre egyeztetett időpontban akár a normál munkaidő után is.Projekt bemutatásaLuxus újépítésű tetőtéri lakások a Pesti Broadway szívében! Kétszintes emelet ráépítés keretében 9 db egy- illetve belső kétszintes, változatos méretű (nettó 37 - 117 nm-es) és elosztású (nappali + 1, 2, 3 hálószobás), nagy teraszos, télikertes luxus lakás épül a Nagymező és az Ó utca saroképületén. A vételár az alábbiakat tartalmazza:- InnoSpot Okos Otthon rendszer előkészítése- konyhabútor (opcionális)- magas minőségű szaniterek, csaptelepek, hideg- és meleg burkolatok- egyedi hőszivattyú, mennyezeti hűtés és padlófűtés- igény esetén kiváló referenciákkal rendelkező belsőépítész segít a lakások egyedi arculatának kialakításában.Pár perc sétára van a Zeneakadémia, Operaház, a világörökség részét képező Andrássy út, továbbá a Király utca, ahol számtalan kávézó, étterem, színház, egyéb kulturális és szórakozási lehetőség is megtalálható. Befektetési szempontból is kiváló lehetőségeket rejt a beruházás, hiszen a Nagymező utca szemközti oldalán nyitotta a kapuit a világhírű Hard Rock hálózat új szállodája.A lakások kivitelezője 18 év tapasztalattal rendelkezik tetőterek tervezésében és kivitelezésében, a tetőterek és a Belváros szerelmese, hiszen egyszerre alkot újat és őrzi meg a régit. Tradicionális környezetben teremt - a luxus minden elemével rendelkező - modern otthonokat.A fényképeken lévő lakások a beruházó és a belsőépítész előző közös munkájának az eredménye. Ne szalassza el ezt a kiváló lehetőséget, várom megtisztelő hívását!

Budapest, VI.kerület
 

Ingatlan adatai
Irányár: 130 284 000 Ft
Típus: lakás (újépítésű)
Kategória: eladó
Alapterület: 57 m2
Fűtés: -
Állapota: új
Szobák száma: 2
Építés éve: 2024
Szintek száma: -
További adatok
Telekterület: -
Kert mérete: -
Erkély mérete: -
Felszereltség: -
Parkolás: -
Kilátás: udvari
Egyéb extrák:  
-
Hirdető adatai
Hirdető neve: Otthon Centrum
Kapcsolattartó: Dr. Oláh Mária
Hirdető telefonszáma: +36 70 461 9491
Honlap: -

Üzenetet küldhet a hirdetőnek:
Az Ön neve:
Az Ön e-mail címe:
Üzenet: