Részletes leírás
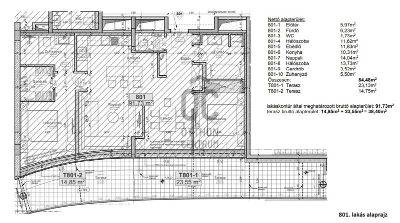
VIII. emeleti 801. lakás:- br. 91,73 nm-es lakás- 38,40 nm-es terasz (3 kijárattal)- nappali külön étkezővel- 2 hálószoba- gardrób- gépesített konyha - 2 fürdőszoba, WC kézmosóval.Projekt bemutatásaDebrecen belvárosát a Nagyerdővel összekötő sugárúton kerül kivitelezésre a helyi neves tervező házaspár által megálmodott, egyedi megoldású, könnyed vonalvezetésű, igényes, 60 lakásos társasház.Az otthonos lakások mindegyikére jellemző a fényes terek, kellemes időjárás-független hőmérséklet, csodálatos panoráma. A tervezésnél elsődleges szempont volt, hogy a lakók úgy érezzék magukat, mintha egy szállodában lennének:-lift nemcsak a társasházban, hanem a garázsban is (autólift)-portaszolgálat / recepció, beléptetőrendszer-tetőteraszon napozó, medence, szauna, jakuzzi, amit a lakók használhatnak-étterem.A lakások mindegyike:-erkélyes-konyhával és minőségi gépekkel felszerelt-fürdőszobák ízléses, modern kialakításuak-egységes függönyökkel ellátottak-padlófűtés és mennyezet fűtés-hűtésű.A budapesti sikeres beruházó hajdúsági gyökerekkel rendelkezik. Büszkeség számukra nemcsak Debrecen legkülönlegesebb lakóingatlanát fejleszteni, de mind a beruházást, mind az üzemeltetést cégcsoporton belül megvalósítani. Ezáltal vevőközpontú vásárlási folyamatot alakítottak ki először a régióban, így nem Ön finanszírozza a beruházást, hanem a beruházó és Önnek semmilyen anyagi kockázata nincs!Ne késlekedjen, legyen Ön is lakástulajdonos ebben a csúcskategóriás komplexumban!

Hajdú-Bihar megye, Debrecen
 

Ingatlan adatai
Irányár: 222 000 000 Ft
Típus: lakás (újépítésű)
Kategória: eladó
Alapterület: 92 m2
Fűtés: -
Állapota: új
Szobák száma: 3
Építés éve: 2019
Szintek száma: -
További adatok
Telekterület: -
Kert mérete: -
Erkély mérete: 38 m2
Felszereltség: -
Parkolás: -
Kilátás: utcai
Egyéb extrák:  
-
Hirdető adatai
Hirdető neve: Otthon Centrum
Kapcsolattartó: Némethné Zsuzsa
Hirdető telefonszáma: +36 70 412 3861
Honlap: -

Üzenetet küldhet a hirdetőnek:
Az Ön neve:
Az Ön e-mail címe:
Üzenet: